SM482_TechnicalReference(Eng_Ver1.1)(1) - 第104页
Page SAMSUNG TECHWIN 94 SM482 SM482 Harness Wiring Diagram CN5 CN1 BOARD SM421 AXIS SENSOR CN10 FLA T CABLE AP5 AXIS IO BOARD #1 [AXIO#1] CN6 SM482_AX005-1 [AX] CN7 CN9 CN9 PWR SM482_AX005 FL-#18 R1-3, SW_Z1-6 HOME X-HM,…

Page
SAMSUNG TECHWIN
93
SM482
SM482 Harness Wiring Diagram
FLAT CABLE
AP5 AXIS IO BOARD #1
CN11
(1KW)
Y2
(1KW)
Y1
CN13
SM48_MD036 SM48_MD037 SM48_MD038
PW48_PW020 PW48_PW019
[AXIO#1]
SM48_VM003
CN12
CN14
CN2
PWR
SACO-CN27
SM48_SC007
CN1
PCIE X1_3m
PCIE ADAPTER #1
Panasonic AC servo
SET
MODE
Panasonic AC servo
SET
MODE
Panasonic AC servo
SET
MODE
SM48_MD008
SM48-MD005
SM48_MD010
SM48_MD006
SM48_MD009
SM48_MD007
SM482_VM004
(750W)
X
CN19
Z12 AMP
Z1 Z2 Z3 Z4
CN20
SM482_VM007-1
CN5
CN6
CN3 CN1
CN10
CN4 CN2
CN21
CN22
CN5
CN6
CN3 CN1 CN4 CN2
Z5 Z6
CN23 CN24
CN5
CN6
CN3 CN1 CN4 CN2
PWR
SM482_PW027
SM482_VM007-2
CN10
SM482_VM007-3
CN10
SM471_PW031
SM471_PW031
Z34 AMP Z56 AMP
SM41_MD026
SM41_MD027
SM41_MD028
SM482_MD029
SM41_MD030
SM41_MD031
FL-8,9 FL-9,10 FL-11,12
PS#2
R-STEPPING
DRIVER
R-POWERSIG1 SIG2 SIG2
MOT1 MOT2 MOT3
SM41_SC011
SC-CN10
CN16
CN17
CN18
R1
R2
R3
FL-16,17
SM41_MD011
SM41_MD038
SM41_MD039
SM41_MD040
SM482_MD012
AP5 AXIS IO SLAVE BOARD #1
SM482_VM006
PW48_PW019
PW48_PW018
CN1
WB1 WB2
CN3
CB3 CB4
CN2
CB12
BW12
CB34
CN3
CN2
CN3
CN2
CN3
CN2
SM48_MD015
CN1
SM421_MD109 SM421_MD109-1
SM482_VM008
SM482_VM009
SM41_SC012
CN1
SC-CN11
SC-CN12
CN4
CN4
CN4
SM421_MD209 SM421_MD209-1
SM48_MD016
SM421_MD108 SM421_MD108-1
SM421_MD208 SM421_MD208-1
CB1 CB2
SM48_MD013
SM48_MD014
SM421_MD110 SM421_MD110-1
SM421_MD210 SM421_MD210-1
SM48_MD017
SM48_MD018
CN15
PW48_PW018
SM482_VM005
FL-2,3
SM48_MD021
SM48_MD020
Panasonic AC servo
SET
MODE
SW
(50W)
FL-14,15
Panasonic AC servo
SET
MODE
WD-ENWD-PW
SM471_MD023
SM48_MD022
WD
(100W)
SM41_MD032

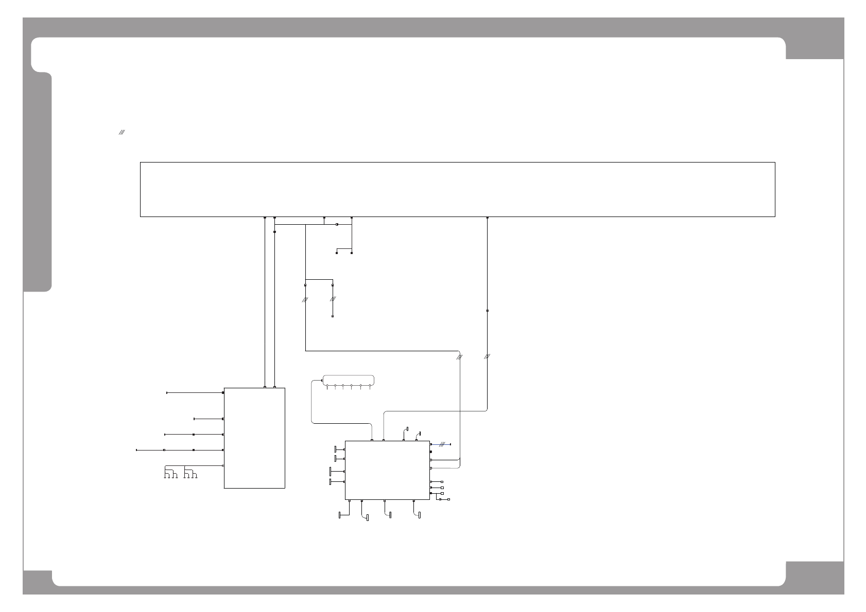
Page
SAMSUNG TECHWIN
94
SM482
SM482 Harness Wiring Diagram
CN5
CN1
BOARD
SM421 AXIS SENSOR
CN10
FLAT CABLE
AP5 AXIS IO BOARD #1
[AXIO#1]
CN6
SM482_AX005-1
[AX]
CN7
CN9
CN9
PWR
SM482_AX005
FL-#18
R1-3, SW_Z1-6 HOME
X-HM,PL,NL
FL-#1
SM482_AX006
X-HM,PL,NL
CN2
SM421_AX103
CN3
SM421_AX104
CN4
SM41_AX006
Y1-HM,PL,ML
WD-HOME SENSOR
WD-HOME-EXT
SM421_AX104-1
PCB SENSOR
SM41_CV007
SM48_CV140
FSEN-T1
FSEN-R2
FSEN-T2
FSEN-R1
RSEN-T1
RSEN-R2
RSEN-T2
RSEN-R1
CN12
CN2
PWR
SACO-CN28
SM482_SC007
SACO-CN27
SM41_AX001
SC-CN23
FL-#18
FL-#20
Z1-6, VACCUM, BLOW
SM482_VI006
HEAD IO B/D
CN2
CN3
CN7
CN1
CN16
CN14
CN13
CN12
CN9
CN8CN5CN10
SIDE ILL. UP/DN SEN
CN6
Z 1~6 HOME SEN
SENSORSENSORSENSORSENSOR
VAC.
VAC.VAC.
VAC.
H1 H2
H3 H4
VACUUM SENSOR B'D(H1~H6)
H6H5
VAC. VAC.
SENSOR SENSOR
H 1~6 VAC SOL
H 1~6 BLOW SOL
+24V,24G
HEAD HOME SENSOR
R12,34,56 HOME SEN
SM482_HD002
SM482_HD005
SM482_HD007
SM482_HD008
SM482-HD013
SM482_HD014
SM482_HD006
SM482_HD011
SM482_HD012
CN1
SIDE ILL UP/DOWN SOL
SW HOME SEN
R12,R34,R56
AUX.SEN
R1-3, SW_Z1-6 HOME
FL-#19 (CAN)
FIDUCIAL OUTER LED
CN17
CN18
FIDUCIAL INNER LED
H1~H6
OUTER LED
H1~H6
SIDE LED
SM482-HEAD-SIDE
CN11
CN4
CN15
TEACHING BEAM
CN19
SM482-FID-OUTTER
SM482-FID-INNER
SM482_TBS
Y-AXIS-SNS
FEDER UNLOCK. PCB-SNS
SM482_AX005-1
SM482_AX005
Y-AXIS-SNS
FEDER UNLOCK. PCB-SNS
SM482-HD001
SM421_CV112
TEACHING BEAM RIGHT
SM482_TBS-R

Page
SAMSUNG TECHWIN
95
SM482
Axio B/D#1 Slave(1/9)
AXIO BD #1
BOARD
CN1
CN2
01
02
03
04
01
02
03
04
01
02
03
04
SAFTY CONTROL
01
02
03
04
CN27
SM48_SC007
11
12
01
02
09
08
07
20
CN6
CN5
02
03
04
05
06
07
08
09
10
11
12
20 B1
AXIO BD #1
BOARD
CN7
CN9
01
03
05
02
04
06
13
09
11
08
14
19
09
11
08
14
19
01
02
07
08
13
14
30
A1
A3
B1
B2
A5
A7
A9
SM48_AX005
B1
AXIS SENSOR
BOARD
CN10
BOARD
AXIS SENSOR
BOARD
CN9
A1
A3
B1
B2
A5
A7
A9
Y11_HOME
Y11_PL
Y11_NL
Y12_HOME
Y12_PL
Y12_NL
WD_H
24G
X1_H
X1_P
X1_M
01
02
07
08
13
14
30
PCIE ADAPTER #1
PC RACK
SM48_AX005-1
11
12
01
02
09
08
07
A7
A4
A5
A6
A1
A2
A3
B1
A7
A4
A5
A6
A1
A2
A3
01
02
03
04
05
06
07
08
09
10
11
12
01
02
03
04
05
06
07
08
09
10
11
12
01
02
03
04
05
06
07
08
09
10
11
12
01
FLAT CABLE
HD-SOL
SM482_VI006
H1-VAC
H2-VAC
H3-VAC
H4-VAC
H5-VAC
H6-VAC
H6-BLOW
H4-BLOW
H5-BLOW
H3-BLOW
H2-BLOW
H1-BLOW
PCB WAIT
PCB IN
REAR FEEDER UNLOCK
FRONT FEEDER UNLOCK
PCB OUT
PCB QUICK
PCB WORK
01
03
05
02
04
06
13
07 07
20 20
02
03
04
05
06
07
08
01
30 30
02
03
04
05
06
07
08
01
A11 A11
AX-CN9-EXT
02
03
04
05
01
02
03
04
05
01
24G
24V
FLAT CABLE
SW_H
R34_H
R12_H
R56_H
Z1 HOME
Z2 HOME
Z3 HOME
Z4 HOME
Z5 HOME
Z6 HOME
05
06
07
08
09
10
11
12
13
14
FLAT CABLE
02
03
04
01
05
06
07
08
09
10
11
12
13
14
02
03
04
01
02
03
04
01
24G
24V
24V
24G
24G
24V
24V
24G
SM482_AX006
24G
24V
24V
24G
02
03
04
01
02
03
04
01
SM48_SC007
SACO B/D
02
03
04
01
CN28
CN3
FIX ILL
CN2
BOARD
SM48_CA001
A1
A2
A3
B1
B2
B3
A1
A2
A3
B1
B2
B3
A1
A2
A3
B1
B2
B3
CAN_H
CAN_L
/IO_RESET
24GND
12V GND
+12V
1
1
2
3
4
5
6