SM482_TechnicalReference(Eng_Ver1.1)(1) - 第173页
Page SAMSUNG TECHWIN 163 SM482 Safty Control B/D(1/5) SAFETY CONTROL BOARD MOLEX CN2P CN2S +24V 24G 24G +24V 4 3 1 2 4 3 1 2 DC POWER SUPPL Y#1 MOLEX +24V 24G 4 4 44 MOLEX 14PIN CN3 22 3 3 MC1 +24V 1 1 READY LP +24V FRON…

Page
SAMSUNG TECHWIN
162
SM482
Rear Feeder IF B/D(2/2)
NO. Lev. PART NO. PART NAME Q'TY Old No. Supply Supply LT Reference
1 J90800838D LEFT FDR SOL OUTPUT CABLE ASSY 1 SM_FD003
2 EP02-000588A FEEDER CN7 EXT CABLE ASSY 1 SM411N_FD001
3 AM03-006885A CABLE ASSY-R FDR PWR RELAY 1 SM48_FD003

Page
SAMSUNG TECHWIN
163
SM482
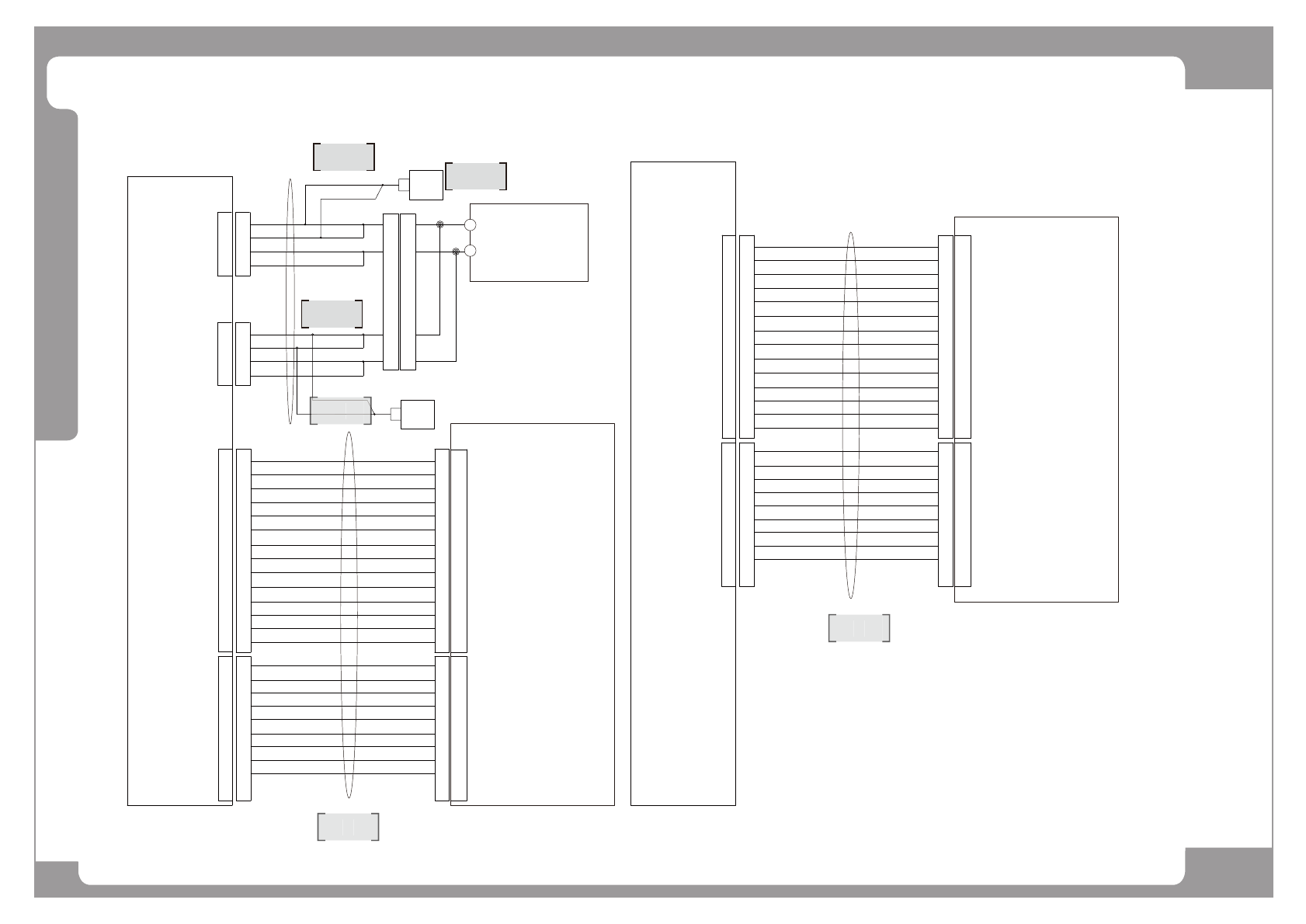
Safty Control B/D(1/5)
SAFETY CONTROL
BOARD
MOLEX
CN2P
CN2S
+24V
24G
24G
+24V
4
3
1
2
4
3
1
2
DC POWER SUPPLY#1
MOLEX
+24V
24G
4
4
44
MOLEX 14PIN
CN3
22
33
MC1
+24V
11
READY LP
+24V
FRONT OP PANEL
2
2
3
3
1
1
5
5
6
READY SW
5
66
5
6
24G
FEM SW
10
9
10
9
10
9
REM1
+24V
88
77
8
7
24G
FDOOR SW
13
14
14
13
14
13
FD1
RD1
1212
11 11
12
11
7
8
9
10
11
12
13
14
FRONT READY SWITCH
FRONT EM SWITCH
FRONT DOOR SWITCH
SAFETY CONTROL
BOARD
REAR OP PANEL
MOLEX
CN1P
CN1S
+24V
24G
24G
+24V
4
3
1
2
4
3
1
2
MOLEX
4
3
2
1
SM48_PW033
1
RELAY
2-6
SC-EN2
1
RELAY
1-6
SC-EN1
SM48_PW201
T1L
MOLEX 10PIN
CN30
1
4
3
2
5
8
7
6
10
9
1
4
3
2
5
8
7
6
10
9
1
4
3
2
5
8
7
6
9
SM48_SC001
1
4
3
2
5
8
7
6
10
9
10
24G(FFD)
FFD-SW
24G(FSTT)
FSTART-SW
F-LED
+24V
F-SEL1
F-SEL2
24G
CN3
CN1
4
4
44
MOLEX 14PIN
CN4
22
33
MC1
+24V
11
READY LP
+24V
2
2
3
3
1
1
5
5
6
READY SW
5
66
5
6
24G
REM SW
10
9
10
9
10
9
REM1
+24V
88
77
8
7
24G
RDOOR SW
13
14
14
13
14
13
RD1
TF1
1212
11 11
12
11
7
8
9
10
11
12
13
14
REAR READY SWITCH
REAR EM SWITCH
REAR DOOR SWITCH
SM48_SC002
MOLEX 10PIN
CN31
1
4
3
2
5
8
7
6
10
9
1
4
3
2
5
8
7
6
10
9
1
4
3
2
5
8
7
6
9
1
4
3
2
5
8
7
6
10
9
10
24G(RFD)
RFD-SW
24G(RSTT)
RSTART-SW
R-LED
+24V
R-SEL1
R-SEL2
24G
CN3
CN1
4
3
2
1
SM48_PW120
SM48_PW032
24G
24G
1
2
3
4
4
5
6

Page
SAMSUNG TECHWIN
164
SM482
Safty Control B/D(1/5)
NO. Lev. PART NO. PART NAME Q'TY Old No. Supply Supply LT Reference
1 AM03-006897A CABLE ASSY-GENERAL_PW_RELAY 1 SM48_PW032
2 AM03-006901A CABLE ASSY-PS1_2_DC_POWER_T1L 1 SM48_PW120
3 AM03-006906A CABLE ASSY-PS1_PS2_PW_T1L 1 SM48_PW201
4 AM03-006898A CABLE ASSY-FEEDER_PW_RELAY 1 SM48_PW033
5 AM03-006965A CABLE ASSY-F_OP_PANEL_IF 1 SM48_SC001
6 AM03-006966A CABLE ASSY-R_OP_PANEL_IF 1 SM48_SC002