SM482_TechnicalReference(Eng_Ver1.1)(1) - 第184页
Page SAMSUNG TECHWIN 174 SM482 Vision IF B/D(1/2) NO. Lev . P ART NO. P ART NAME Q'TY Old No. Supply Supply L T Reference 1 AM03-005545A C ABLE ASSY -H EAD2 FIDUCIAL CAMERA1 1 SM471_VIS00 3-1 2 AM03-005543 A C ABLE …

Page
SAMSUNG TECHWIN
173
SM482
Vision IF B/D(1/2)
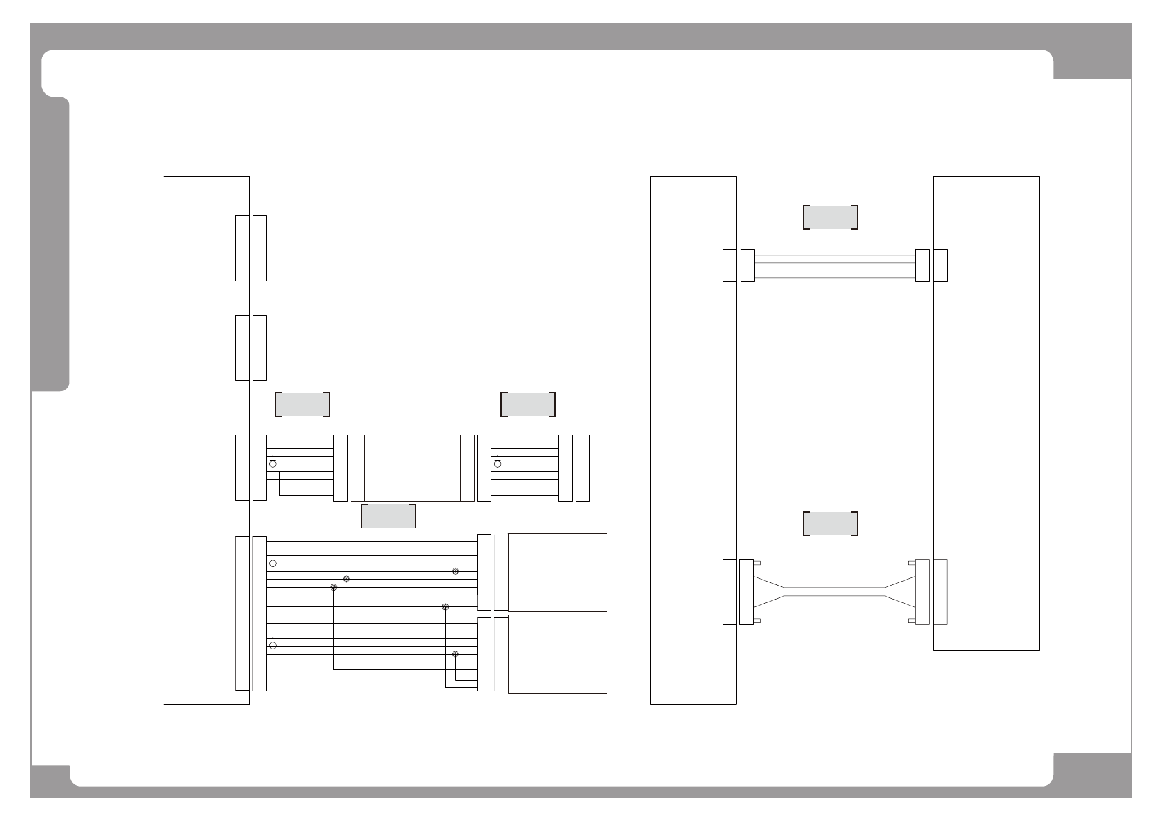
VISION IF BOARD VISION IF BOARD
01
02
03
04
05
06
07
08
CN1
01
02
03
04
05
06
07
08
01
02
03
04
05
06
07
08
CN2
01
02
03
04
05
06
07
08
01
02
03
04
05
06
07
08
CN6
01
02
03
04
06
07
08
09
01
02
03
04
05
06
07
08
GND
VPP
SHIELD
VIDEO(FID)
GND
HD
VD
GND
CN7
01
02
03
04
06
07
08
09
#1R-FL-15
01
02
03
04
06
07
08
09
01
02
03
04
06
07
08
09
01
02
03
04
06
07
08
09
01
02
03
04
06
07
08
09
FID CAM1
GND
VPP
SHIELD
VIDEO(FID)
GND
HD
VD
GND
REAR
SM471_VIS003-1
SM471_VIS002-1
SM48_VIS002
01
02
03
04
CN1
01
02
03
04
01
~
62
CN9
01
~
62
01
02
03
04
PWR-12V
01
02
03
04
01
~
44
SAMC-ME #1
01
~
44
+12V
+12V
12GND
12GND
SM471_VIS000
SM48_VIS012-1
PC RACK
01
02
03
04
05
06
14
08
09
10
11
12
13
07
15
01
02
03
04
05
06
14
08
09
10
11
12
13
07
15
GND
VPP
GND
VIDEO(FIX#1)
GND
HD
VD
TRIGGER
GND
VPP
GND
GND
VIDEO(FIX#2)
01
02
03
04
05
06
07
11
12
01
02
03
04
05
06
07
11
12
01
02
03
04
05
06
07
11
12
01
02
03
04
05
06
07
11
12
FIX CAM#1
FIX CAM#2
1
3
2
4
5

Page
SAMSUNG TECHWIN
174
SM482
Vision IF B/D(1/2)
NO. Lev. PART NO. PART NAME Q'TY Old No. Supply Supply LT Reference
1 AM03-005545A CABLE ASSY-HEAD2 FIDUCIAL CAMERA1 1 SM471_VIS003-1
2 AM03-005543A CABLE ASSY-FLAT_FID_CAMERA_1 1 SM471_VIS002-1
3 AM03-006968A CABLE ASSY-FIX1-2_CAMERA 1 SM48_VIS002
4 AM03-005556A CABLE ASSY-VISION IF BD POWER 1 SM471_VIS000
5 AM03-006985A CABLE ASSY-NEXTEYE B/D I/F_MAGA 1 SM48_VIS012-1

Page
SAMSUNG TECHWIN
175
SM482
Vision IF B/D(2/2)
VISION IF BOARD
01
02
03
04
06
07
08
09
11
14
12
15
01
02
03
04
06
07
08
09
11
14
12
15
CN3
CN5
01
02
03
04
06
07
08
09
11
12
13
14
01
02
03
04
06
07
08
09
11
12
13
14
01
02
03
04
06
07
08
09
11
14
12
15
01
02
03
04
06
07
08
09
11
14
12
15
01
02
03
04
06
07
08
09
11
14
12
15
01
02
03
04
06
07
08
09
11
14
12
15
01
02
03
04
06
07
08
09
11
14
12
15
01
02
03
04
06
07
08
09
11
14
12
15
01
02
03
04
06
07
08
09
11
14
12
15
01
02
03
04
06
07
08
09
11
14
12
15
CN8
FL001-#7
M1-VSync+
M1-VSync-
M1-HSync+
M1-HSync-
M2-VSync+
M2-VSync-
M2-HSync+
M2-HSync-
+12VA
GND
+12VA
GND
01
02
03
04
06
07
08
09
11
12
13
14
CN10
FLY1-SIG
SHIELD1
FLY2-SIG
SHIELD2
FLY3-SIG
SHIELD3
FLY4-SIG
SHIELD4
FLY5-SIG
SHIELD5
FLY6-SIG
SHIELD6
FL001-#5,6
P1
SM400 CAMERA IO BD #1
P2
01
02
03
04
06
07
08
09
11
12
13
14
01
02
03
04
06
07
08
09
11
12
13
14
01
02
03
04
06
07
08
09
11
12
13
14
01
02
03
04
06
07
08
09
11
12
13
14
01
02
03
04
06
07
08
09
11
12
13
14
01
02
03
04
06
07
08
09
11
12
13
14
01
02
03
04
06
07
08
09
11
12
13
14
M1-VSync+
M1-VSync-
M1-HSync+
M1-HSync-
M2-VSync+
M2-VSync-
M2-HSync+
M2-HSync-
+12VA
GND
+12VA
GND
FLY1-SIG
SHIELD1
FLY2-SIG
SHIELD2
FLY3-SIG
SHIELD3
FLY4-SIG
SHIELD4
FLY5-SIG
SHIELD5
FLY6-SIG
SHIELD6
SM471_VIS007
SM41_VIS006
SM471_VIS010
SM482_VIS009
1 2
3 4