KE-3010A_KE-3020VA_KE-3020VRA-Rev14 - 第41页
- - REF.NO NOTE PARTNO DESC RIPTION Qty 1 BT-0600400-E C UR ETHANETU BEBLUE6X4 12 2 BT-0800501-E A URETHANETUBE BLUE8X5 2.5 3 PJ-308060 0-03 UNIONY 1 4 WP-08 41601-SC WASHERM 8 2 5 PJ-30506 00…

- -
17.AIRCOMPONENTS
9
1 3
1 1
1 2
1 0
3 5
2 1
2 0
2 4
2 2 2 3
1 8 1 9
6
7
3 4
2 5 3 7
3 6
1 4
3
4
8
1 5
5
2 6
2 7
1 6 1 7
3 2
2 9
3 1
3 0
3 3
1
2
2 8

- -
REF.NO NOTE PARTNO DESCRIPTION Qty
1 BT-0600400-EC URETHANETUBEBLUE6X4 12
2 BT-0800501-EA URETHANETUBEBLUE8X5 2.5
3 PJ-3080600-03 UNIONY 1
4 WP-0841601-SC WASHERM8 2
5 PJ-3050600-04 TEE 2
6 400-54839 SOFTNYLON8 20
7 400-94700 AIRCOMBINATIONASSY 1
8 400-63483 AIRCOMBINATION (1)
9 BT-1000651-EB POLYURETHANETUBE (1.7)
10 PJ-3081000-01 UNIONY (1)
11 SL-6061692-TN SCREWM6L=16 (4)
12 WP-0841601-SC WASHERM8 (4)
13 BT-1200801-EF TUBE (0.45)
14 PJ-3080600-03 UNIONY (1)
15 BT-1200801-EF TUBE (1)
16 401-47664 MANIFOLD_ASM 1
17
#01
401-59465 MANIFOLD_ASM_10ACL 1
18 PX-9500070-00 PLUG (3)
19
#01
PX-9500070-00 PLUG (4)
20 PJ-3091200-03 MANIFOLD (1)
21 PJ-0200000-03 PLUGROUND12 (1)
22 PJ-3040600-01 REDUCERELBOW (3)
23
#01
PJ-3040600-01 REDUCERELBOW (2)
24 PJ-3010600-03 REDUCER (3)
25 BT-0600400-EC URETHANETUBEBLUE6X4 8
26 PF-0200040-00 REGULATOR 1
27 SM-4033001-SC SCREWM3X0.5L=30 2
28 401-47611 VACUUM_PUMP_AIR_ASM 1
29 BT-1000651-EB POLYURETHANETUBE (0.2)
30 BT-1200801-EF TUBE (0.1)
31 PJ-3081200-02 UNIONY (1)
32 400-69259 DIFFERENTBOREUNIONY
(2)
33 PJ-3010600-03 REDUCER (2)
34 PJ-3080600-03 UNIONY 2
35 SL-6042092-TN SCREWM4L=20 2
36 PJ-3030600-01 STRAIGHTUNION 4
37
#01
BT-0600400-EC URETHANETUBEBLUE6X4 5.1

- -
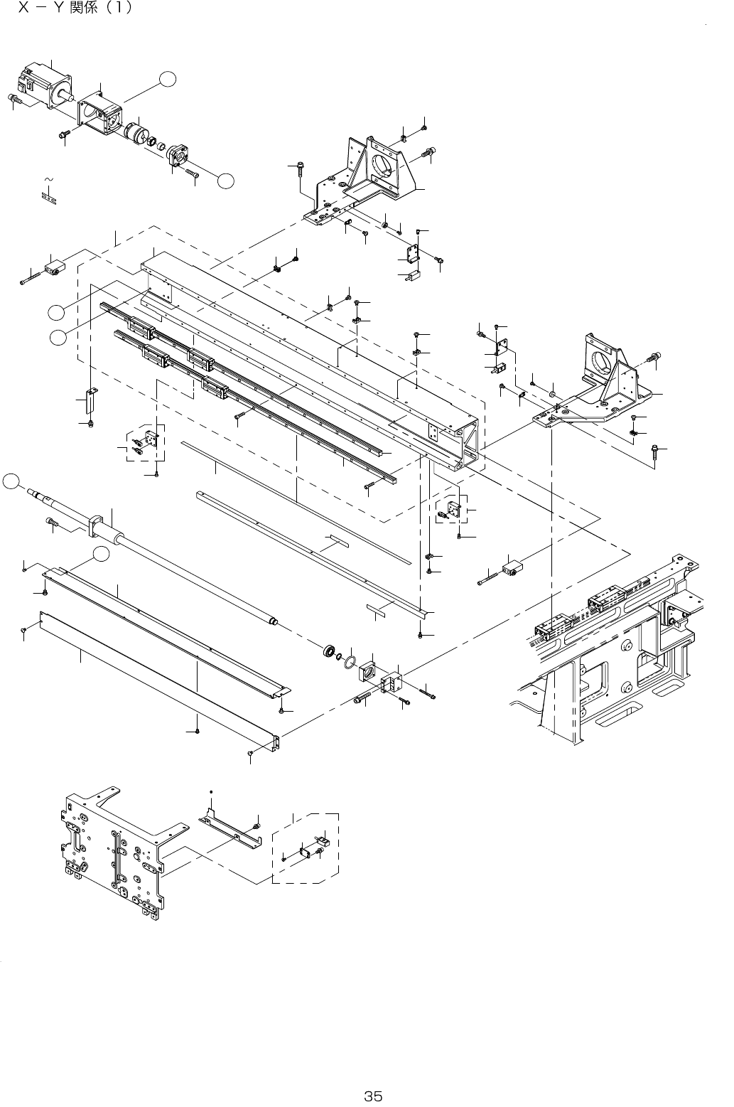
18.X-YCOMPONENTS(1)
C
B
3 5
6 0
6 1
5 6
1 6
5 3
1 7
5 4
5 3
5 2
4 8
4 7
3 6
3 4
3 3
3 2
3 1
3 0
2 9
2 1
2 2
2 3
2 0
5 9
5 8
5 7
5 6
5 5
6 3
2 4 2 7
1 0
1 8
1 9
4 0
4 5
4 5
4 0
B
C
3 5
6 0
6 1
6 0
6 1
6 0
6 1
6 2
1 5
5 4
5 3
5 3
5 2
4 8
4 7
5 0
4 9
4 9
5 0
A
4
A
4 9
4 9
4 6
4 1
4 4
4 3
3 9
3 8
3 7
2 8
2 3
2 0
2 2
2 1
1 3
1 4
5 1
1 2
5 1
1 1
9
8
7
1
3
4
2
2
6 0
6 1
4 2