NXT 机械手册 QD029-29.pdf - 第333页

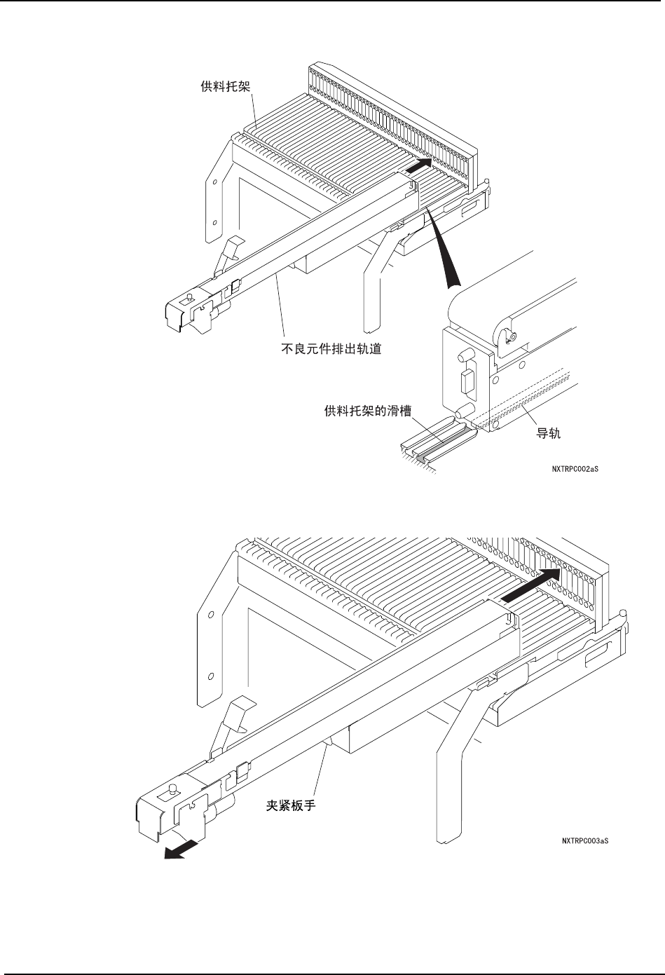
8. 部件的更换 QD029-09 316 NXT 机械手册 8.3 不良元件排出单元的更换 8.3.1 操作时间 卸下单元→安装单元为止 3 分种。 8.3.2 更换方法 1. 将单元卸下时,一边拉夹紧板,一边水 平地向己方拉出。

100%1 / 424
QD029-09 8. 部件的更换
NXT 机械手册 315
7. 按照与拆下时相反的顺序安装新的单元。
注意 ) 请在相机单元的前端装有的定位栓碰到灯具单元为止,向前滑动后固定相机单元。
8. 插入模组。
8. 部件的更换 QD029-09
316 NXT 机械手册
8.3 不良元件排出单元的更换
8.3.1 操作时间
卸下单元→安装单元为止 3 分种。
8.3.2 更换方法
1. 将单元卸下时,一边拉夹紧板,一边水平地向己方拉出。
QD029-09 8. 部件的更换
NXT 机械手册 317
2. 与不良元件排出单元的下部的导轨与供料托架的滑槽相吻合插入。
3. 一边将夹紧板向图的方向拉一边滑动单元。请确实押入到底以后再放开夹紧板。请确认
前侧部的插头确实地插入到供料托架侧的插座中。