5OM-1840-001w_F8S - 第31页
Safety Precautions Safe-22 1OM-1840 1604-001 5. Alert Labels (14) (14) Do not put anything on it This might damage the machine. Do not put anything on it This might damage the machine. Fig. X8

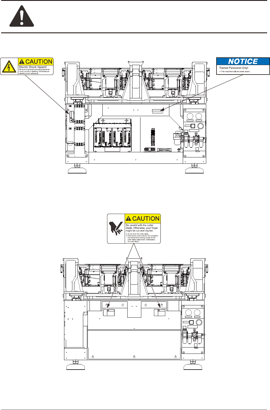
Safety Precautions
Safe-21
1OM-1840
1604-001
5. Alert Labels
Rear Side of Machine
00-0314-00-0314-
(18)
(19)
(18)
(19)
Do not touch your hand
onto the head block.
Do not touch your hand
onto the head block.
Push here when performing maintenance. Push here when performing maintenance.
Fig. X6
Front Side of Machine
00-0314-00-0314-
(18)
(19)
(18)
(19)
Do not touch your hand
onto the head block.
Do not touch your hand
onto the head block.
Push here when performing maintenance.
Push here when performing maintenance.
Fig. X7

Safety Precautions
Safe-22
1OM-1840
1604-001
5. Alert Labels
(14)
(14)
Do not put anything on it
This might damage the machine.
Do not put anything on it
This might damage the machine.
Fig. X8

Safety Precautions
Safe-23
1OM-1840
1604-001
5. Alert Labels
Front Side of Machine
(6)
(16)
01-0269-
Fig. X9
Front Side of the Machine
with Lower Cover
(4)
Fig. X10