EJM8ACIM1 - 第15页
CM602-L 安装手册 1.2 Pa ge 1-15 1.2.2 固定配件 ( 红色 ) 的拆卸 本机搬运时为了使 X 轴和 Y 轴不移动,使用固定 配件 ( 红色 ) 对其固定。 共有 12 个固定配件要全 部拆下。保管好拆 下的固定配件。 EJM8A- C-IMB01- A01-00 EJM4A -118E Y 轴固 定配件 B ( 计 4 处 ) Y 轴固定 配件 A ( 计 4 处 ) X 轴固定配件 ( 计…

CM602-L
安装手册
1.2
设置步骤
Page 1-14
1.2
设置步骤
通知
有关本机的设置请按照专业人员的指示进行。
在此对其设置步骤进行了简要的说明。
关于再次配置,请向服务中心咨询。
1.2.1
本机的安装
•
参照由客户准备的配置图,沿着所划的基准线安装本机。
在前工序和下一道工序之间基板应搬送顺畅,对机器的位置进行调整。
(
方向及搬送高度
)
•
请调整相邻的机器的传送带间隔,使其为
1 mm ~ 5 mm
以下。
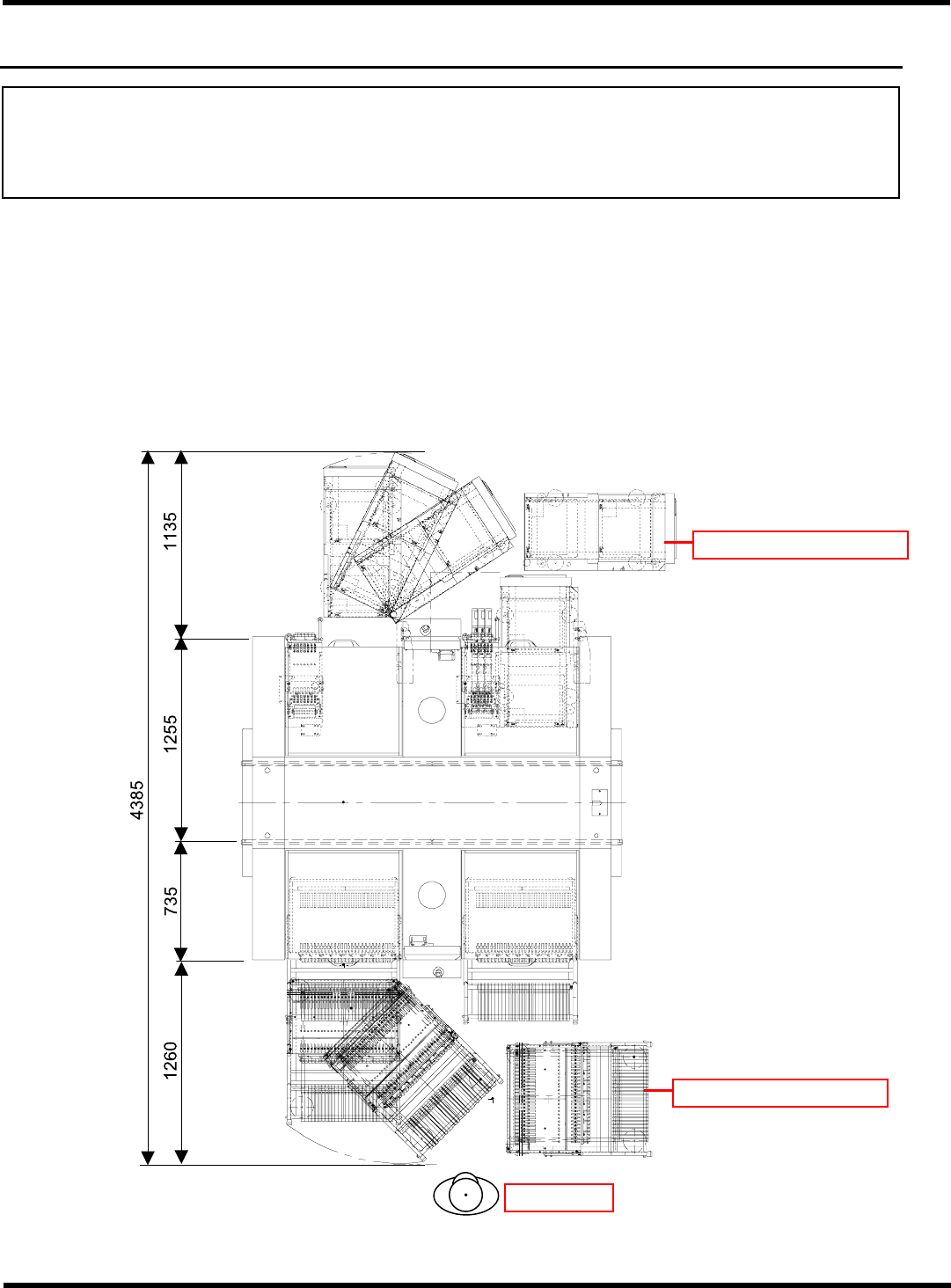
•
当使用整体交换台车以及直接托盘供料器时,为了进行安装以及卸下作业所需要的空间各不相
同。设置作业时,请参照下图。
∗
DT50S-20 (
选购件
)
不能连接到
CM602-L (NM-EJM4A)
上。
安装直接托盘供料器
DT50S-20 (
选购件
)
时所需要的最小限度空间。
(
单位
: mm)
EJM8A-C-IMB01-A01-00
EJM8A-802E
直接托盘供料器
整体交换台车
前面

CM602-L
安装手册
1.2
Page 1-15
1.2.2
固定配件
(
红色
)
的拆卸
本机搬运时为了使
X
轴和
Y
轴不移动,使用固定配件
(
红色
)
对其固定。
共有
12
个固定配件要全部拆下。保管好拆下的固定配件。
EJM8A-C-IMB01-A01-00
EJM4A-118E
Y 轴固定配件 B
(
计 4 处
)
Y 轴固定配件 A (计 4 处)
X 轴固定配件
(
计 4 处
)

CM602-L
安装手册
1.2
设置步骤
Page 1-16
1.2.3
调整正确的水平位置
如下图所示位置安装水平仪
(0.02 mm/m)
,用调整螺栓调整至
1
刻度
(0.02 mm/m)
以下。调整后,
拧紧锁紧螺母对其固定。
○
:
水平衬垫
6
处
■
:
水平仪设置位置
6
处
通知
∗
我们推荐安装后以半年一次左右的频度确认水平位置。
EJM8A-C-IMB01-A01-00
EJM4A-108E
EJM4A-AA01
水平衬垫
EJM4A-149E
锁定螺母
调整螺栓