HS50 circuit diagram - 第63页
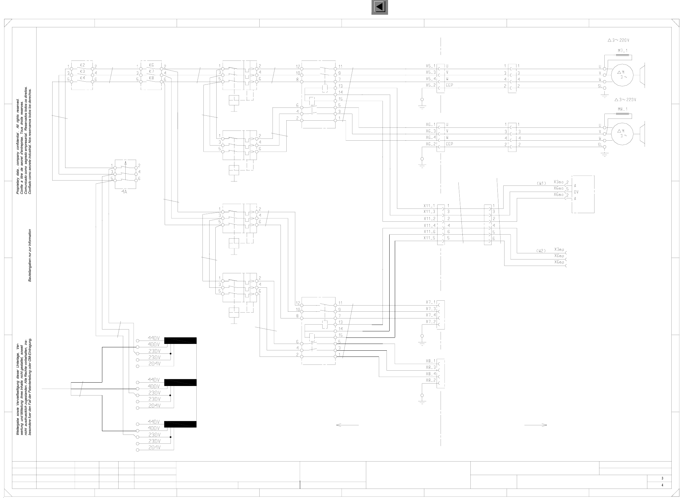
2 Circuit Diagr ams 63 I 001 19046-0201 01LD3 Single conveyo r , stationary si de on th e right , wiring, co ntrol 1 , TSP 200 (Sh. 4 of 4 ) SMEM A J1 SMEM A 1 Jumper setting s (Applies to 003 49302 only) wh bn gn ye wh …

2 Circuit Diagrams 62
I
00119046-020101LD3 Single conveyor, stationary side on the right, power supply for
lifting table motors 1 + 2 (conveyor 1), TSP200 (Sh. 3 of 4)
(Conveyor 1)
SMD-Placement System Siplace HS50
Product status
Doc. status
Function status
Transformer
infeed
HS50 power supply unit PCB conveyor, lift.table motors
Option:
Dual conveyor
ELR2
0.75mm²
1.5mm²
4mm²
4mm²
2.5mm²
1.5mm²
2.5mm²
1.5mm²
2.5mm²
2.5mm² 2.5mm² 1.5mm² 0.75mm²
2.5mm²
St_Hub1
Null
St_Hub3
St_Hub2
St_Hub4
Null
Control signals
Lift. table mot.
00337796
Extension
ye
gy
pk
wh
bn
gn
Lift. table motors
00333592
Control signals
gn
bn
wh
bn
gn
wh
(Conveyor 1)
Placement section 2
=
SIEMENS AG
+
Single conveyor, stationary side on the right
SZ2
8
F
C
A
F
E
D
76
MS5
MS3
34
23
X5
Conveyor control TSP200
T1
F3
SZ3
X70
MS4
X8
X7
X11
X6 X71
ELR2
78
1
5
MS6
2
ELR1
6
45
E
D
C
B
A
1
Ha
Ha
02
01
01
22.02.00
22.02.00
22.02.00
22.02.00
Haas
#
Power supply unit:lift. table motors 1+2
00119046-020101LD3
X128
PL EA1 E
Ha
00333594
Cable: lift. table motor
Cable: lift. table motor
Placement section 1
00333594
bk(3)
bk(2)
bk(1)
ye/gn
ye/gn
bk(3)
bk(2)
bk(1)
ye/gn
bk(3)
bk(2)
bk(1)
bk(2)
bk(3)
ye/gn
bk(1)
Lift. table motor 2
(Conveyor 1)
00335215 Sh. 1
Lift. table motor 1
(Conveyor 1)
00335214 Sh. 1
Lift. table motor 2
Lift. table motor 1
with brake
with brake
00335214 Sh. 2
00335215 Sh. 2
rd
rd
Status Modified Date Name
Author
Date
Stand.
Check.
Orig. Repl. f. Replaced by
Sheet
Sh.
TSP200

2 Circuit Diagrams 63
I
00119046-020101LD3 Single conveyor, stationary side on the right,
wiring, control 1, TSP 200 (Sh. 4 of 4)
SMEMA
J1
SMEMA
1
Jumper settings
(Applies to 00349302 only)
wh
bn
gn
ye
wh bn gn
yeye
wh
bn
gn
=
SIEMENS AG
+
X3ao
3
2
1
4
Lift. table 1
5
6
X6ao
3
2
1
4
Lift. table 2
5
6
M analog
Control:
Lift. table motors
00333592
Key
Key
V_Stoersign.
N_Stoersign.
n.c.
n.c.
n.c.
n.c.
n.c.
2
n.c.
n.c.
n.c.
n.c.
17
20
19
n.c.
n.c.
n.c.
N_GND_24VDC
N_Stoersign.
n.c.
n.c.
n.c.
N_Abgegeben
N_+24VDC
45
n.c.
n.c.
N_SMEMA
234567
N_Anforderung
N_GND_24VDC
31
n.c.
n.c.
n.c.
10
9
n.c.
n.c.
n.c.
n.c.
16
15
14
00335323
125kBits/s
CAN bus
Singel conveyor, stationary side on the right
Conveyor control, conveyor 1 ao
8
1
5
4
7
10
9
8
8
A
B
C
D
E
FF
E
D
C
B
A
8
13
12
11
2
1
6
5
4
7
18
X2ao
X1ao
Interface: preceding
machine
00303036
00303036
Interface: succeeding
machine
V_GND_24VDC
V_+24VDC
V_SMEMA
V_Stoersign.
V_GND_24VDC
6
5
4
7
67
3
2
1
6
3
2
1
4
P5V
P24V
P40V
M digital
M
M
CANL
CANH
CAN-RES
n.c.
V_Erlaubnis
V_Angekommen
n.c.
5 M analog
2
3
1
3
10
9
8
13
12
11
16
15
14
17
20
19
18
X22ao
n.c.
n.c.
Ha
Ha
02
01
01
22.02.00
22.02.00
22.02.00
22.02.00
Haas
#
Wiring, control 1
00119046-020101LD3
X21ao
Adapter cable:
Power supply
00352646
To plug X21ap
CAN-IR
PL EA1 E
Ha
Weitergabe sowie Vervielfaeltigung dieser Unterlage, Ver-
wertung und Mitteilung ihres Inhalts nicht gestattet, soweit
nicht ausdruecklich zugestanden. Alle Rechte vorbehalten, ins-
besondere fuer den Fall der Patenterteilung oder GM-Eintragung. Bauteilangaben nur zur Information
Comunicado como segredo empresarial. Reservados todos os direitos.
Confie a titre de secret d’entreprise. Tous droits reserves.
Proprietary data , company confidential . All rights reserved.
Confiado como secrete industrial. Nos reservamos todos los derechos.
SMD-Placement System Siplace HS50
Product status
Doc. status
Function status
Motor line: PCB conveyor
HS50 Conveyor 1
Conveyor 1, plug X31am
To conversion board
00351931
Sensor line: 1 PCB conveyor
To conversion board
Conveyor 1, plug X32am
00351932
HS50 Conveyor 1
Sensor line: 2 PCB conveyor
HS50 Conveyor 1
00351933
Conveyor 1, plug X33am
To conversion board
X11ao
X12ao
X13ao
Status Modified Date Name
Author
Date
Stand.
Check.
Orig. Repl. f. Replaced by
Sheet
Sh.
Motor + EB
Motor - EB
Motor - BB1
Motor + BB2
Motor - BB2
Motor - ZB
Motor + ZB
Motor - AB
Motor + AB
Motor + BB1
Motor B - BV
Motor A - BV
Motor A + BV
Motor A + BV
Motor A - BV
Motor B + BV
Motor B + BV
Motor B - BV
LS AB (res.)
LS BB2 (res.)
LS ZB (res.)
LS BB1 (res.)
LS EB (res.)
Bero BV
SB BB2
SB BB1
+ 24 V
+ 24 V
GND
GND
SB EB
SB AB
SB ZB
GND
+ 24 V
Code 3 (Opt.)
ESCH BRA
Code 2 (Opt.)
Code 1 (Opt.)
A3 (Opt.)
A2 (Opt.)
A1 (Opt.)
E6 (Opt.)
E5 (Opt.)
E4 (Opt.)
E3 (Opt.)
E2 (Opt.)
E1 (Opt.)
Code 3 (Opt.)
Code 2 (Opt.)
Code 1 (Opt.)
Ventil ST UELP
Bero ST UELP
SB UELP
Ventil ST BB2
Bero ST BB2
Ventil ST BB1
Bero ST BB1
Bero HT 2 u
Bero HT 2 o
Bero HT 1 u
Bero HT 1 o
ESCH BRZ
A3 (Opt.)
A2 (Opt.)
A1 (Opt.)
E6 (Opt.)
E5 (Opt.)
E4 (Opt.)
E3 (Opt.)
E2 (Opt.)
E1 (Opt.)
GND
VCC
Lifting table 2, topHT2o
Lifting table 2, bottomHT2u
SB
UELP
ST
LS
Sonar prox. switch
Stopper
Excess length PCB
Light barrier
Lifting table 1, bottomHT1u
HT1o
BB1
AB
BRA
BV
BRZ
EB
BB2
ESCH
Abbreviations
E
A
Width narrower
Lifting table 1, top
Width adjustment
Input conveyor
Limit switch
Input
Output conveyor
Placement sector 1
Width wider
Placement sector 2
Output
0034826700348267 00348267
00349302 or 00353442
(TSP200 or TSP200_M)
S1 address coding switch
ON
123456
TSP200
1111
Error loop
Error loop
Input conveyor
J4
1
1
J3
Output conveyor
J2
Siemens
Siemens
J1
1
Siemens
SMEMA
SMEMA
J2 J2
Siemens
1
J1
1
J1
J2

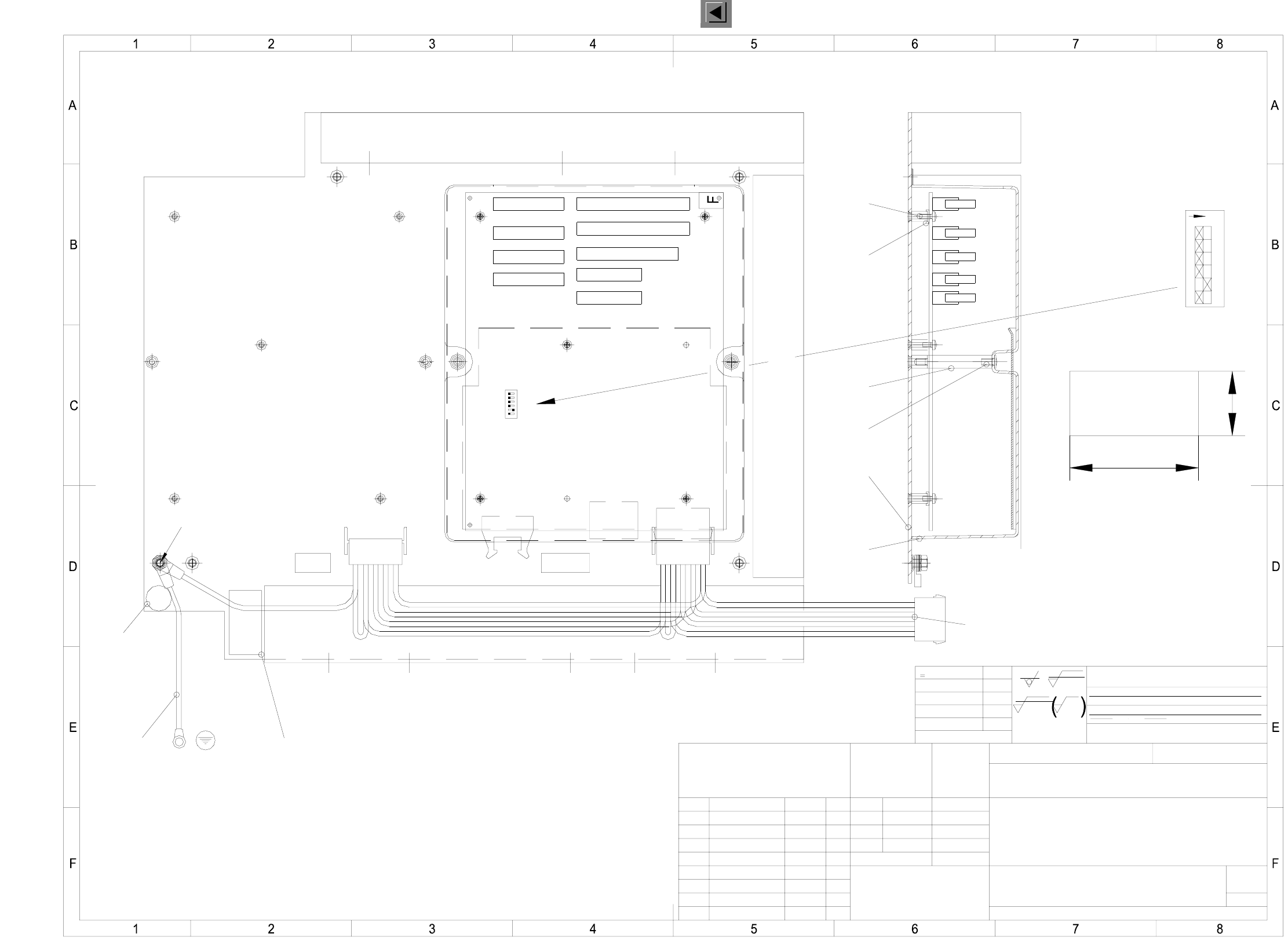
2 Circuit Diagrams 64
I
00349837-020101ZD3 Control complete, HS-50 PCB single conveyor, TSP200
015
015
AA-BBBB-CCCC
00349837-02
SIEMENS PL EA 1
C
Draeger22.12.99
1:2
00349837-020101ZD3
1
010
011
006...009
00342987-01
002
005
003
A
D
012
E
013
1
2
3
4
5
6
ON
004
(Unmachined part no.)
(Material, semifinished products)
Format
Scale
NameDate
Author
Check.
Stand.
Degree of accuracy
acc. to ISO 2768 mH
Dimensional variations:
medium
Dimensional variations
Surface:
gehaertet HRc
einsatzgehaertet
Comprises
coordinates list:
Tiefe:0,3/
Ground connection cable
Cable duct 65x46 l=335±5mm "X" means to break off one rib
Adapter cable 00352646-01
Cable duct 65x30 l=250±5mm "X" means to break off one rib
Cable duct 65x30 l=300±5mm "X" means to break off one rib
Label F: AO assembly designation
Label E: grounding
Label D: inspection label
20
40
Conveyor 1
Pos. of
binary switches
Label A
Label C 00349837-FS
XXX XXXXXXXXXXXXXXXXXXXX
XXXXXXXXXXXXXXXX
016
001
Copying of this document, and giving it to others and the use
or communication of the contents thereof, are forbidden with-
out express authority. Offenders are liable to the payment of
damages. All rights are reserved in the event of the grant of
a patent or the registration of a utility model or design.
Weitergabe sowie Vervielfaeltigung dieser Unterlage, Verwer-
tung und Mitteilung ihres Inhalts nicht gestattet, soweit nicht
ausdruecklich zugestanden. Zuwiderhandlungen verpflichten zu
Schadenersatz. Alle Rechte fuer den Fall der Patenterteilung
oder GM-Eintragung vorbehalten.
Draeg
Frank
Draeg
04.05.00
22.12.99
10.07.00AM9443
Status Modified
new
Date Name
Sheet
Sh.
Main no.
(Drawing number)
Control, complete
HS50 PCB single conveyor
(Model or swage no.)
FS 02
1
A3
Tiefe:0,3/
FS 01
US 02
FSUAUSESFS
SIEMENS
PL EA
<6
>6...30
>30...120
>120...400
>400...1000
±0,1
±0,2
±0,3
±0,5
±0,8
gehaertet HRc
einsatzgehaertet
z
R 100
z
R 6,3
z
R 2