CP-743E-04 PART LIST - 第184页
180

179

180

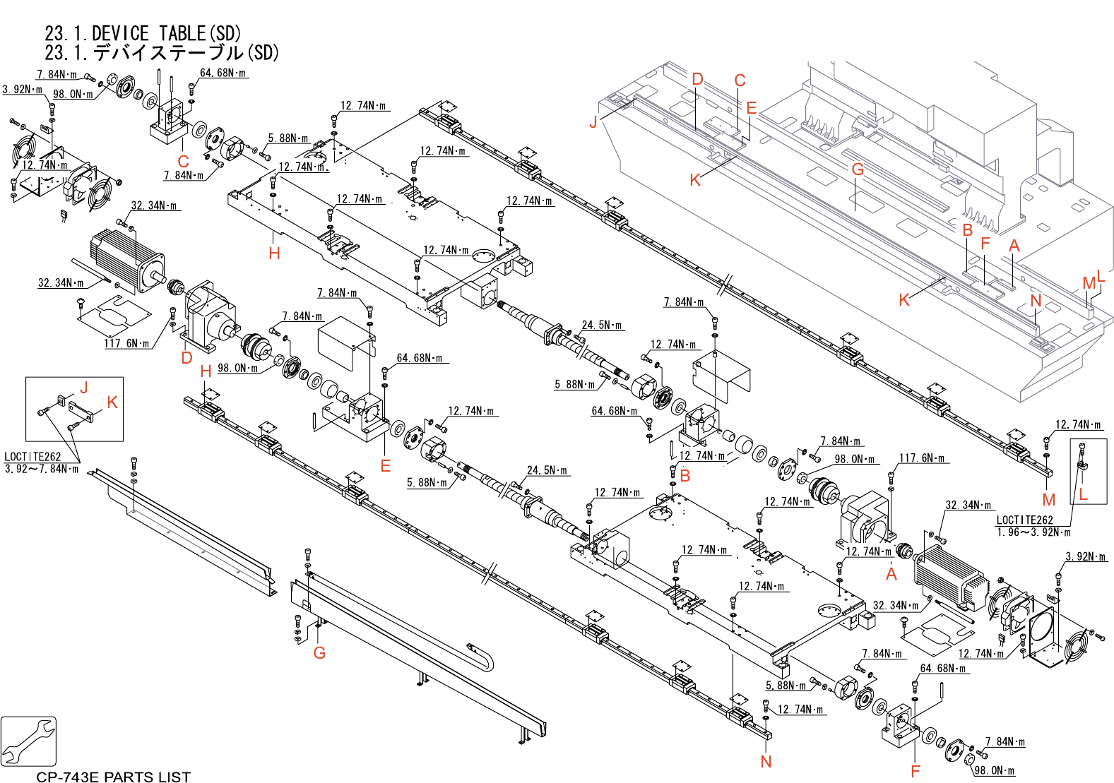
23.1.DEVICE TABLE(SD)
23.1.デバイステーブル(SD)
番号 図番 & コード番号 個数 品名 規格 材質 備考
No. Drg.No. & Code No. QTY Description Rating Materials Remarks
1 DGSD0210 2 RETAINER, BEARING 押え ベアリング FE
2 DGSD0500 4 COLLAR カラー FE
3 DGSD0510 2 COLLAR カラー FE
4 DGSD0520 2 COLLAR カラー FE
5 DGSD0761 2 RETAINER, RAIL 押え レール FE
6 DGSD0770 12 SPACER スペーサ FE 注1. Note.1
7 DGSX0260 4 BOLT ボルト FE
8 WSD4030 67 RETAINER, RAIL 押え レール FE
9 GPT0792 75 RETAINER 押え FE
10 H4161A 4 BEARING ベアリング 25TAC62BDB FE
11 DGSD5910 1 TABLE テーブル AL
12 DGSD5920 1 TABLE テーブル AL
13 DGSD5071 2 HOLDER, BEARING ホルダ ベアリング FE
14 DGSD5081 2 BALL SCREW ボールネジ OT
15 DGSD5091 1 BEARING, SLIDE ベアリング スライド OT
16 DGSD5101 1 BEARING, SLIDE ベアリング スライド OT
17 DGSD5131 2 HOLDER, BEARING ホルダ ベアリング FE
18 DGSD5200 2 COVER カバー FE
19 DGSD7070 1 GUIDE ガイド FE
20 DGSD7081 1 GUIDE ガイド FE
21 DGSD5252 2 BKT BKT FE
23 DGSD5270 2 RETAINER, BEARING 押え ベアリング FE
24 DGSD5300 2 RETAINER, BEARING 押え ベアリング FE
25 DGSD5311 2 STOPPER ストッパ PL
26 DGSD5321 2 STOPPER ストッパ PL
27 DGSD5330 8 COLLAR カラー FE
28 DGSD5340 8 COLLAR カラー FE
29 DGSD5690 2 RETAINER, BEARING 押え ベアリング FE
30 DGSD5710 2 COVER 蓋 FE
31 DGSD5720 2 COVER 蓋 FE
32 DCSX0430 2 BKT BKT FE
33 H2075H 8 PIN, TAPER ピン テーパ φ8X70タップトオシ(メネジ) OT
34 K1001Z 2 COUPLING カップリング LCD-90B 22X32 OT
35 K10015 2 COUPLING カップリング LCS-65B 19X22 OT
36 K41502 1 FLEXIBLE TRACK ケーブルベア TKP0130-06R20-102L-N OT
37 K4181K 2 REDUCTION GEAR 減速機 L70-004-0019A OT
38 H30138 2 FAN ファン USHD1-UHS4506W(N/C) OT
CP-743E PARTS LIST
181