Oxford-100-Manual.pdf - 第202页
PlasmalabSystem 100 Oxford Instruments Plasma Technology Installation Data 1630 SERVICE ACCESS OIPT RECOMMENDS THAT AT LEAST 600mm SERVICE ACCESS SPACE IS ALLOWED BETWEEN ANY OBSTACLE (E.G. WALLS, PARTITIONS, ETC.) AND S…

Installation Data
Oxford
Instruments
Plasma Technology
PlasmalabSystem100
2.
Installation
information
2.1
Dimensions
System dimensions are given in Fig
1,
Fig 2 and Fig
3.
Gas
handling
component
dimensions are
given in Fig
6,
Fig 7 and Fig
8.
Pump dimensions are given in Section
6.
Heater/chiller
dimensions are given
in
Section 7.
2.2
Weights
Typical
weights
of
system components:
2-frame system: 320 kg
3-frame
system: 390 kg
6-line
Gas
pod:
35
kg
12-line
Gas
pod:
65
kg
Pumps:
See
Section 6 (Pump set
information).
Heater/chillers:
See
Section 7 (Heater/chiller
information).
2.3
Heat
load
The typical
heat
load
for
the
clean
room
installation
is:
Operating:
Passive:
2kW
1.5
kW
Note
that
these specifications
do
not
include
externally
sited components, e.g. pumps,
heater/chillers, transformers, etc
..
Printed: 22-Mar-06. 6:57
Installation Data
(ICP
180)
Page 5
of
18
Issue
5:
June 05

PlasmalabSystem
100
Oxford
Instruments
Plasma
Technology
Installation Data
1630
SERVICE ACCESS
OIPT RECOMMENDS THAT AT LEAST 600mm
SERVICE ACCESS SPACE IS
ALLOWED
BETWEEN
ANY OBSTACLE (E.G. WALLS, PARTITIONS, ETC.)
AND SERVICEABLE ITEMS,
E.G.
THE POWER
DISTRIBUTION UNIT.
55
D~
0
0
747
()
-.;
""
.......
"
I I
n
0
-
'-
D
II
IQI
uilil
II
1111
00
0
00
00
00
0
~~o
0
o 0
L--
t----
-
..
...
..
-
..
I I
c::
p
0
2
1516
f---
f---
..
159
Fig
1:
lCP
180 system layout (3-frame)
NOTE: For services panel details,
see
~
Issue
5:
June 05
Installation Data
OCP
180)
Page 6
of
18 Printed: 22-Mar-06, 6:57

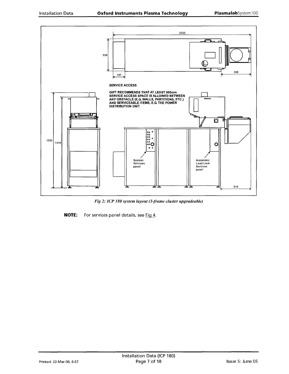
Installation Data
Oxford
Instruments
Plasma
Technology
PlasmalabSystem
100
55
2335
r---
~
.-L.
0
D~
0
qQ
"""--'---
~
~
........
-
509
~
1-
SERVICE ACCESS
514
o
Automatic
Load
Lock
Services
panel
System
Services
panel
OIPT RECOMMENDS THAT AT
LEAST
600mm
SERVICE ACCESS SPACE IS
ALLOWED
BETWEEN
ANY
OBSTACLE (E.G. WALLS, PARTITIONS, ETC.) 0
AND
SERVICEABLE ITEMS,
E.G.
THE POWER
DISTRIBUTION UNIT.
I I
c
::>
2
1516
~
..
159
Fig 2:
ICP
180 system layout (3-frame cluster upgradeable)
NOTE: For services panel details,
see~.
Printed: 22-Mar-06, 6:57
Installation Data (Iep 180)
Page 7
of
18
Issue
5:
June 05