NPM-D电路 - 第101页
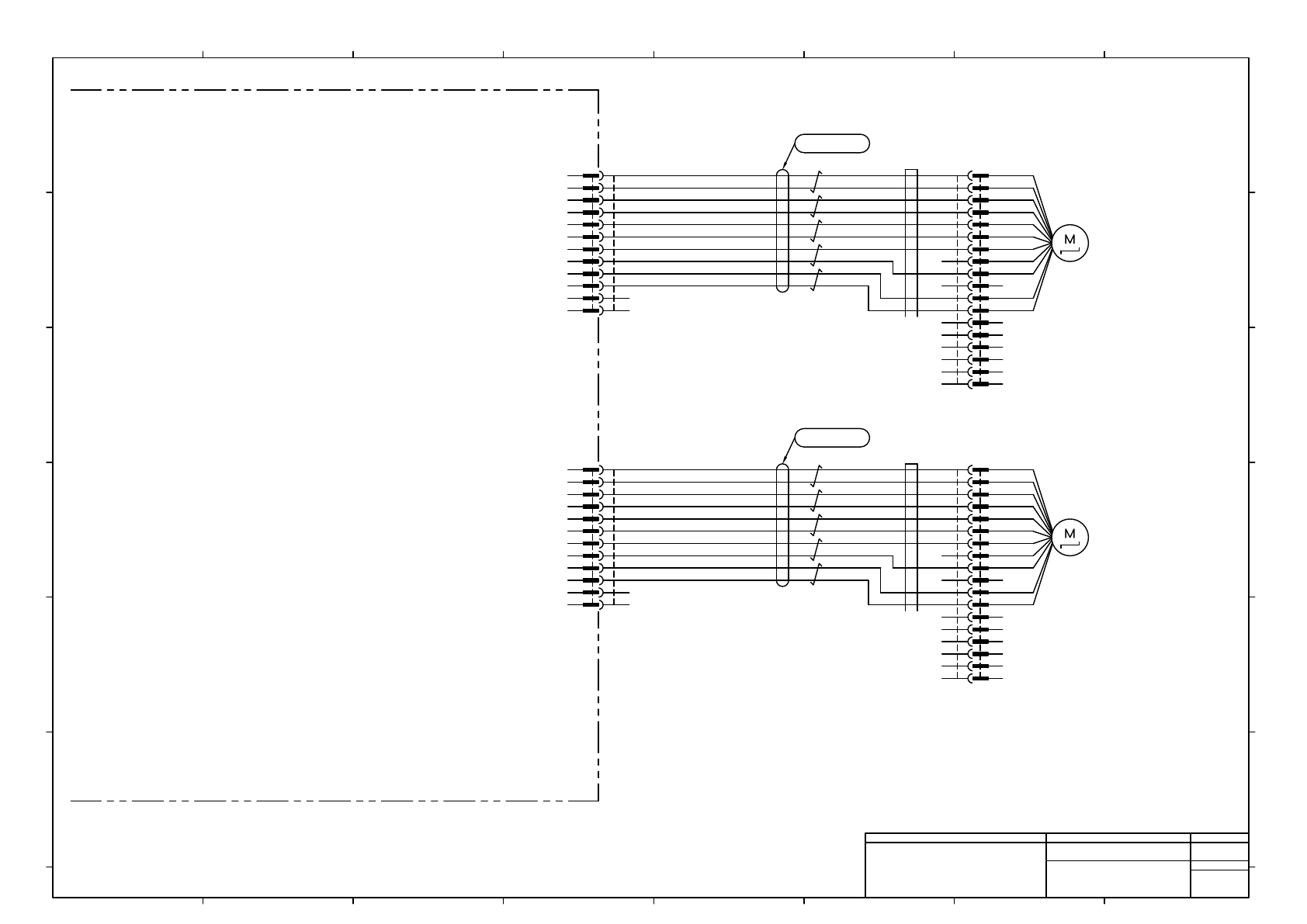
JST M603R PHDR-18VS 18 17 16 15 11 10 13 12 9 8 7 5 4 6 14 3 2 1 JST M602R PHDR-18VS 18 17 16 15 11 10 13 12 9 8 7 5 4 6 14 3 2 1 1 2 3 14 6 4 5 7 8 9 12 13 10 11 15 16 17 18 -M603 P24(M) GND(M) P24(C) GND(C) Revers STR/…

R4134P
R4136P
R4134,R4135
R4136,R4137
Transfer spec
1B1223R
1B1235P
1B1244P
B1235,B1236
B1244,B1245
2
Panasonic Factory Solutions Co.,Ltd. パナソニック ファクトリーソリューションズ株式会社
Name
Drawing No.
Loc. No.
F4K1020-05A
1
2 3 4 5 6 7 8
A
B
C
D
E
F
1 2 3 4 5 6 7 8
A
B
C
D
E
F
Page. No.
PC Dual Conveyor Wiring:NPM-D2
(Block diagram2)
N610152998+003AD
P003
N610153347**:Main Body wiring:NPM-D2
1
N610159580**:Main Body wiring:NPM-D3
3
3
R4134R
R4136R
1B1235R
1B1244R
1B1223P

JST
M603R
PHDR-18VS
18
17
16
15
11
10
13
12
9
8
7
5
4
6
14
3
2
1
JST
M602R
PHDR-18VS
18
17
16
15
11
10
13
12
9
8
7
5
4
6
14
3
2
1
1
2
3
14
6
4
5
7
8
9
12
13
10
11
15
16
17
18
-M603
P24(M)
GND(M)
P24(C)
GND(C)
Revers
STR/STP
SPD_H/L
EMG
DATA+
DATA-
CW/CCW
BUSY
OUT1
OUTPUT COM
NC
NC
NC
NC
1
2
3
14
6
4
5
7
8
9
12
13
10
11
15
16
17
18
-M602
P24(M)
GND(M)
P24(C)
GND(C)
Revers
STR/STP
SPD_H/L
EMG
DATA+
DATA-
CW/CCW
BUSY
OUT1
OUTPUT COM
NC
NC
NC
NC
MOLEX
1M603R
43025-1200
1
7
2
8
3
9
4
10
5
11
6
12
MOLEX
1M602R
43025-1200
1
7
2
8
3
9
4
10
5
11
6
12
2464C(BPF)VVP AWG#24×5P-B
BN/WH
BN
YE/WH
YE
GN/WH
GN
BK/WH
BK
RD/WH
RD
2464C(BPF)VVP AWG#24×5P-B
BN/WH
BN
YE/WH
YE
GN/WH
GN
BK/WH
BK
RD/WH
RD
N610153000AD
N610153001AD
L1 Right Conveyor motor
L1 Mount Position Conveyor motor
SEIWA
E04SR200932
SEIWA
E04SR200932
5
For 1M603P
Main Body Wiring of NPM-D2 (P040)
Main Body Wiring of NPM-D3 (P034)
3
For 1M602P
Main Body Wiring of NPM-D2 (P040)
Main Body Wiring of NPM-D3 (P034)
3
3
N610153347**:Main Body wiring:NPM-D2
N610159580**:Main Body wiring:NPM-D3
3
+V24(M)
GND(M)
+V24(C)
GND(C)
M-REV01
OT110
M-SPD01
EMG10
D+MAIN
D-MAIN
+24V(M)
GND(M)
+24V(C)
GND(C)
M-REV02
OT111
M-SPD02
EMG10
D+MAIN
D-MAIN
MOLEX
1M603P
43020-1200
12
6
11
5
10
4
9
3
8
2
7
1
MOLEX
1M602P
43020-1200
12
6
11
5
10
4
9
3
8
2
7
1
4
4
2464-1061/ⅡA(PF) LF 5P×24AWG
4
2464-1061/ⅡA(PF) LF 5P×24AWG
4
5
Panasonic Factory Solutions Co.,Ltd. パナソニック ファクトリーソリューションズ株式会社
Name
Drawing No.
Loc. No.
F4K1020-05A
1
2 3 4 5 6 7 8
A
B
C
D
E
F
1 2 3 4 5 6 7 8
A
B
C
D
E
F
Page. No.
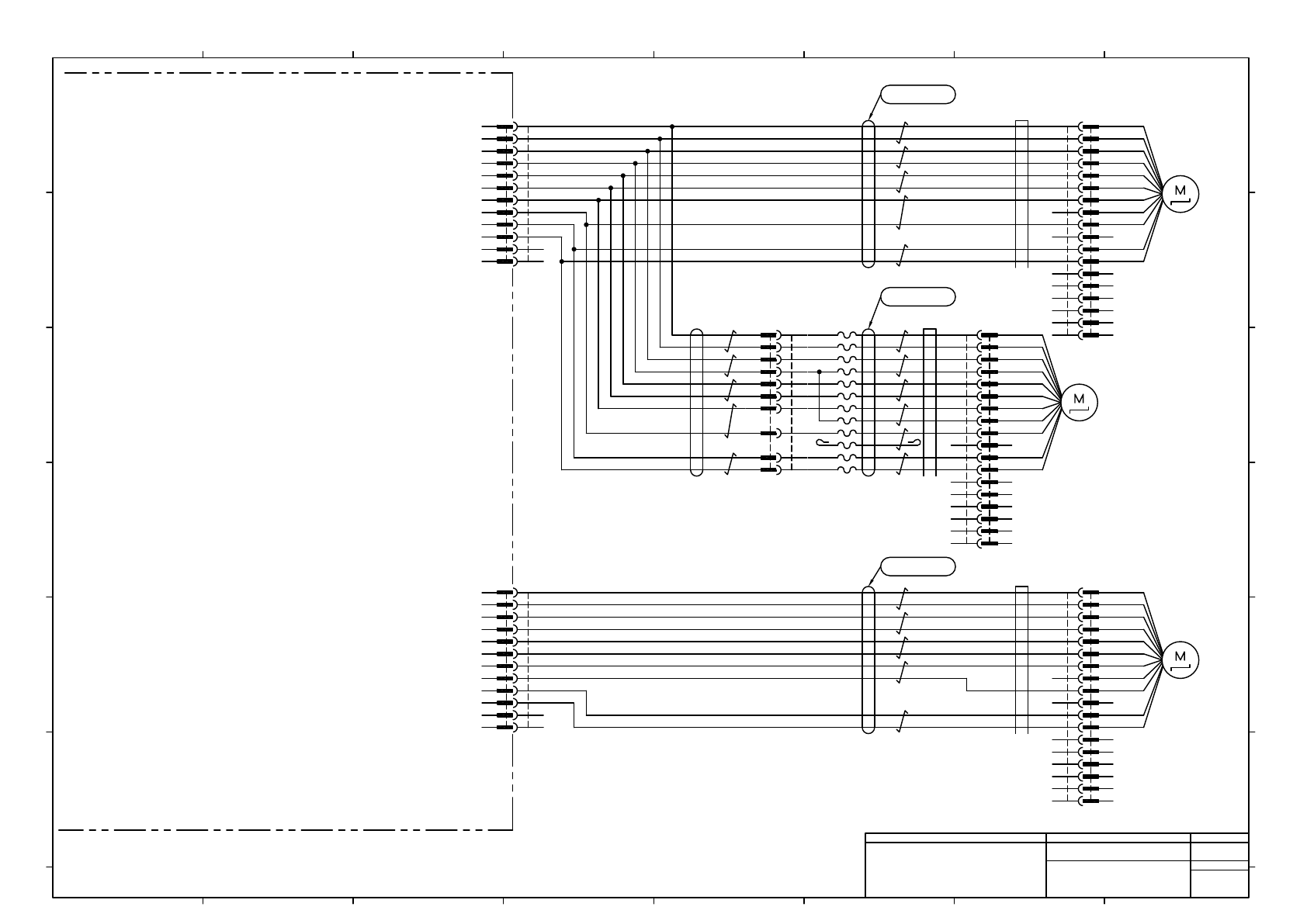
PC Dual Conveyor Wiring:NPM-D2
(Conveyor motor 1)
N610152998+004AF
P004

JST
M601R
PHDR-18VS
18
17
16
15
11
10
13
12
9
8
7
5
4
6
14
3
2
1
1
2
3
14
6
4
5
7
8
9
12
13
10
11
15
16
17
18
-M601
P24(M)
GND(M)
P24(C)
GND(C)
Revers
STR/STP
SPD_H/L
EMG
DATA+
DATA-
CW/CCW
BUSY
OUT1
OUTPUT COM
NC
NC
NC
NC
MOLEX
1M601R
43025-1200
1
7
2
8
3
9
4
10
5
11
6
12
2464C(BPF)VVP AWG#24×5P-B
BN/WH
BN
YE/WH
YE
GN/WH
GN
BK/WH
BK
RD/WH
RD
N610153003AD
L1 Left
Conveyor motor1
SEIWA
E04SR200932
JST
M609R
PHDR-18VS
18
17
16
15
11
10
13
12
9
8
7
5
4
6
14
3
2
1
1
2
3
14
6
4
5
7
8
9
12
13
10
11
15
16
17
18
-M609
P24(M)
GND(M)
P24(C)
GND(C)
Revers
STR/STP
SPD_H/L
EMG
DATA+
DATA-
CW/CCW
BUSY
OUT1
OUTPUT COM
NC
NC
NC
NC
L1 Left
Conveyor motor2
JST
M635R
PHDR-18VS
18
17
16
15
11
10
13
12
9
8
7
5
4
6
14
3
2
1
1
2
3
14
6
4
5
7
8
9
12
13
10
11
15
16
17
18
-M635
P24(M)
GND(M)
P24(C)
GND(C)
Revers
STR/STP
SPD_H/L
EMG
DATA+
DATA-
CW/CCW
BUSY
OUT1
OUTPUT COM
NC
NC
NC
NC
MOLEX
1M635R
43025-1200
1
7
2
8
3
9
4
10
5
11
6
12
BN/WH
BN
YE/WH
YE
GN/WH
GN
BK/WH
BK
RD/WH
RD
N610153008AD
L2 Mount Position
Conveyor motor
SEIWA
E04SR200932
2464C(BPF)VVP AWG#24×5P-B
T/2464-3599 クロ LF 6P×24AWG
OG
GN
WH
YE
BU
RD
BN
LB
PK
VT
BK
GY
SEIWA
E04SR200932
N610153004AB
MOLEX
1M609P
5559-10P-210
10
9
8
7
6
5
4
3
2
1
MOLEX
1M609R
5557-10R-210
1
2
3
4
5
6
7
8
9
10
BN/WH
BN
YE/WH
YE
GN/WH
GN
BK/WH
BK
RD/WH
RD
2464C(BPF)VVP AWG#24×5P-B
4
4
4
For 1M601P
Main Body Wiring of NPM-D2 (P041)
Main Body Wiring of NPM-D3 (P035)
3
N610153347**:Main Body wiring:NPM-D2
N610159580**:Main Body wiring:NPM-D3
3
For 1M635P
Main Body Wiring of NPM-D2 (P041)
Main Body Wiring of NPM-D3 (P035)
3
3
+V24(M)
GND(M)
+V24(C)
GND(C)
M-REV03
OT112
M-SPD03
EMG11
D+MAIN
D-MAIN
+V24(M)
GND(M)
+V24(C)
GND(C)
S-REV02
OT115
S-SPD02
EMG11
D+SUB
D-SUB
MOLEX
1M601P
43020-1200
12
6
11
5
10
4
9
3
8
2
7
1
MOLEX
1M635P
43020-1200
12
6
11
5
10
4
9
3
8
2
7
1
2464-1061/ⅡA(PF) LF 5P×24AWG
4
2464-1061/ⅡA(PF) LF 5P×24AWG
4
2464-1061/ⅡA(PF) LF 5P×24AWG
5
Panasonic Factory Solutions Co.,Ltd. パナソニック ファクトリーソリューションズ株式会社
Name
Drawing No.
Loc. No.
F4K1020-05A
1
2 3 4 5 6 7 8
A
B
C
D
E
F
1 2 3 4 5 6 7 8
A
B
C
D
E
F
Page. No.
PC Dual Conveyor Wiring:NPM-D2
(Conveyor motor 2)
N610152998+005AF
P005
5