NPM-D电路 - 第296页
在线预览 NPM-D电路 PDF 文档。

5.
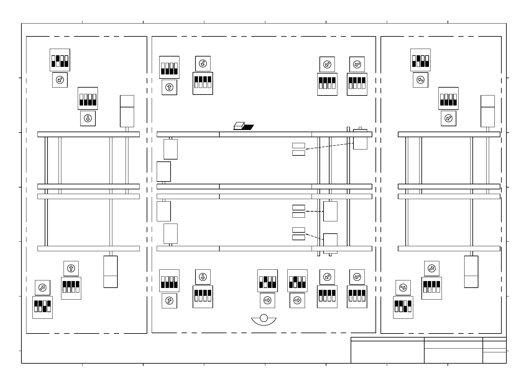
JUMPER CONFIGURATION
DIAGRAM
ジャンパー設定表
5-1 SET UP DIAGRAM
設定表
EJM6DB-10-501-00

Panasonic Factory Solutions Co.,Ltd. パナソニック ファクトリーソリューションズ株式会社
Name
Drawing No.
Loc. No.
F4K1020-05A
1
2 3 4 5 6 7 8
A
B
C
D
E
F
1 2 3 4 5 6 7 8
A
B
C
D
E
F
Page. No.
NPM-D2:DUAL CONVEYOR MOTOR
SET UP DIAGRAM
NPM-D2-CONV+001AA
DUAL CONVEYOR UNIT
M642 MOTOR
1
2
3
4
M646 MOTOR
1
2
3
4
O
N
1
2
3
4
O
N
M613 MOTOR
1
2
3
4
O
N
M611 MOTOR
M642
FLEXIBLE CONVEYOR STATION L
M646
O
N
M613
M611
FLEXIBLE CONVEYOR STATION R
8
A
8
A
M601
M635
M636
M607
M638
M652 MOTOR
1
2
3
4
M656 MOTOR
1
2
3
4
O
N
1
2
3
4
O
N
M623 MOTOR
1
2
3
4
O
N
M621 MOTOR
O
N
B
D
B
D
M63C MOTOR
1
2
3
4
O
N
0
1
2
3
4
O
N
M609 MOTOR
0
1
2
3
4
O
N
M635 MOTOR
2
M602 MOTOR
1
2
3
4
O
N
2
M603 MOTOR
1
2
3
4
O
N
3
Note:White indicates the switch is convex
(注)SWは白色が凸部を示す。
M623
M621
M652
M656
M609
M63C
M634
M602
M603
M601 MOTOR
1
2
3
4
O
N
1
1
2
3
4
O
N
M636 MOTOR
3
1
2
3
4
O
N
1
1
2
3
4
O
N
M607 MOTOR
1
2
3
4
O
N
M638 MOTOR
4 4
M635
M636
M607
M638
M602
M603
upper motor
lower motor
side view
side view
side view
upper motor
lower motor
upper motor
lower motor
M634 MOTOR