NPM-D电路 - 第301页
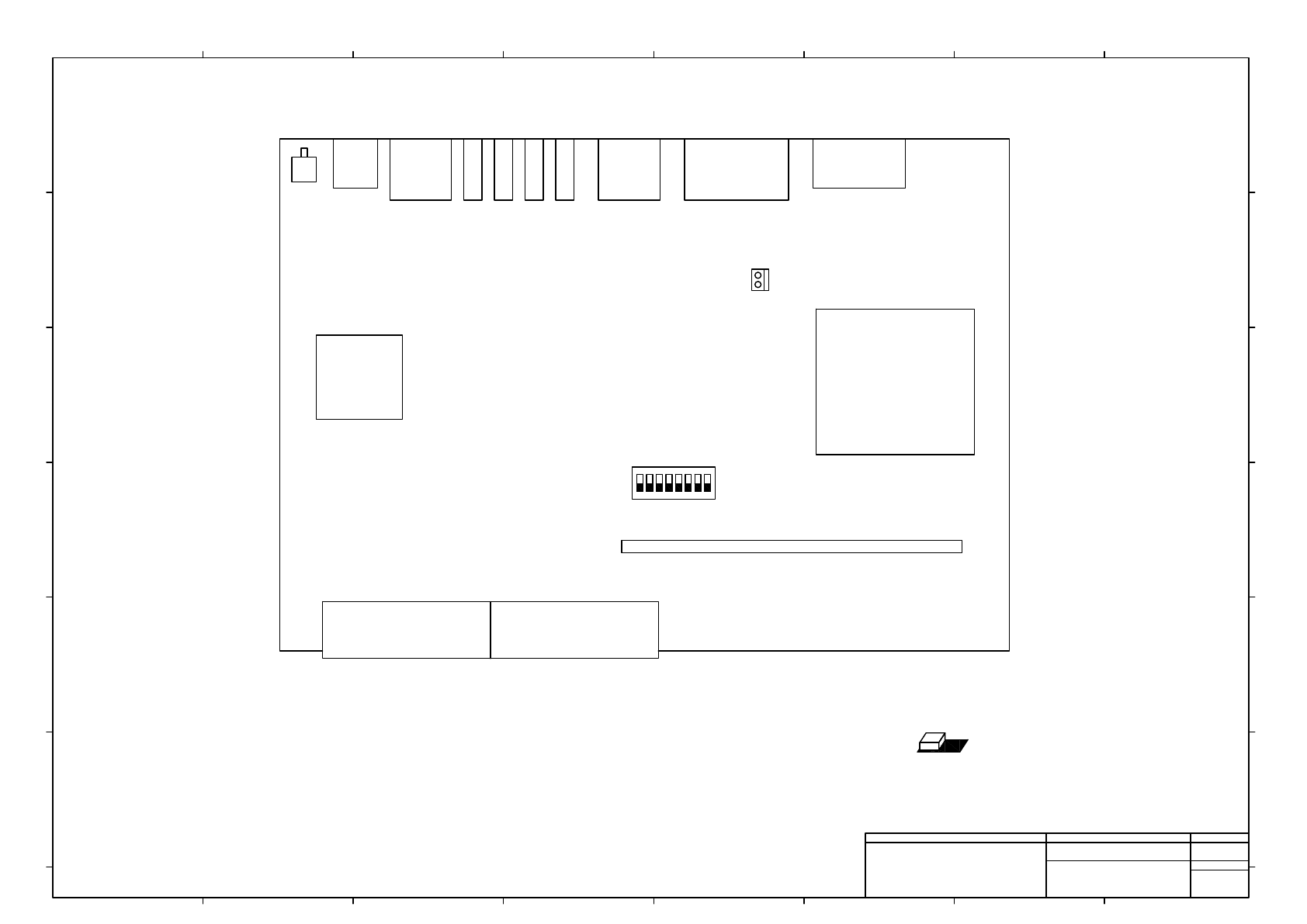
ON 8 1 Memory-Card 2 3 4 5 6 7 CPU CF NBC-JC155X-D7 SW1 LAN1 LAN2 CN7 CN6 CN5 CN4 CN8 CN9 100M 100M/1G RST USB4 USB3 USB2 USB1 CN2 CN1 COM2 COM1 CN3 CRT MOUSE KB J20 Note : White part means a convex part of Dip switch. P…

4 3 2
1
PS-ON
J1
NBC-7153-01
Panasonic Factory Solutions Co.,Ltd. パナソニック ファクトリーソリューションズ株式会社
Name
Drawing No.
Loc. No.
F4K1020-05A
1
2 3 4 5 6 7 8
A
B
C
D
E
F
1 2 3 4 5 6 7 8
A
B
C
D
E
F
Page. No.
NBC-7153-01
SET UP DIAGRAM
NBC-7153-01+001AA

ON
8
1
Memory-Card
2 3 4 5 6 7
CPU
CF
NBC-JC155X-D7
SW1
LAN1
LAN2
CN7
CN6
CN5
CN4
CN8
CN9
100M
100M/1G
RST
USB4
USB3
USB2
USB1
CN2
CN1
COM2
COM1
CN3
CRT
MOUSE
KB
J20
Note : White part means a convex part of Dip switch.
Panasonic Factory Solutions Co.,Ltd. パナソニック ファクトリーソリューションズ株式会社
Name
Drawing No.
Loc. No.
F4K1020-05A
1
2 3 4 5 6 7 8
A
B
C
D
E
F
1 2 3 4 5 6 7 8
A
B
C
D
E
F
Page. No.
CPU BOARD
SET UP DIAGRAM
NBC-JC155X-D7+001AA

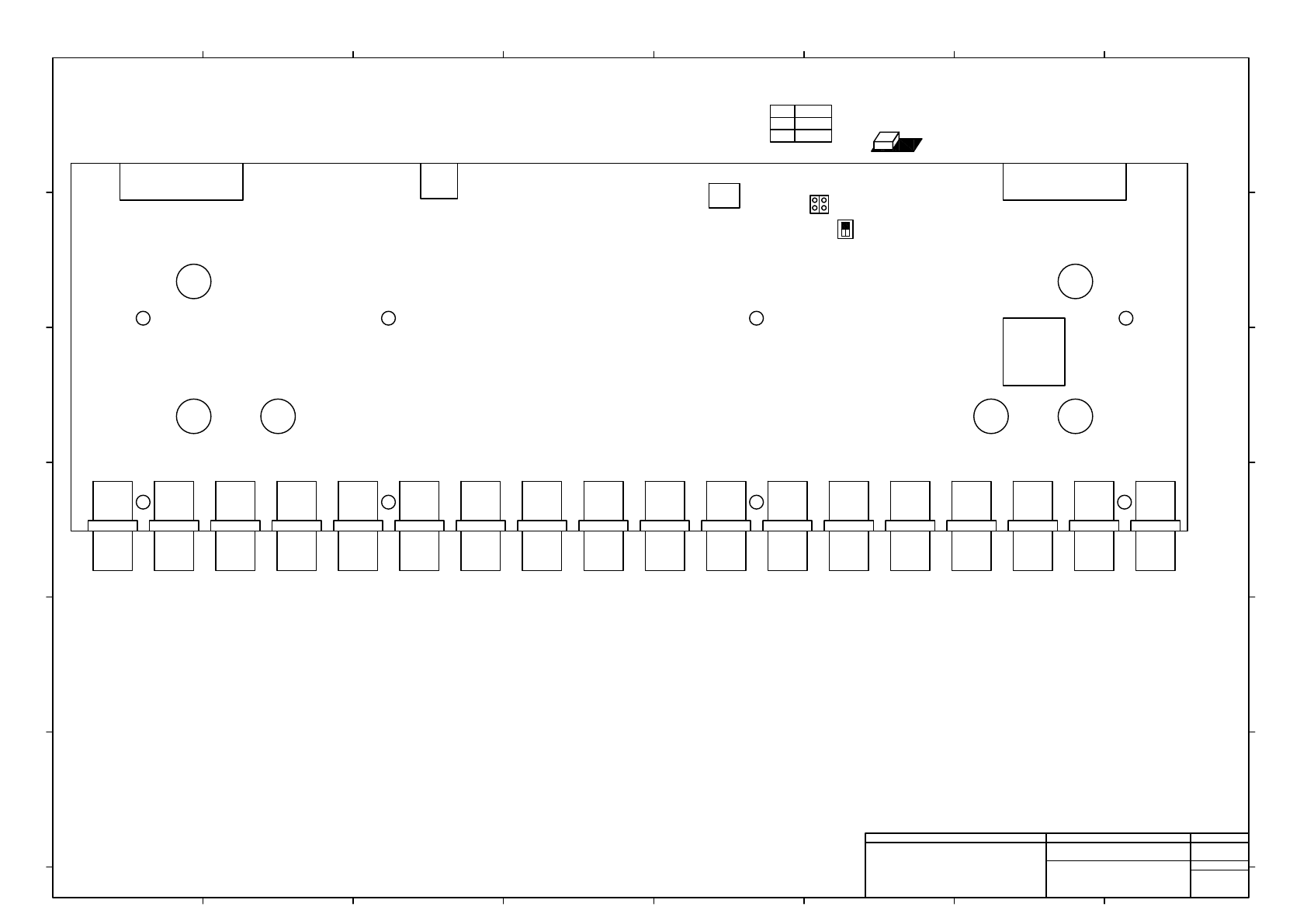
C2
PNF0A1
CN1
CN2 CN3 CN4 CN5 CN6 CN7 CN8 CN9
CN10 CN11 CN12 CN13 CN14 CN15 CN16 CN17 CN18
C1
CN23
CN22
CN21
J1
SW1
1 2
ON
(注)SWは白色が凸部を示す。
SW1
No.
Setting
1
2
ON
ON
Note : White part means a convex part of Dip switch.
1
Panasonic Factory Solutions Co.,Ltd. パナソニック ファクトリーソリューションズ株式会社
Name
Drawing No.
Loc. No.
F4K1020-05A
1
2 3 4 5 6 7 8
A
B
C
D
E
F
1 2 3 4 5 6 7 8
A
B
C
D
E
F
Page. No.
PNF0A1
SET UP DIAGRAM
PNF0A1+001AB