NPM-D电路 - 第307页
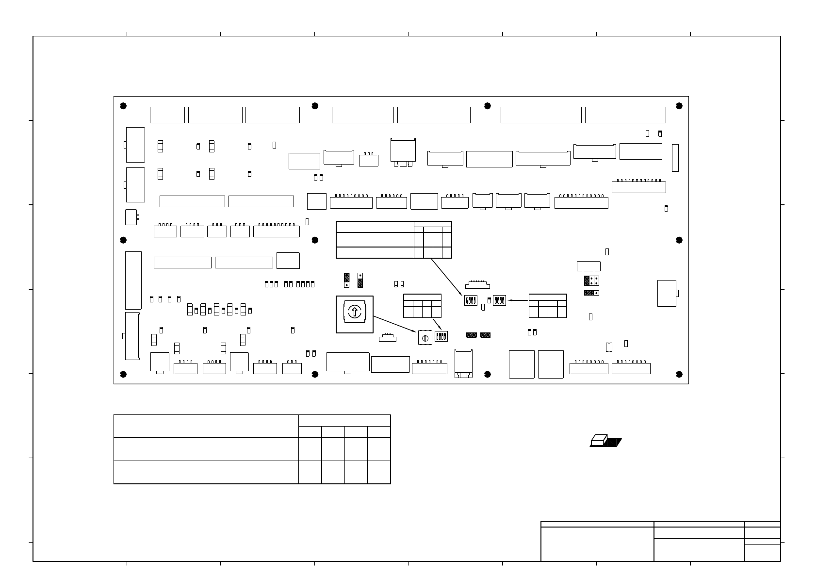
Note : White indicates the switch is convex CN-FANA CNMC5 CNMC4 CNMC3 CNMC2 CNMC1 CNDAM2 OPT2(TX) OPT1(RX) CNPLED CNTM1 CNTM2 CNEXR-M CNEXL-M EXTOT2 CNEXL-S CNEXR-S CN00 CNBYP1 CN01 CNVLB CN-FANB CN-FANC CNLED1 CNLED2 CN…

SW1
1
2
ON OFF
OFF
供給仕様
Component supply specification
リアトレイ仕様 or トレイ・台車 切替仕様
Rear tray / Feeder with cart switch unit
Others
Note : White indicates the switch is convex
上記以外
OFF
CN-FANA
CNMC5
CNMC4
CNMC3
CNMC2
CNMC1
CNDAM2
OPT2(TX)
OPT1(RX)
CNPLED
CNTM1
CNTM2
CNEXR-M
CNEXL-M
EXTOT2
CNEXL-S
CNEXR-S
CN00
CNBYP1
CN01
CNVLB
CN-FANB
CN-FANC
CNLED1
CNLED2
CNDU-P
CNFDCOV
CNDU-S
CN3D
CHNG1
CHNG2
CNTR1
CNTL
CNTR2
EXTOT1
CN-PWRM
CN-LED
CNTM-UP
CNSR1
CNEMGCOV
CNRLY1
CNX1
CNPATO
CNAIR
CNUP1 CNUP2
CNHOUR
CHIP1 CHIP2
CN-SRV
CNBK1 CNBK2
CN-CART CN1
PNF0B4- AA PbF
CN5
CN24V
CN6
CN7
SW2 SW1
JP6
JP5
SW4
SW3
GND
TP4
TP6
+1.2V
TP3
GND
TP1
24GND
TP2
24GND
2A/60V
2A/60V
2A/60V 2A/60V
2A/60V
2A/60V
2A/60V
2A/60V
1.10A/24V
4A/30V
JP3
JP4
FWE
TP5
+3.3V
LED30
LED31
LED32
LED33
LED36
LED37
LED20
LED34
LED35
LED19
LED18
LED29
LED21
LED22
LED23
LED24
LED9
LED10
LED11
LED12
LED13
LED14
LED15
LED16
LED17
1-2 Direct I/O
160mA/48V
LED6
LED7
LED3
LED5
LED2 LED4
LED1
LED25 LED26 LED27 LED28
F13
F15
F14
F12
F7
F8
F9
F10
F11
F4 F1
F2
F5
F6
F16
F3
LED8
CNDAM1
Setting 0
F
E
D
C
B
A
9
8
7
6
5
4
3
2
1
0
SW4
1
2
OFF
3 4
OFF OFF OFF
0
1 4
1 4 1 4
(注) SWは白色が凸部を示す。
2 1 2 1
ON
ON
JP2
3 1
JP1
3 1
ON
SW2
1
2
OFF
3 4
OFF OFF OFF
1 3
1 3
6 4
SW1
1
2
Component supply specification
O FF ON
O FF
Others
Rear tray / Feeder with cart
switch unit
O FF
3 4
O FF OFF
O FF O FF
3 4
OFF OFF
OFF OFF
Panasonic Factory Solutions Co.,Ltd. パナソニック ファクトリーソリューションズ株式会社
Name
Drawing No.
Loc. No.
F4K1020-05A
1
2 3 4 5 6 7 8
A
B
C
D
E
F
1 2 3 4 5 6 7 8
A
B
C
D
E
F
Page. No.
NPM-D3:PNF0B4-AA Board #1
SET UP DIAGRAM
PNF0B4-AA #1+001AA

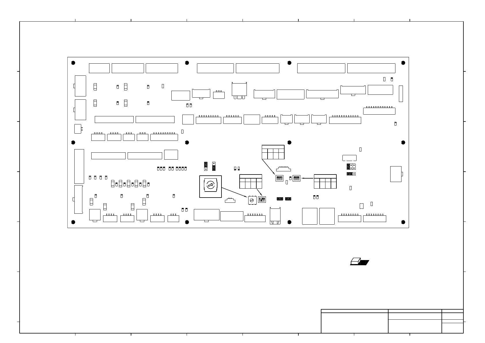
Note : White indicates the switch is convex
CN-FANA
CNMC5
CNMC4
CNMC3
CNMC2
CNMC1
CNDAM2
OPT2(TX)
OPT1(RX)
CNPLED
CNTM1
CNTM2
CNEXR-M
CNEXL-M
EXTOT2
CNEXL-S
CNEXR-S
CN00
CNBYP1
CN01
CNVLB
CN-FANB
CN-FANC
CNLED1
CNLED2
CNDU-P
CNFDCOV
CNDU-S
CN3D
CHNG1
CHNG2
CNTR1
CNTL
CNTR2
EXTOT1
CN-PWRM
CN-LED
CNTM-UP
CNSR1
CNEMGCOV
CNRLY1
CNX1
CNPATO
CNAIR
CNUP1 CNUP2
CNHOUR
CHIP1 CHIP2
CN-SRV
CNBK1 CNBK2
CN-CART CN1
PNF0B4- AA PbF
CN5
CN24V
CN6
CN7
SW2 SW1
JP6
JP5
SW4
SW3
GND
TP4
TP6
+1.2V
TP3
GND
TP1
24GND
TP2
24GND
2A/60V
2A/60V
2A/60V 2A/60V
2A/60V
2A/60V
2A/60V
2A/60V
1.10A/24V
4A/30V
FWE
TP5
+3.3V
LED30
LED31
LED32
LED33
LED36
LED37
LED20
LED34
LED35
LED19
LED18
LED29
LED21
LED22
LED23
LED24
LED9
LED10
LED11
LED12
LED13
LED14
LED15
LED16
LED17
1-2 Direct I/O
160mA/48V
LED6
LED7
LED3
LED5
LED2 LED4
LED1
LED25 LED26 LED27 LED28
F13
F15
F14
F12
F7
F8
F9
F10
F11
F4 F1
F2
F5
F6
F16
F3
LED8
CNDAM1
Setting 3
F
E
D
C
B
A
9
8
7
6
5
4
3
2
1
0
SW4
1
2
O N
3 4
OFF OFF OFF
1 4
1 4 1 4
(注) SWは白色が凸部を示す。
2 1 2 1
ON
ON
JP2
3 1
JP1
3 1
ON
SW2
1
2
OFF
3 4
OFF OFF OFF
SW1
1
2
OFF
3 4
OFF OFF OFF
3
JP3
JP4
1 3
1 3
6 4
Panasonic Factory Solutions Co.,Ltd. パナソニック ファクトリーソリューションズ株式会社
Name
Drawing No.
Loc. No.
F4K1020-05A
1
2 3 4 5 6 7 8
A
B
C
D
E
F
1 2 3 4 5 6 7 8
A
B
C
D
E
F
Page. No.
NPM-D3 : PNF0B4-AA Board #2
SET UP DIAGRAM
PNF0B4-AA #2+001AA

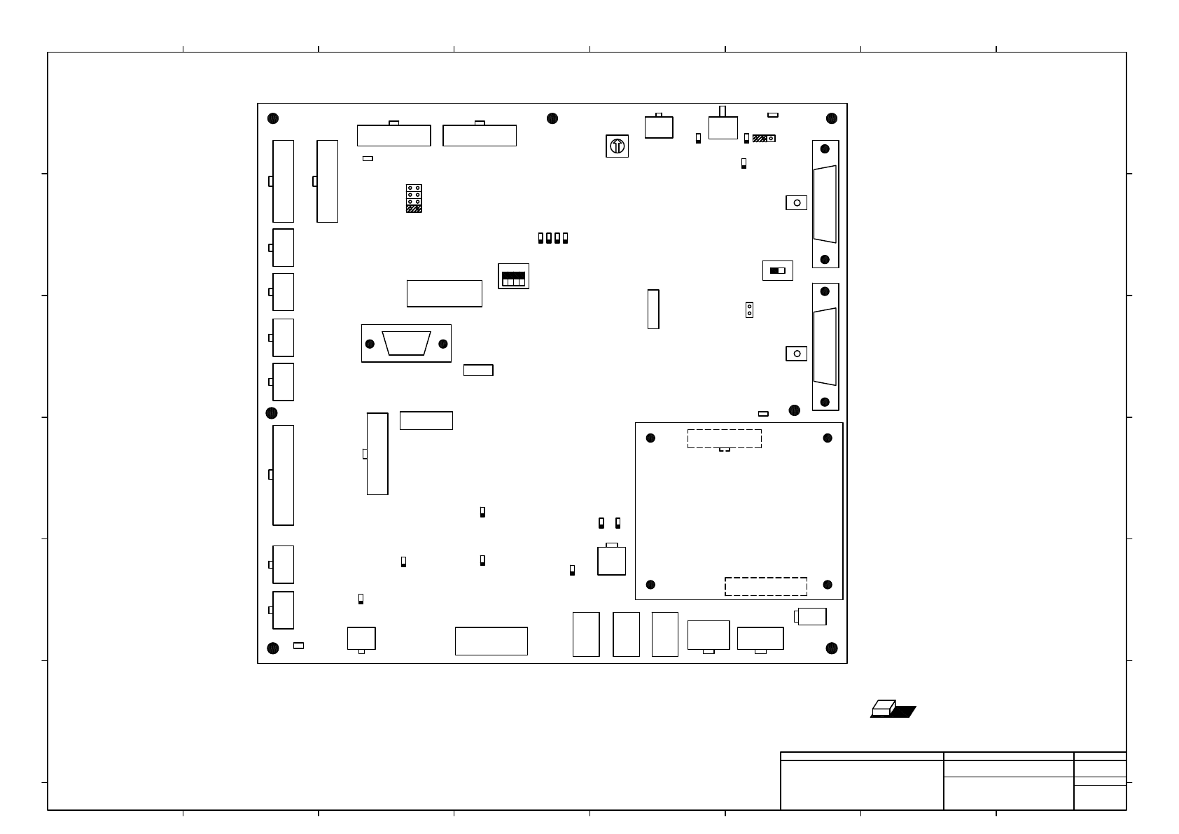
IN0
IN1
IN2
IN3
EXIN
IN4
IN5
COM-UP COM-LOW
P-MON IO-MON
IN611
LED1
IN610
LED2
JP1
GND
EMGHST
LED3
SW4
SW5
SW2
GND
SFRLY-CN1
SFRLY-CN2
SSTOP
ISP
OUT22 LED4
OUT21
LED5
OUT20
LED6
OUT23 LED7
SW3
CN_E10A
1
3
JP2
5 4
8
1
EXOUT2
DBG
232CLF
RFID
FAN-ALM
TP5
24G
BTL
MDRSW TRYSON TRYEMG
RBKSW
P-IN
CN24V_LV
MC
24V
LED10
LED9
CPURDY
LED13
ILKOUT
LED8
RSTDL
LED12
LED14
MBRO
LED11
PONC
2
1
TP1
TP4
TRAY0
TRAY1
OUT1
SW1
EXOUT1
24G
TP2
0
ON
JP3
Note : White part means a convex part of Dip switch.
1
Panasonic Factory Solutions Co.,Ltd. パナソニック ファクトリーソリューションズ株式会社
Name
Drawing No.
Loc. No.
F4K1020-05A
1
2 3 4 5 6 7 8
A
B
C
D
E
F
1 2 3 4 5 6 7 8
A
B
C
D
E
F
Page. No.
PNF0AT
SET UP DIAGRAM
PNF0AT+001AB