RS-1維修調整要領書 - 第226页
维修调整要领书 12 - 34 Z 伺服 放大器中安装有 7 个 LED 。各 L ED 的状态 显示如下所示。 № LED 名称 显示色 动作 1 LED7 红 主电路存在电荷 时亮灯。 2 LED1 绿 显示第 1 轴的状态。 LED1 、 LE D4 的 组合状态参见下表。 3 LED4 红 4 LED2 绿 显示第 2 轴的状 态。 LED2 、 LE D5 的 组合状态参见下表。 5 LED5 红 6 LED3 绿 显示第 3…

维修调整要领书
12-33
LED 显示
T 伺服放大器中安装有 9 个 LED。各 LED 的状态显示如下所示。
№
LED
名称
显示色
动作
1
CHARGE
红
主电路存在电荷时亮灯。
2
RD1
绿
显示第
1
轴的状态。
RD1、AL1 的组合状态参见下表。
3
AL1
红
4
RD2
绿
显示第 2 轴的状态。
RD2、AL2 的组合状态参见下表。
5
AL2
红
6
RD3
绿
显示第
3
轴的状态。
RD3、AL3 的组合状态参见下表。
7
AL3
红
8
RD4
绿
显示第 4 轴的状态。
RD4、AL4 的组合状态参见下表。
9
AL4
红
RD*
AL*
状态
闪烁
闪烁
(
与绿灯交互闪烁
)
控制器未连接(接通电源后立即)
闪烁
熄灭
伺服关闭
闪烁
闪烁
(
与绿灯同时闪烁
)
伺服关闭
/
警告状态
闪烁
亮灯
伺服关闭
/
警告状态
亮灯
熄灭
伺服打开状态
亮灯
闪烁
伺服打开
/
警告状态
亮灯
亮灯
接通电源后立即
(
初始化过程中
)
熄灭
熄灭
控制电源尚未提供
LED

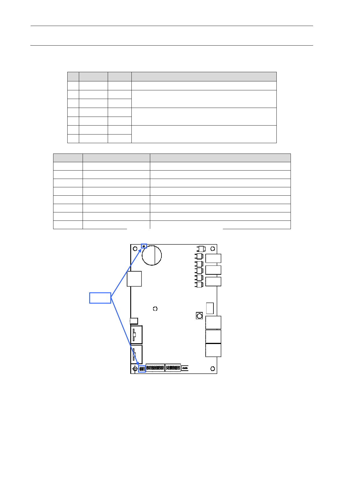
维修调整要领书
12-34
Z 伺服放大器中安装有 7 个 LED。各 LED 的状态显示如下所示。
№
LED
名称
显示色
动作
1
LED7
红
主电路存在电荷时亮灯。
2
LED1
绿
显示第
1
轴的状态。
LED1、LED4 的组合状态参见下表。
3
LED4
红
4
LED2
绿
显示第 2 轴的状态。
LED2、LED5 的组合状态参见下表。
5
LED5
红
6
LED3
绿
显示第
3
轴的状态。
LED3、LED6 的组合状态参见下表。
7
LED6
红
绿
LED
红
LED
状态
闪烁
闪烁
(
与绿灯交互闪烁
)
控制器未连接(接通电源后立即)
闪烁
熄灭
伺服关闭
闪烁
闪烁
(
与绿灯同时闪烁
)
伺服关闭
/
警告状态
闪烁
亮灯
伺服关闭
/
警告状态
亮灯
熄灭
伺服打开状态
亮灯
闪烁
伺服打开
/
警告状态
亮灯
亮灯
接通电源后立即
(
初始化过程中
)
熄灭
熄灭
控制电源尚未提供
LED

维修调整要领书
12-35
12-8
传送单元
12-8-1
传送单元的构成
传送单元的构成图如图 12-8-1-1 所示。
图
12-8-1-1
1 侧传感器 L 9 支撑台原点传感器 17 传送马达
2 侧传感器 R 1O 自动调整宽度原点传感器 18 止动器传感器 L
3 BU 销检测传感器发光 11 CONVEYOR PCB 19 止动器传感器 R
4 BU 销检测传感器受光 12 传送 电机驱动器 2O 传送电磁阀
5 STOP 传感器 L 光纤受光 13 自动调整宽度 电机驱动器 21 STOP 传感器 (L→R 用
)
C-Out 传感器 (如果 R→L)
6 STOP 传感器 L 光纤发光 14 BU 伺服驱动器 22 STOP 传感器 (R→L 用
)
C-Out 传感器 (如果 L→R)
7 STOP 传感器 R 光纤受光 15 自动调整宽度编码器
8 STOP 传感器 R 光纤发光 16 自动调整宽度马达
1
2
3
4
5
7
6
8
9
10,16
11
11
12
12,13
14
15
17
17
18,19
5
21
22