VM101_z_20230721 - 第69页
VM- 101 20 23.0 721 - 63 - 6. 其他标准规格 6.1 程序功能 数据编制都是在数据编 制系统 NPM-DG S 进行。 在 NPM-DGS 作成的生产数据, 通过 LNB (FA 电脑 ) 或者 AM -LNB 下载于设备。 但是,部分数据修正也 可在机器主体 上进行。 在设备主体修正的数据 以及校正 内容被保存,可以 再利用。 ※ NPM-DGS 用的硬 件,请客户 准备。 (NPM-D GS 是其他产品 …

VM-101 2023.0721
- 62 -
5.9
基板信息通信功能(标准功能)
在生产线先端的设备进行标记识别,与下游侧的设备传接信息。
通过使用传送到下游侧设备的信息,能够缩短时间。
■ 不良标记的通信
在生产线先端的设备识别不良标记,与下游侧设备传接不良标记的信息。
下游侧的设备,能够缩短不良标记的识别时间。
第 1 台
第 2 台以后
第 2 台以后,根据从上游传送来的信息,
跳过不良标记。
※ 对象设备: VM101/ 102
■ 图形标记的通信
在生产线先端的设备识别图形标记,与下游侧设备传接补正值的信息。
下游侧设备,只需识别主标记,能够缩短基板识别时间。
第 1 台
第 2 台以后
第 2 台以后,根据主标记的识别结果和上游侧传送来的信息,
进行补正。
※ 对象设备: VM101/ 102
※ 分割实装时,即使是第 2 台以后的设备,也有可能需要进行全点识
别。
全点识别
只识别主标记
※ 从 NPM-X 系列和 NPM 系列以外的设备接收基板信息时,或与 APC 组合使用时,需要个别商讨。
有关详细情况请咨询。
合格品
不良品

VM-101 2023.0721
- 63 -
6.
其他标准规格
6.1
程序功能
数据编制都是在数据编制系统 NPM-DGS 进行。在 NPM-DGS 作成的生产数据,通过 LNB (FA 电脑)或者 AM-LNB
下载于设备。
但是,部分数据修正也可在机器主体上进行。
在设备主体修正的数据以及校正内容被保存,可以再利用。
※ NPM-DGS 用的硬件,请客户准备。(NPM-DGS 是其他产品。)
NPM-DGS 和 NPM-DGS 选购件的牌照是设定为 1 台设备 1 张牌照。因此复数台机器需要购买同样数量的牌照。
有关 NPM-DGS 的详细情况,请参照别册的「NPM-DGS 规格说明书」。
6.2
信号塔
信号灯的颜色和亮灯标准
信号灯
颜色
分 类
亮灯标准
红色
紧急停止错误
・ 马达等的轴异常
・ 空气压力下降
・ 基板支撑部异常
・ 贴装头故障
・ 编带故障 等
黄色
中途停止错误
・ 吸着错误
・ 贴装错误
・ 基板传送错误
・ 元件用完
・ 吸嘴更换错误 等
绿色
运转中
自动运转等动力为 ON 时
(但是,红色和黄色闪烁时熄灯)
※ 亮灯规格,可以变更设定。
数据编制系统 NPM-DGS
设备设定
PCB 数据
元件数据
最佳化
生产数据
网板 Gerber 数据
(锡膏检查时)
距离地面
2 000 mm
(
标准
)
红
黄
绿

VM-101 2023.0721
- 64 -
7.
印刷基板设计基准
7.1
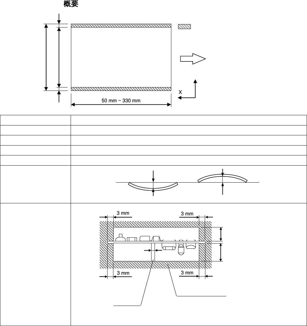
印刷基板规格概要
项 目
规 格
基板尺寸
50 × 50 mm ~ 330 × 250 mm
贴装可能范围
50 × 44 mm ~ 330 × 244 mm
基板厚度
0.3 mm ~ 8.0 mm
基板重量
1.5 kg 以下
※
1
基板弯曲容许
基板断面
贴装前基板状态
※1 基板重量(包括载体重量)超过 1.5 kg 的情况时,请另行联络。
※2 使用支撑销自动更换功能的情况时,支撑销形状、销的配置条件等有异。
详细请参阅「9. 选购件:支撑销的自动更换」。
※ 有关陶瓷基板的对应请另行联络。
※ 基板的颜色为透明,半透明,磨砂黑等时,可能不会被正常传送。
如需生产上述颜色的基板,请提前进行商谈。
Max. 0.5 mm
Max. 0.5 mm
禁止有元件的范围
支撑销
※
2
(
设置在与反面元件距离隔开
2 mm
以上的位置。
)
28 mm
3 mm
3 mm
3 mm
φ
3
3 mm
Y
X
固定侧
禁止有元件的范围
3 mm
50 mm ~ 330 mm
3 mm
50 mm ~ 250 mm
44 mm ~ 244 mm
流向
轻量
16
吸嘴贴装头
V2 6.5 mm
轻量
8
吸嘴贴装头
12 mm
4
吸嘴贴装头
30 mm