NPM-S - 第513页
Kit Name Rank Q'ty 番号 Pa rt N o . キット名 品番 数量 ランク 頁 Pa ge No. U29 キットリスト KIT LIST 1 90 N610098255AA Feeder Cart Drive Unit(Changing Specificati on):NPM 交換台車駆動部(切替仕様):NPM O 407 1 91 N610075309AA Feeder cart support un…

U29
キットレイアウト
KIT LAYOUT
--
O405
( KEJM9BS-08-29 )

Kit Name
RankQ'ty
番号
Part No.
キット名
品番
数量 ランク
頁
PageNo.
U29
キットリスト
KIT LIST
1
90
N610098255AA
Feeder Cart Drive Unit(Changing Specification):NPM
交換台車駆動部(切替仕様):NPM
O
407
1
91
N610075309AA
Feeder cart support unit(rear side)H:NPM
交換台車対応U(後側)制御:NPM
O
413
1
92
N610084840AA
Label(Feeder Cart Changing Unit Drive Part):NPM
銘板・警告ラベル(交換台車切替ユニット駆動部):NPM
O
415
1
93
N610090796AA Coupler Extension Part:NPM
ドロアコネクタ延長部:NPM
O
417
1
94
N610101773AA Label(Coupler Extension Unit):NPM
銘板・警告ラベル(ドロアコネクタ延長ユニット):NPM
O
419
1
95
N610098516AA Change Support Cart:NPM
切替用台車:NPM
O
421
O406
--
( KEJM9BS-08-29 )

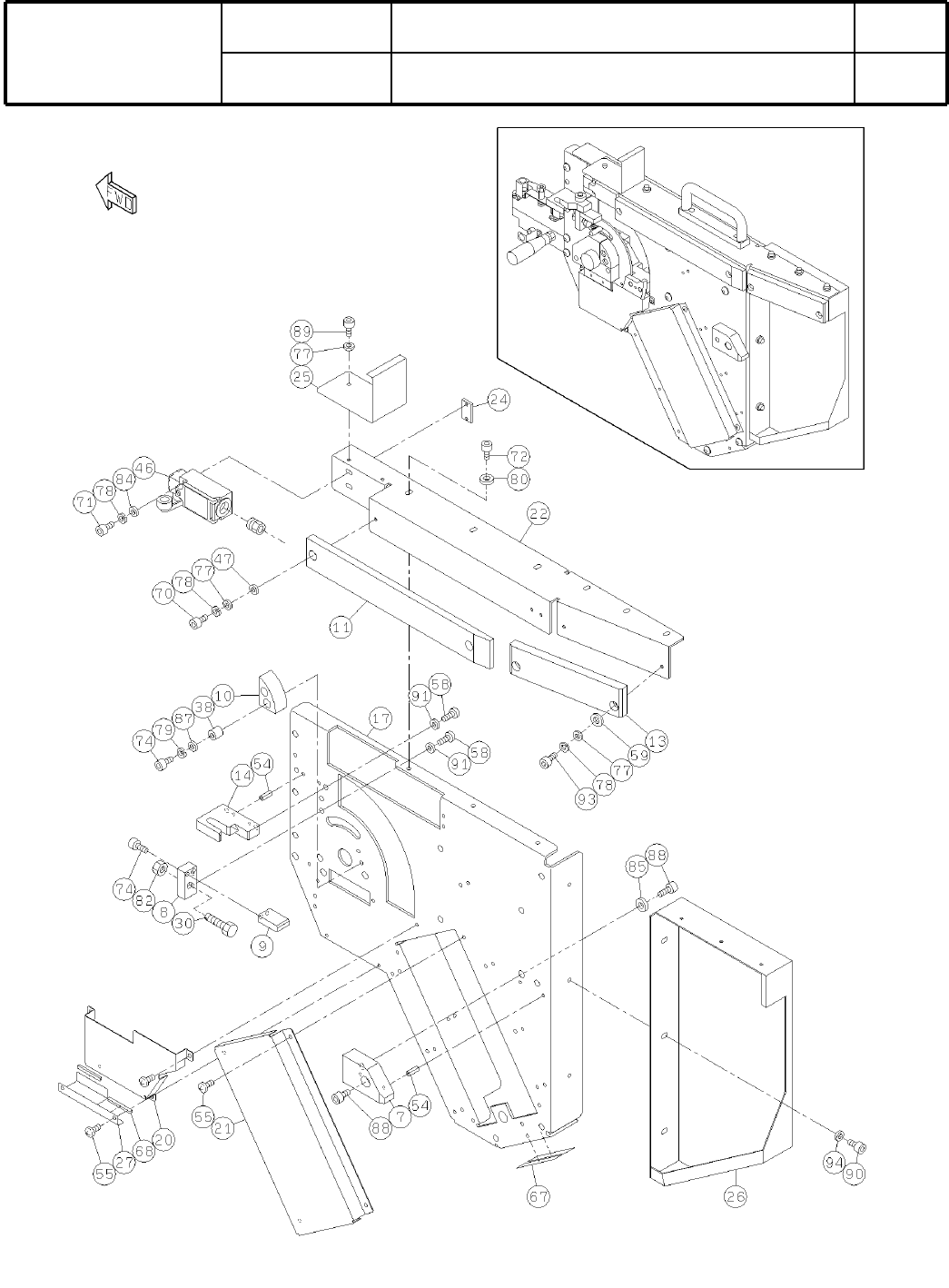
90-A
交
換
台車駆
動部
(切替仕様):NPM
Feeder Cart Drive Unit(Changing Specification):NPM
パーツレイアウト
Ki
t
N
o
.
キット
品番
Kit Name
キット名称
N610098255AA
セクションNo.
PARTS LAYOUT
Section No.
--
O407
( KN610098255AA-03-1 )