P-196-001e - 第246页
MODEL TCM-3100J-2 0108-001 244 ࠞࡃㇱ COVER SECTION Fig.12-3 ㇱࡈࡓ Upper Frame 1 2 3 4 5 6 11 11 12 12 13 13 1 0 7 8 9 63 63 64 64 71 71 72 72 73 73 70 70 51 51 68 68 5 9 69 69 1 6 17 17 18 18 19 19 1 5 30 30 3 1 26 26 55…

MODEL TCM-3100J-2
0108-001
243
Key No. PART No. PART NAME Q’ty REMARKS
NOTE
12-2
1 630 041 9498 COVER 1 659R--03B-117
2 630 041 9504 COVER 1 659R--03B-118
3 630 058 1645 COVER(ML) 1 659R--03B-119
4 630 058 1638 COVER(MR) 1 659R--03B-120
5 411 113 9109 SCR TRS 5X10 8 M5X10 TRS
7 630 066 2979 COVER(RER) 1 659R--03B-123
9 411 113 9109 SCR TRS 5X10 6 M5X10 TRS
10 630 058 2093 COVER(DUCT) 1 659R--03B-133
11 630 051 8078 COVER(FSL) 1 659R--03B-126
14 411 113 9109 SCR TRS 5X10 9 M5X10 TRS
21 630 094 5805 COVER 1 659R--03B-128
22 630 070 3863 COVER(RBC) 1 659R--03B-129
23 630 070 3870 COVER(RBC) 1 659R--03B-130
24 630 094 5812 COVER 1 659R--03B-131
28 411 113 9109 SCR TRS 5X10 33 M5X10 TRS
29 630 073 0203 COVER(RS) 2 659R--03B-134
30 411 113 9109 SCR TRS 5X10 8 M5X10 TRS
41 411 141 4305 WASHER V 6X12.5X1.6 3 FW6
42 411 141 3001 WASHER SPR 6 3 SW6
43 630 000 7893 BOLT,HEX-SCT 3 M6X20

MODEL TCM-3100J-2
0108-001
244
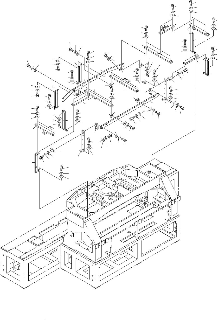
ࠞࡃㇱ COVER SECTION
Fig.12-3 ㇱࡈࡓ Upper Frame
1
2
3
4
5
6
11
11
12
12
13
13
10
7
8
9
63
63
64
64
71
71
72
72
73
73
70
70
51
51
68
68
59
69
69
16
17
17
18
18
19
19
15
30
30
31
26
26
55
55
35
35
43
43
47
47
39
1
2
3
4
9
8
7
65
65
66
66
67
67
65
65
66
67
52
52
53
53
54
54
32
32
33
33
34
34
71
71
72
72
73
73
26
26
26
26
26
36
37
37
38
38
23
23
24
25
25
23
23
24
25
25
23
24
25
25
23
23
24
25
25
11
11
12
13
13
27
27
28
29
29
27
27
28
29
29
32
32
33
34
20
20
21
21
22
71
71
72
72
73
73
60
60
61
62
20
20
21
21
22
22
20
20
21
21
22
22
46
46
45
45
44
44
20
20
21
21
22
22
40
40
41
41
42
48
49
50
56
56
57
58
58
27
27
28
28
29
29
27
27
28
29

MODEL TCM-3100J-2
0108-001
245
Key No. PART No. PART NAME Q’ty REMARKS
NOTE
12-3
1 630 051 2588 FRAME 2 659R--03B-001
2 411 141 4305 WASHER V 6X12.5X1.6 4 FW6
3 411 141 3001 WASHER SPR 6 4 SW6
4 630 000 7909 BOLT,HEX-SCT 4 M6X25
5 630 038 9555 BLOCK 1 659R--03B-003
6 630 038 9548 BLOCK 1 659R--03B-004
7 411 141 4107 WASHER V 5X10X1 4 FW5
8 411 141 6705 WASHER SPR 5 4 SW5
9 630 000 7800 BOLT,HEX-SCT 4 M5X35
10 630 099 5497 FRAME 1 659R--03B-005
11 411 141 4107 WASHER V 5X10X1 4 FW5
12 411 141 6705 WASHER SPR 5 4 SW5
13 630 000 7756 BOLT,HEX-SCT 4 M5X12
15 630 052 6127 FRAME 1 659R--03B-018
16 630 051 2700 STAY 1 659R--03B-014
17 630 058 0389 STAY 1 659R--03B-015
18 630 058 0747 STAY 1 659R--03B-016
19 630 058 0754 STAY 1 659R--03B-017
20 411 141 4107 WASHER V 5X10X1 4 FW5
21 411 141 6705 WASHER SPR 5 4 SW5
22 630 000 7749 BOLT,HEX-SCT 4 M5X10
23 411 141 4305 WASHER V 6X12.5X1.6 8 FW6
24 411 141 3001 WASHER SPR 6 8 SW6
25 630 000 7909 BOLT,HEX-SCT 8 M6X25
26 630 050 6785 BRACKET 4 659R--03B-021
27 411 141 4107 WASHER V 5X10X1 8 FW5
28 411 141 6705 WASHER SPR 5 8 SW5
29 630 000 7749 BOLT,HEX-SCT 8 M5X10
30 630 063 0411 FRAME 1 659R--03B-019
31 630 052 6141 FRAME 1 659R--03B-020
32 411 141 4107 WASHER V 5X10X1 4 FW5
33 411 141 6705 WASHER SPR 5 4 SW5
34 630 000 7749 BOLT,HEX-SCT 4 M5X10
35 630 075 8641 STAY 1 659R--03B-026
36 411 141 4305 WASHER V 6X12.5X1.6 2 FW6
37 411 141 3001 WASHER SPR 6 2 SW6
38 630 000 7909 BOLT,HEX-SCT 2 M6X25
39 630 051 2571 BRACKET 1 659R--03B-029
40 411 141 4107 WASHER V 5X10X1 2 FW5
41 411 141 6705 WASHER SPR 5 2 SW5
42 630 000 7756 BOLT,HEX-SCT 2 M5X12
43 630 058 0143 FRAME 1 659R--03B-027
44 411 141 4107 WASHER V 5X10X1 2 FW5
45 411 141 6705 WASHER SPR 5 2 SW5
46 630 000 7749 BOLT,HEX-SCT 2 M5X10
47 630 058 0297 FRAME 1 659R--03B-028
48 411 141 4107 WASHER V 5X10X1 2 FW5
49 411 141 6705 WASHER SPR 5 2 SW5
50 630 000 7749 BOLT,HEX-SCT 2 M5X10
51 630 050 6778 BRACKET 1 659R--03B-009