P220002e.pdf - 第89页
MEMO

Key No. PART No. PART NAME Q’ty REMARKS
NOTE
MODEL TPM-110F/R-C
0211-001
86
382 630 000 8951 SET SCREW 2 748H--310-382
384 630 000 8012 BOLT,HEX-SCT 4 748H--310-384
385 411 141 3100 WASHER SPR 8 4 748H--310-385
386 630 001 0244 WASHER 4 748H--310-386
387 630 000 7626 BOLT,HEX-SCT 3 748H--310-387
H-4

MEMO

MODEL TPM-110F/R-C
0211-001
88
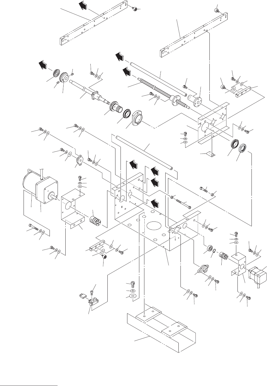
コンベア部
CONVEYOR SECTION
Fig. H-4 R
コンベアフレーム
R Conveyor Frame
( 奥基準)
(Rear Reference)
314
See Fig.H-3
Key No.215
375
366
374
324
311
326
303
301
314
367
325
325
328
375
364
374
314
379
310
380
384
371
371
315
369
370
362
370
369
362
376
376
329
318
385
386
364
375
374
305
304
327
382
313
382
A
314
365
375
374
387
375
376
309
387
375
374
362
370
369
363
373
372
320
321
368
378
377
369
370
361
370
369
362
369
370
361
369
370
361
See Fig.H-3
Key No.215
See Fig.K-1
Key No.4
361
370
369
369
370
308
361
306
307
317
365
375
374
361
370
369
D
A
B
D
C
C
B
330
319
323
331
322
312
311