PTS-NXT-08JE - 第224页
A B D 27 28 29 29 30 30 31 29 30 31 31 15 15 16 16 18 19 20 21 22 20 23 23 24 24 25 25 26 26 21 22 32 35 37 38 39 33 34 34.1 37 38 39 35 32 40 41 42 36 44 44 43 43 33 34 34.1 3. BASE / ベース 224 PTS-NXT-08JE

3.2. EXTERNAL VACUUM PUMP
3.2. 増設バキュームポンプ
UB00804
No. Drg.No. & Code No. QTY Description Rating
Materials
Remarks
番号 図番 & コード番号 個数 品名 規格 材質 備考
1 PB44401 1 PLATE プレート FE
2 K2024R 2 CASTER キャスタ NO.105-N OT
3 H5320A 8 BOLT, HEX SOCKET ボルト 六角穴 M06X010 OT
4 W1024A 8 WASHER, LOCK ワッシャ スプリング 6M/M OT
5 K2024W 2 CASTER, UNIVERSAL キャスタ 自在 NO.105-N-S OT
6 H5320A 8 BOLT, HEX SOCKET ボルト 六角穴 M06X010 OT
7 W1024A 8 WASHER, LOCK ワッシャ スプリング 6M/M OT
8 PB44310 1 BKT BKT FE
9 XP00530 1 PUMP, VACUUM ポンプ バキューム OT
10 H5321A 4 BOLT, HEX SOCKET ボルト 六角穴 M06X012 OT
11 W1024A 4 WASHER, LOCK ワッシャ スプリング 6M/M OT
12 PB44290 1 BKT BKT FE
13 H5298A 4 BOLT, HEX SOCKET ボルト 六角穴 M05X010 OT
14 W1023A 4 WASHER, LOCK ワッシャ スプリング 5M/M OT
15 H3022Z 1 FILTER フィルタ VFR20-16-16 OT
16 H5298A 2 BOLT, HEX SOCKET ボルト 六角穴 M05X010 OT
17 W1023A 2 WASHER, LOCK ワッシャ スプリング 5M/M OT
18 W1044A 2 WASHER, FLAT ワッシャ 平 4W- 5 OT
19 A40687 2 ELBOW エルボ KQ2L16-99 OT
20 PZ08870 1 TUBE チューブ OT
21 PZ13561 1 TUBE チューブ OT
22 PB44300 1 BKT BKT FE
23 H5287A 2 BOLT, HEX SOCKET ボルト 六角穴 M04X008 OT
24 W1022A 2 WASHER, LOCK ワッシャ スプリング 4M/M OT
25 AJ06913 1 BKT BKT OT
26 H5287A 2 BOLT, HEX SOCKET ボルト 六角穴 M04X008 OT
27 W1022A 2 WASHER, LOCK ワッシャ スプリング 4M/M OT
28 PB44410 1 COVER カバー FE
29 K5215A 6 SCREW, C/R TRUSS 小ネジ 十穴トラス M05X010 ユニクロメッキ OT
3. BASE / ベース 223 PTS-NXT-08JE

A
B
D
27
28
29
29
30
30
31
29
30
31
31
15
15
16
16
18
19
20
21
22
20
23
23
24
24
25
25
26
26
21
22
32
35
37
38
39
33
34
34.1
37
38
39
35
32
40
41
42
36
44
44
43
43
33
34
34.1
3. BASE / ベース 224 PTS-NXT-08JE

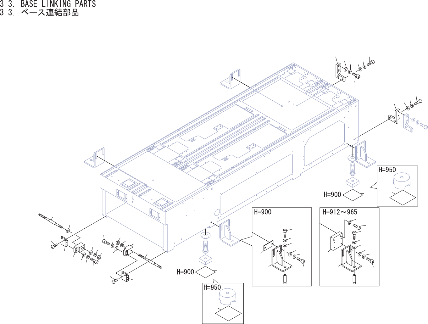
3.3. BASE LINKING PARTS
3.3. ベース連結部品
No. Drg.No. & Code No. QTY Description Rating
Materials
Remarks
番号 図番 & コード番号 個数 品名 規格 材質 備考
15 PM39012 - BKT BKT FE
16 K5262E - SCREW, HEX SOCKET BUTTON 小ネジ 六角穴ボタン M06X015 FE
18 PM39031 - BKT BKT FE
19 PM39021 - BKT BKT FE
20 H5344A - BOLT, HEX SOCKET ボルト 六角穴 M08X035 FE
21 W1025A - WASHER, LOCK ワッシャ スプリング 8M/M FE
22 W1046A - WASHER, FLAT ワッシャ 平 4W- 8 FE
23 PM39040 - BOLT ボルト FE
24 N1096A - NUT, HEX ナット 六角 M12 P=1.75 FE
25 W1027A - WASHER, LOCK ワッシャ スプリング 12M/M FE
26 W1048A - WASHER, FLAT ワッシャ 平 4W-12 FE
27 PM21390 - BKT BKT FE
28 PM21380 - BKT BKT FE
29 H5343A - BOLT, HEX SOCKET ボルト 六角穴 M08X030 FE
30 W1025A - WASHER, LOCK ワッシャ スプリング 8M/M FE
31 W1046A - WASHER, FLAT ワッシャ 平 4W- 8 FE
32 PB18723 - BKT BKT FE
33 H5360A - BOLT, HEX SOCKET ボルト 六角穴 M10X025 FE
34 W1026A - WASHER, LOCK ワッシャ スプリング 10M/M FE
34.1 W1047A - WASHER, FLAT ワッシャ 平 4W-10 FE
35 H5123B - BOLT, ANCHOR ボルト アンカー 9-6-5-M10(カットアンカー) FE
36 PB24701 - SPACER スペーサ FE
37 H5361A - BOLT, HEX SOCKET ボルト 六角穴 M10X030 FE
38 W1026A - WASHER, LOCK ワッシャ スプリング 10M/M FE
39 W1047A - WASHER, FLAT ワッシャ 平 4W-10 FE
40 PB21792 - SPACER スペーサ FE
41 H5361A - BOLT, HEX SOCKET ボルト 六角穴 M10X030 FE
42 W1015A - WASHER, CONICAL ワッシャ 皿 M-10-H FE
43 PG01890 - PAD, ANTI-VIBRATION パット 防振 OT H=900
44 PG0190
0
- PAD, ANTI-VIBRATIO
N
パット 防振 OT H=950
3. BASE / ベース 225 PTS-NXT-08JE