PTS-NXT-08JE - 第391页
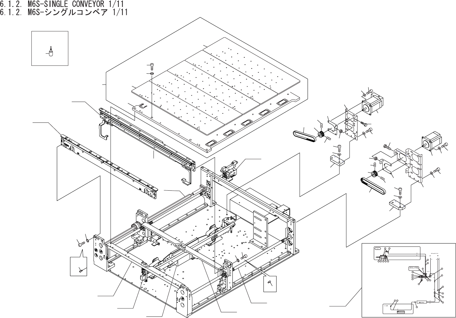
6.1.2. M6S-SINGLE CONVEYOR 1/11 6.1.2. M6S-シングルコンベア 1/11 UQ01544 No. Drg.No. & Code No. QTY Description Rating Materials Remarks 番号 図番 & コード番号 個数 品名 規格 材質 備考 1 H5298A 8 BOLT, HEX SOCKET ボルト 六角穴 M05X010 FE 2 W101…

Vacuum system
From module head
NEGATIVE PRESSURE
POSITIVE PRESSURE
For the Front
B ( )
A
( )
A:Clamp (lifter UP)
B:Unclamp (lifter DOWN)
8
6
6
B
A
Vacuum back-up pins
Reference from Front
Front
6
6
6
B
A
8
8
6
6
14
12
11
16
17
28 2710
9
4
4
515
32
25
26
1
3
6
15
8
7
14
13
2
18
4/
3/
10/
5/
6/
2/
8/
7/
9/
11/
A
A
AA
BACK-UP PIN
2
1
2
1
10
12
17
16
11
13
17
15
14
21
20
19
27
29
28
26
25
21
20
19
17
16
17
30
3
3
7
8
9
18
22
23
24
31
32
33
35
36
37
34
45
UQ01544
6. CONVEYOR / コンベア 54 PTS-NXT-08JE

6.1.2. M6S-SINGLE CONVEYOR 1/11
6.1.2. M6S-シングルコンベア 1/11
UQ01544
No. Drg.No. & Code No. QTY Description Rating
Materials
Remarks
番号 図番 & コード番号 個数 品名 規格 材質 備考
1 H5298A 8 BOLT, HEX SOCKET ボルト 六角穴 M05X010 FE
2 W1012A 8 WASHER, CONICAL ワッシャ 皿 M- 5-L FE
3 PM015W0 8 BOLT, HEX SOCKET ボルト 六角穴 FE Thin panel option
7 XM00231 1 MOTOR, STEPPING モータ ステッピング KH56QM2B048E-1 OT
8 H5289A 4 BOLT, HEX SOCKET ボルト 六角穴 M04X012 FE
9 W1022A 4 WASHER, LOCK ワッシャ スプリング 4M/M FE
10 PP01040 1 BKT, MOTOR BKT モータ FE
11 H5298A 3 BOLT, HEX SOCKET ボルト 六角穴 M05X010 FE
12 W1023A 3 WASHER, LOCK ワッシャ スプリング 5M/M FE
13 H5172T 1 BOLT, HEX ボルト 六角 M04X025 FE
14 N1080A 1 NUT, HEX ナット 六角 M 4 P=0.7 FE
15 PP00940 1 BKT, ADJUSTING BKT セリ FE
16 PZ05391 2 PULLEY プーリ OT
17 N4027A 4 SCREW, HEX SOCKET SET ネジ 六角穴止め M04X005 クボミサキ FE
18 H45747 1 BELT, TIMING ベルト タイミング 309-3GT-9 OT
19 PM31462 2 PLATE プレート FE
20 H5323A 4 BOLT, HEX SOCKET ボルト 六角穴 M06X018 FE
21 W1024A 4 WASHER, LOCK ワッシャ スプリング 6M/M FE
22 XM00241 1 MOTOR, STEPPING モータ ステッピング KH56QM2B050 OT
23 H5289A 4 BOLT, HEX SOCKET ボルト 六角穴 M04X012 FE
24 W1022A 4 WASHER, LOCK ワッシャ スプリング 4M/M FE
25 PP01031 1 BKT, MOTOR BKT モータ FE
26 H5298A 3 BOLT, HEX SOCKET ボルト 六角穴 M05X010 FE
27 W1023A 3 WASHER, LOCK ワッシャ スプリング 5M/M FE
28 H5172T 1 BOLT, HEX ボルト 六角 M04X025 FE
29 N1080A 1 NUT, HEX ナット 六角 M 4 P=0.7 FE
30 PP00950 1 BKT, ADJUSTING BKT セリ FE
31 H4520F 1 BELT, TIMING ベルト タイミング 342-3GT-9 OT
32 AA24W04 1 PLATE, BACKUP プレート バックアップ OT
33 H5299B 2 BOLT, HEX SOCKET ボルト 六角穴 M05X012 ユニクロメッキシロ FE
34 W1012A 2 WASHER, CONICAL ワッシャ 皿 M- 5-L FE
35 AA23W07 1 PLATE, BACKUP プレート バックアップ OT
36 PM66165 4 PLATE, BACKUP プレート バックアップ FE
37 PM66175 1 PLATE, BACKUP プレート バックアップ FE
45 AA52L01 8 PIN, BACKU
P
ピ
ン バックアッ
プ
OT
6. CONVEYOR / コンベア 55 PTS-NXT-08JE

A
63
23
19,
19.1
33
64
18
17
16
6
4
8
2
3
7
58
61
40
59
60
52
51
50
39
38
26
37
59
34
58
61
48
60
62
35
32
29.1
29
47
49
25
24
66
45
12,
12.1
9
11
13
10
14
45
49
47
48
46
13
14
1,
1.1
67
72
73
71
69
70
70
74.1
74.3
74.2
74.4
74.5
29.2
29.3
26.1
26.2
26.3
63.1
51.1
58.1
58.2
15
15
20
21
22,
22.1
43,
43.1
42
44
43,
43.1
42
55
54
57
57
56
55
54
57
57
56
74
75
76
78
79
UQ01544
6. CONVEYOR / コンベア 56 PTS-NXT-08JE