PTS-NXT-08JE - 第393页
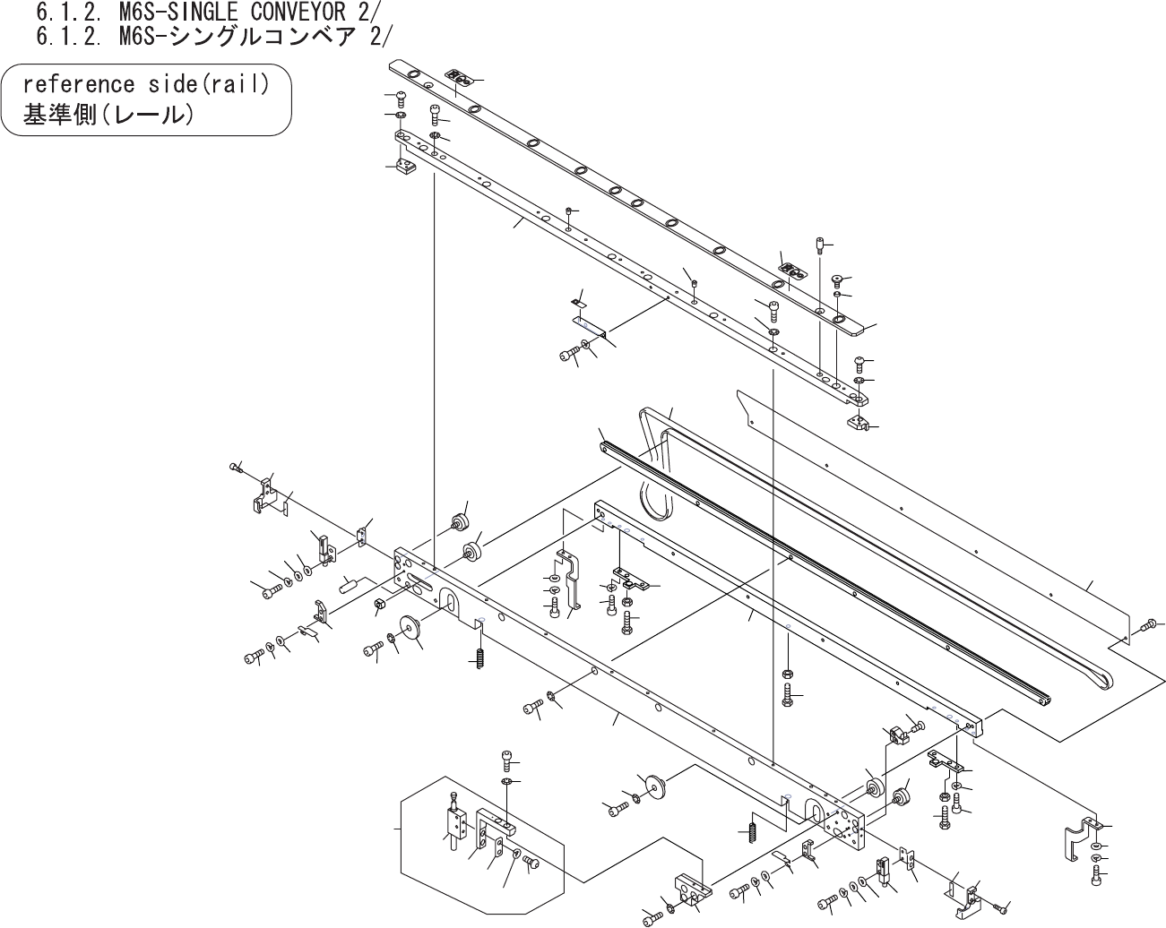
6.1.2. M6S-SINGLE CONVEYOR 2/ 6.1.2. M6S-シングルコンベア 2/ UQ01544 No. Drg.No. & Code No. QTY Description Rating Materials Remarks 番号 図番 & コード番号 個数 品名 規格 材質 備考 1 PM83111 1 PLATE, RETAINING プレート 押え FE 1.1 PM03AZ0 1 PLA…

A
63
23
19,
19.1
33
64
18
17
16
6
4
8
2
3
7
58
61
40
59
60
52
51
50
39
38
26
37
59
34
58
61
48
60
62
35
32
29.1
29
47
49
25
24
66
45
12,
12.1
9
11
13
10
14
45
49
47
48
46
13
14
1,
1.1
67
72
73
71
69
70
70
74.1
74.3
74.2
74.4
74.5
29.2
29.3
26.1
26.2
26.3
63.1
51.1
58.1
58.2
15
15
20
21
22,
22.1
43,
43.1
42
44
43,
43.1
42
55
54
57
57
56
55
54
57
57
56
74
75
76
78
79
UQ01544
6. CONVEYOR / コンベア 56 PTS-NXT-08JE

6.1.2. M6S-SINGLE CONVEYOR 2/
6.1.2. M6S-シングルコンベア 2/
UQ01544
No. Drg.No. & Code No. QTY Description Rating
Materials
Remarks
番号 図番 & コード番号 個数 品名 規格 材質 備考
1 PM83111 1 PLATE, RETAINING プレート 押え FE
1.1 PM03AZ0 1 PLATE, RETAINING プレート 押え FE Thin panel option
2 PM01723 10 BOLT ボルト FE
3 PM03470 10 COLLAR カラー FE
4 PM23703 2 PIN, REFERENCE ピン 基準 FE
6 PT01210 1 GUIDE ガイド FE
7 K5255T 2 SCREW, HEX SOCKET BUTTON 小ネジ 六角穴ボタン M03X006 FE
8 W1010A 2 WASHER, CONICAL ワッシャ 皿 M- 3-L FE
9 PT01220 1 GUIDE ガイド FE
10 K5255T 2 SCREW, HEX SOCKET BUTTON 小ネジ 六角穴ボタン M03X006 FE
11 W1010A 2 WASHER, CONICAL ワッシャ 皿 M- 3-L FE
12 PM11176 1 RAIL レール FE
12.1 PM41892 1 RAIL レール FE Thin panel option
13 H5288A 8 BOLT, HEX SOCKET ボルト 六角穴 M04X010 FE
14 W1011A 8 WASHER, CONICAL ワッシャ 皿 M- 4-L FE
15 H3170B 4 PLUNGER, BALL プランジャ ボール SBP-4 OT
16 PB11920 1 BKT BKT FE
17 H5274A 2 BOLT, HEX SOCKET ボルト 六角穴 M03X006 FE
18 W1021A 2 WASHER, LOCK ワッシャ スプリング 3M/M FE
19 PX03050 1 SEAL, BAR CODE シール バーコード PL
19.1 PX04000 1 SEAL シール PL Thin panel option
20 PM01604 1 PLATE, CLAMPING プレート クランプ FE
21 K5255A 6 SCREW, HEX SOCKET BUTTON 小ネジ 六角穴ボタン M03X004 FE
22 XB01111 1 CONVEYOR, BELT コンベア ベルト OT L=1510mm
22.1 XB02750 1 CONVEYOR, BELT コンベア ベルト OT Thin panel option
23 PM11191 1 GUIDE, BELT ガイド ベルト AL
24 H5287A 6 BOLT, HEX SOCKET ボルト 六角穴 M04X008 FE
25 W1011A 6 WASHER, CONICAL ワッシャ 皿 M- 4-L FE
26 PB18160 1 HOOK フック FE
26.1 H5275A 2 BOLT, HEX SOCKET ボルト 六角穴 M03X008 FE
26.2 W1021A 2 WASHER, LOCK ワッシャ スプリング 3M/M FE
26.3 W1040A 2 WASHER, FLAT ワッシャ 平 3M/MX0.5X7 FE
29 PB18150 1 HOOK フック FE
29.1 H5275A 2 BOLT, HEX SOCKET ボルト 六角穴 M03X008 FE
29.2 W1021A 2 WASHER, LOCK ワッシャ スプリング 3M/M FE
29.3 W1040A 2 WASHER, FLAT ワッシャ 平 3M/MX0.5X7 FE
32 PM12151 1 PLATE プレート FE
33 H5275A 2 BOLT, HEX SOCKET ボルト 六角穴 M03X008 FE
6. CONVEYOR / コンベア 57 PTS-NXT-08JE

6.1.2. M6S-SINGLE CONVEYOR 2/
6.1.2. M6S-シングルコンベア 2/
UQ01544
No. Drg.No. & Code No. QTY Description Rating
Materials
Remarks
番号 図番 & コード番号 個数 品名 規格 材質 備考
34 W1021A 2 WASHER, LOCK ワッシャ スプリング 3M/M FE
35 H55035 1 BOLT ボルト PUST4-15 OT
37 PM12141 1 PLATE プレート FE
38 H5275A 2 BOLT, HEX SOCKET ボルト 六角穴 M03X008 FE
39 W1021A 2 WASHER, LOCK ワッシャ スプリング 3M/M FE
40 H55035 1 BOLT ボルト PUST4-15 OT
42 ADBPP8011 2 PULLEY プーリ OT
43 AA45L01 2 PULLEY プーリ OT
43.1 AA0BY01 2 PULLEY プーリ OT Thin panel option
44 N1122A 1 NUT, SQUARE ナット 四角 M4 P=0.7 FE
45 PZ14450 2 SPRING スプリング FE
46 PM12167 1 PLATE, GUIDE プレート ガイド FE
47 PM01751 2 GUIDE ガイド FE
48 H5276A 2 BOLT, HEX SOCKET ボルト 六角穴 M03X010 FE
49 W1010A 2 WASHER, CONICAL ワッシャ 皿 M- 3-L FE
50 PM92391 1 BKT, SENSOR BKT センサ FE
51 PT01151 1 GUIDE ガイド FE
51.1 PS02472 1 SHEET シート OT
52 H5429N 2 BOLT, HEX SOCKET ボルト 六角穴 CBS3-8 FE
54 XS01453 1 SENSOR, FIBER センサ ファイバ HPF-S333-D OT
55 H5274A 4 BOLT, HEX SOCKET ボルト 六角穴 M03X006 FE
56 W1021A 4 WASHER, LOCK ワッシャ スプリング 3M/M FE
57 W1041F 8 WASHER, FLAT ワッシャ 平 ゚3X6コガタヒラザガネ FE
58 PM97050 2 BLOCK, LOCATING ブロック 位置決め FE
58.1 PB84700 1 BKT BKT FE
58.2 PB84690 1 BKT BKT FE
59 H5275A 4 BOLT, HEX SOCKET ボルト 六角穴 M03X008 FE
60 W1021A 4 WASHER, LOCK ワッシャ スプリング 3M/M FE
61 W1041F 4 WASHER, FLAT ワッシャ 平 ゚3X6コガタヒラザガネ FE
62 PM92401 1 BKT, SENSOR BKT センサ FE
63 PT01161 1 GUIDE ガイド FE
63.1 PS02472 1 SHEET シート OT
64 H5429N 2 BOLT, HEX SOCKET ボルト 六角穴 CBS3-8 FE
66 PM92331 1 PLATE プレート FE
67 H55035 1 BOLT ボルト PUST4-15 OT
69 H2014R 1 PIN ピン MSIP6-10 OT
70 PZ14130 2 SEAL シール PL
71 PM18275 1 BKT BKT FE
6. CONVEYOR / コンベア 58 PTS-NXT-08JE