PTS-NXT-08JE - 第397页
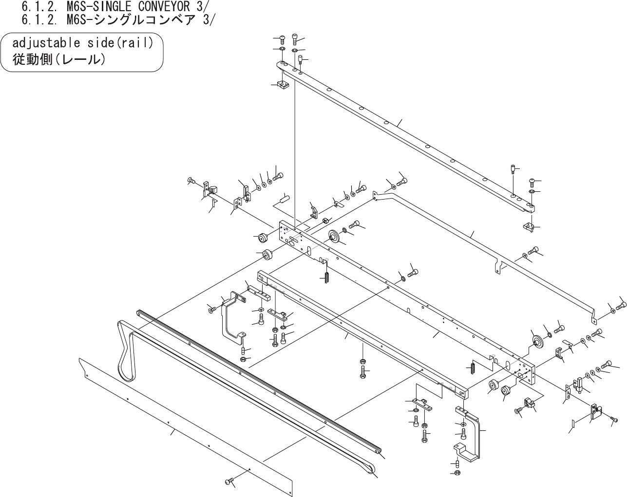
6.1.2. M6S-SINGLE CONVEYOR 3/ 6.1.2. M6S-シングルコンベア 3/ UQ01544 No. Drg.No. & Code No. QTY Description Rating Materials Remarks 番号 図番 & コード番号 個数 品名 規格 材質 備考 1 PT01210 1 GUIDE ガイド FE 2 K5255T 2 SCREW, HEX SOCKET BUT…

A
47
46
41
40
45
48
42
2
3
1
4,
4.1
31
6
7
29
5
11
8
12
25
13
26
10
73
72
71
74
65
66
70
24
67
68
46
30
34
33
48
31
32
44
45
47
29
75
53
57
54
56
60
55
58
63
62
59
61
44
28
30
76
78
14
16
15
15
13.1
13.2
41.1
33.1
45.2
45.1
22
23
27, 27.1
36
38
37
39
39
37
36
38
39
39
49
50,
50.1
49
50, 50.1
51
79
80
UQ01544
6. CONVEYOR / コンベア 60 PTS-NXT-08JE

6.1.2. M6S-SINGLE CONVEYOR 3/
6.1.2. M6S-シングルコンベア 3/
UQ01544
No. Drg.No. & Code No. QTY Description Rating
Materials
Remarks
番号 図番 & コード番号 個数 品名 規格 材質 備考
1 PT01210 1 GUIDE ガイド FE
2 K5255T 2 SCREW, HEX SOCKET BUTTON 小ネジ 六角穴ボタン M03X006 FE
3 W1010A 2 WASHER, CONICAL ワッシャ 皿 M- 3-L FE
4 PM32062 1 RAIL レール FE
4.1 PM41902 1 RAIL レール FE Thin panel option
5 H5288A 8 BOLT, HEX SOCKET ボルト 六角穴 M04X010 FE
6 W1011A 8 WASHER, CONICAL ワッシャ 皿 M- 4-L FE
7 PM23712 1 PIN, REFERENCE ピン 基準 FE
8 PM23703 1 PIN, REFERENCE ピン 基準 FE
10 PT01220 1 GUIDE ガイド FE
11 K5255T 2 SCREW, HEX SOCKET BUTTON 小ネジ 六角穴ボタン M03X006 FE
12 W1010A 2 WASHER, CONICAL ワッシャ 皿 M- 3-L FE
13 PB47660 1 RETAINER, WIRING 押え 配線 FE
13.1 H5274A 1 BOLT, HEX SOCKET ボルト 六角穴 M03X006 FE OPTION
13.2 W1021A 1 WASHER, LOCK ワッシャ スプリング 3M/M FE OPTION
14 H5274A 1 BOLT, HEX SOCKET ボルト 六角穴 M03X006 FE
15 W1021A 2 WASHER, LOCK ワッシャ スプリング 3M/M FE
16 H5275A 1 BOLT, HEX SOCKET ボルト 六角穴 M03X008 FE
22 PM01604 1 PLATE, CLAMPING プレート クランプ FE
23 K5255A 6 SCREW, HEX SOCKET BUTTON 小ネジ 六角穴ボタン M03X004 FE
24 PM11191 1 GUIDE, BELT ガイド ベルト AL
25 H5287A 6 BOLT, HEX SOCKET ボルト 六角穴 M04X008 FE
26 W1011A 6 WASHER, CONICAL ワッシャ 皿 M- 4-L FE
27 XB01111 1 CONVEYOR, BELT コンベア ベルト OT L=1510mm
27.1 XB02750 1 CONVEYOR, BELT コンベア ベルト OT Thin panel option
28 PM12167 1 PLATE, GUIDE プレート ガイド FE
29 PM01751 2 GUIDE ガイド FE
30 H5276A 2 BOLT, HEX SOCKET ボルト 六角穴 M03X010 FE
31 W1010A 2 WASHER, CONICAL ワッシャ 皿 M- 3-L FE
32 PM92401 1 BKT, SENSOR BKT センサ FE
33 PT01191 1 GUIDE ガイド FE
33.1 PS02472 1 SHEET シート OT
34 H5429N 2 BOLT, HEX SOCKET ボルト 六角穴 CBS3-8 FE
36 XS01453 1 SENSOR, FIBER センサ ファイバ HPF-S333-D OT
37 H5274A 4 BOLT, HEX SOCKET ボルト 六角穴 M03X006 FE
38 W1021A 4 WASHER, LOCK ワッシャ スプリング 3M/M FE
39 W1041F 8 WASHER, FLAT ワッシャ 平 ゚3X6コガタヒラザガネ FE
40 PM92391 1 BKT, SENSOR BKT センサ FE
6. CONVEYOR / コンベア 61 PTS-NXT-08JE

6.1.2. M6S-SINGLE CONVEYOR 3/
6.1.2. M6S-シングルコンベア 3/
UQ01544
No. Drg.No. & Code No. QTY Description Rating
Materials
Remarks
番号 図番 & コード番号 個数 品名 規格 材質 備考
41 PT01202 1 GUIDE ガイド FE
41.1 PS02472 1 SHEET シート OT
42 H5429N 2 BOLT, HEX SOCKET ボルト 六角穴 CBS3-8 FE
44 PZ14450 2 SPRING スプリング FE
45 PM97050 2 BLOCK, LOCATING ブロック 位置決め FE
45.1 PB84700 1 BKT BKT FE
45.2 PB84690 1 BKT BKT FE
46 H5275A 4 BOLT, HEX SOCKET ボルト 六角穴 M03X008 FE
47 W1021A 4 WASHER, LOCK ワッシャ スプリング 3M/M FE
48 W1041F 4 WASHER, FLAT ワッシャ 平 ゚3X6コガタヒラザガネ FE
49 ADBPP8011 2 PULLEY プーリ OT
50 AA45L01 2 PULLEY プーリ OT
50.1 AA0BY01 2 PULLEY プーリ OT Thin panel option
51 N1122A 1 NUT, SQUARE ナット 四角 M4 P=0.7 FE
53 PM31830 1 BLOCK ブロック FE
54 H5277A 2 BOLT, HEX SOCKET ボルト 六角穴 M03X012 FE
55 W1021A 2 WASHER, LOCK ワッシャ スプリング 3M/M FE
56 PB18400 1 HOOK フック FE
57 K5357M 2 SCREW, HEX SOCKET COUNTERSUNK 小ネジ 六角穴皿 M03X006 FE
58 N4023B 1 SCREW, HEX SOCKET SET ネジ 六角穴止め M03X010 マルサキ FE
59 N1077H 1 NUT, HEX ナット 六角 M 3 P=0.5 3シュ FE
60 PM12141 1 PLATE プレート FE
61 H5275A 2 BOLT, HEX SOCKET ボルト 六角穴 M03X008 FE
62 W1021A 2 WASHER, LOCK ワッシャ スプリング 3M/M FE
63 H55035 1 BOLT ボルト PUST4-15 FE
65 PM12151 1 PLATE プレート FE
66 H5275A 2 BOLT, HEX SOCKET ボルト 六角穴 M03X008 FE
67 W1021A 2 WASHER, LOCK ワッシャ スプリング 3M/M FE
68 H55035 1 BOLT ボルト PUST4-15 FE
70 PM32133 1 HOOK フック FE
71 H5277A 2 BOLT, HEX SOCKET ボルト 六角穴 M03X012 FE
72 W1021A 2 WASHER, LOCK ワッシャ スプリング 3M/M FE
73 N4023B 1 SCREW, HEX SOCKET SET ネジ 六角穴止め M03X010 マルサキ FE
74 N1077H 1 NUT, HEX ナット 六角 M 3 P=0.5 3シュ FE
75 PM92341 1 PLATE プレート FE
76 H55035 1 BOLT ボルト PUST4-15 FE
78 H2014R 1 PIN ピン MSIP6-10 OT
79 PH00790 1 BRUSH ブラシ OT
6. CONVEYOR / コンベア 62 PTS-NXT-08JE