PTS-NXT-08JE - 第415页
This page intentionally blank. 6. CONVEYOR / コンベア 79 PTS-NXT-08JE

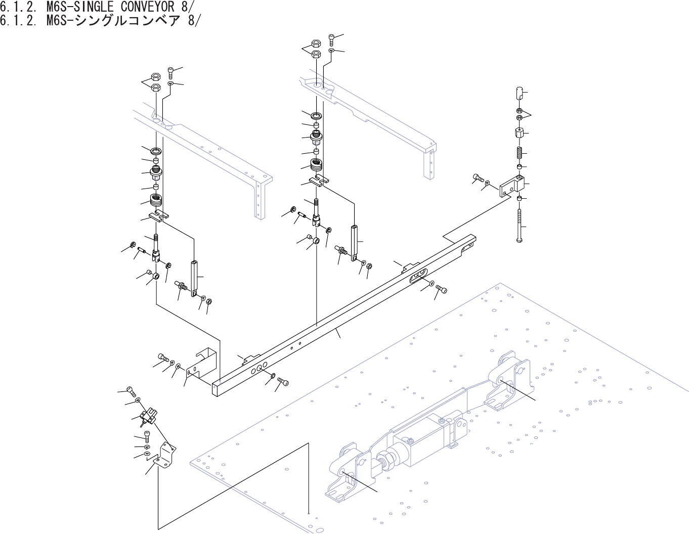
6.1.2. M6S-SINGLE CONVEYOR 7/
6.1.2. M6S-シングルコンベア 7/
UQ01544
No. Drg.No. & Code No. QTY Description Rating
Materials
Remarks
番号 図番 & コード番号 個数 品名 規格 材質 備考
36 H4175A 1 BEARING ベアリング 6000ZZ OT
37 PM36932 1 COLLAR カラー FE
38 H5300A 1 BOLT, HEX SOCKET ボルト 六角穴 M05X015 FE
39 W1023A 1 WASHER, LOCK ワッシャ スプリング 5M/M FE
40 W10872 1 WASHER ワッシャ WSSB12-5-2 FE
41 PM29113 1 BKT BKT FE
42 H5322A 2 BOLT, HEX SOCKET ボルト 六角穴 M06X015 FE
43 W1024A 2 WASHER, LOCK ワッシャ スプリング 6M/M FE
44 AA46G04 1 PULLEY プーリ OT
44.1 PM63090 1 HOLDER ホルダ FE
45 H5288A 4 BOLT, HEX SOCKET ボルト 六角穴 M04X010 FE
46 W1011A 4 WASHER, CONICAL ワッシャ 皿 M- 4-L FE
47 S1046A 1 CIR-CLIP サークリップ WR19 FE
47.1 PM61362 1 FLANGE フランジ FE
48 H4104A 2 BEARING ベアリング DDA-2520 OT
48.1 PM61352 1 FLANGE フランジ FE
48.2 PZ31880 3 SCREW, COUNTERSUNK 小ネジ 皿 OT
49 PM10312 1 COLLAR カラー FE
50 PZ16792 1 PULLEY プーリ OT
51 PM61334 1 PULLEY プーリ OT
52 PZ31890 4 SCREW, C/R TRUSS 小ネジ 十穴トラス OT
53 PZ14360 4 SPRING スプリング WM3-10 FE
55 PJ12122 1 PULLEY プーリ OT
57 PM02050 4 COLLAR カラー FE
58 PZ31900 4 SCREW, HEX SOCKET COUNTERSUNK 小ネジ 六角穴皿 OT
59 XG00350 1 GUIDE RAIL ガイド レール SSR15XW1UUC1S+684LY-Ⅱ OT
60 H5291B 3 BOLT, HEX SOCKET ボルト 六角穴 M04X018 ユニクロメッキ(シロ) FE
61 K20089 12 CAP キャップ C04 OT
62 PZ09960 9 BOLT, HEX SOCKET ボルト 六角穴 M04X012 FE
63 H2092T 5 PIN, PARALLE
L
ピ
ン 平行 3゚X6 Bシュ FE
6. CONVEYOR / コンベア 78 PTS-NXT-08JE

This page intentionally blank.
6. CONVEYOR / コンベア 79 PTS-NXT-08JE

A
UU
TT
UU
TT
22
24
21
32
25
33
9
11
10
28
30
29
19
57
20
26
18
35
34
58
30
31
8
58
59
23
33
19
20
26
22
24
21
32
25
33
28
30
29
18
35
34
30
31
23
33
60
55
54
49
55
50
51
52
56
53
48
1
2
3
5
7
4
6
UQ01544
6. CONVEYOR / コンベア 80 PTS-NXT-08JE