PTS-NXT-08JE - 第431页
6.2.1. M3S-DOUBLE CONVEYOR 1/19 6.2.1. M3S-ダブルコンベア 1/19 UQ01248 No. Drg.No. & Code No. QTY Description Rating Materials Remarks 番号 図番 & コード番号 個数 品名 規格 材質 備考 1 AA24H06 1 PLATE, BACKUP プレート バックアップ OT 2 AA23H07 1 F…

28 2710
9
8
719
28 2720
9
8
719
26
25
For the FRONT
For the REAR
OUT SIDE
IN SIDE
OUT SIDE
IN SIDE
A
B
B
A
Vacuum back-up pins
Reference from
FRONT
Reference from
REAR
4
4
514
( )
32 33
25
26
1
3
6
14
1112
2
6
6
6
8
6
6
B ( )
A
( )
8
8
6
6
6
FOR THE REAR SIDE CLAMPING
A:Clamp (lifter UP)
B:Unclamp (lifter DOWN)
FOR THE FRONT SIDE CLAMPING
From module head
NEGATIVE PRESSURE
POSITIVE PRESSURE
Vacuum system
13
A
2/
8/
6/
4/
19/
18/
17/
5/
3/
10/
14/
16/
15/
9/
11/
13/
7/
12/
BACK-UP PIN
AA
AA
BB
BB
C
D
D
1
2
3
3
4
45
UQ01248
6. CONVEYOR / コンベア 94 PTS-NXT-08JE

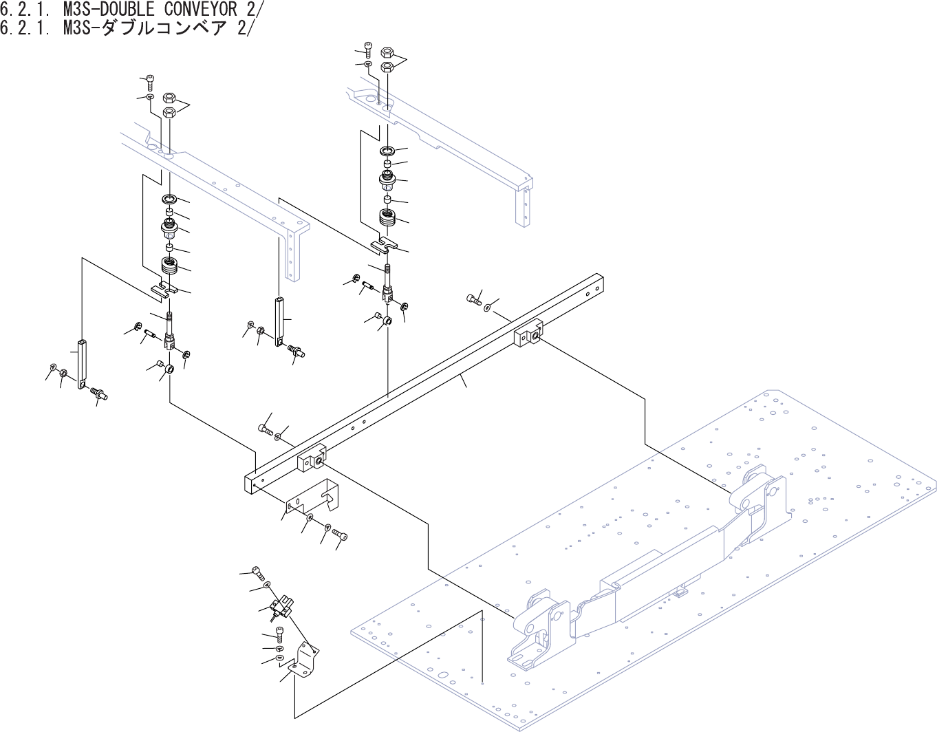
6.2.1. M3S-DOUBLE CONVEYOR 1/19
6.2.1. M3S-ダブルコンベア 1/19
UQ01248
No. Drg.No. & Code No. QTY Description Rating
Materials
Remarks
番号 図番 & コード番号 個数 品名 規格 材質 備考
1 AA24H06 1 PLATE, BACKUP プレート バックアップ OT
2 AA23H07 1 FRAME フレーム OT
3 AA35A02 2 SCREW ネジ OT
4 PM66084 1 PLATE, BACKUP プレート バックアップ FE
45 AA52L01 8 PIN, BACKU
P
ピ
ン バックアッ
プ
OT
6. CONVEYOR / コンベア 95 PTS-NXT-08JE

A
22
24
21
32
25
33
9
11
10
28
30
29
19
56
20
26
18
18
35
34
57
30
31
8
57
58
23
22
24
19
20
23
33
26
21
32
25
33
28
30
29
35
34
30
31
33
59
1
2
3
5
7
4
6
UQ01248
6. CONVEYOR / コンベア 96 PTS-NXT-08JE