PTS-NXT-08JE - 第463页
This page intentionally blank. 6. CONVEYOR / コンベア 127 PTS-NXT-08JE

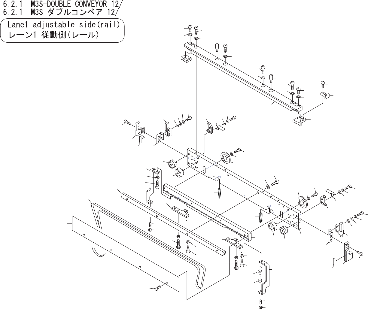
6.2.1. M3S-DOUBLE CONVEYOR 11/
6.2.1. M3S-ダブルコンベア 11/
UQ01248
No. Drg.No. & Code No. QTY Description Rating
Materials
Remarks
番号 図番 & コード番号 個数 品名 規格 材質 備考
33.1 PM015W0 2 BOLT, HEX SOCKET ボルト 六角穴 FE Thin panel option
34 H5274A 4 BOLT, HEX SOCKET ボルト 六角穴 M03X006 FE
35 W1010A 4 WASHER, CONICAL ワッシャ 皿 M- 3-L FE
37 PP00680 1 RETAINER, WIRING 押え 配線 FE
38 K5255A 2 SCREW, HEX SOCKET BUTTON 小ネジ 六角穴ボタン M03X004 FE
39 W1021A 2 WASHER, LOCK ワッシャ スプリング 3M/M FE
40 PP00530 1 BKT, SENSOR BKT センサ FE
41 K5255T 2 SCREW, HEX SOCKET BUTTON 小ネジ 六角穴ボタン M03X006 FE
41.1 W1021A 2 WASHER, LOCK ワッシャ スプリング 3M/M FE
42 S40288 1 SENSOR センサ EX-19A-PN-R OT
43 K5175T 2 SCREW, C/R PAN 小ネジ 十穴鍋 M02X005(0バン1シュ)SUS FE
44 PP01670 1 COVER, WIRING カバー 配線 FE
45 K5255A 3 SCREW, HEX SOCKET BUTTON 小ネジ 六角穴ボタン M03X004 FE
46 W1021A 3 WASHER, LOCK ワッシャ スプリング 3M/M FE
50 PP00450 1 RETAINER, WIRING 押え 配線 FE
51 K5255A 1 SCREW, HEX SOCKET BUTTON 小ネジ 六角穴ボタン M03X004 FE
52 W1021A 1 WASHER, LOCK ワッシャ スプリング 3M/M FE
53 PB48630 1 BKT, WIRING BKT 配線 FE
54 H5274A 2 BOLT, HEX SOCKET ボルト 六角穴 M03X006 FE
55 W1021A 2 WASHER, LOCK ワッシャ スプリング 3M/M FE
56 PG03250 1 STOPPER ストッパ PL
57 PPT0460 1 COLLAR カラー FE
58 H5276A 1 BOLT, HEX SOCKET ボルト 六角穴 M03X010 FE
59 W1021A 1 WASHER, LOCK ワッシャ スプリング 3M/M FE
60 W1040A 1 WASHER, FLAT ワッシャ 平 3M/MX0.5X7 FE
61 ADBPP8011 1 PULLEY プーリ OT
62 N1122A 1 NUT, SQUARE ナット 四角 M4 P=0.7 FE
63 PP01950 1 PLATE, FIXED プレート 固定 FE
64 H5274A 2 BOLT, HEX SOCKET ボルト 六角穴 M03X006 FE
65 W1021A 2 WASHER, LOCK ワッシャ スプリング 3M/M FE
65.1 W1042A 2 WASHER, FLAT ワッシャ 平 4W- 3 FE
66 XG00141 2 GUIDE, RAIL ガイド レール OT
67 H5274A 8 BOLT, HEX SOCKET ボルト 六角穴 M03X006 FE
69 PM68483 1 BKT, SLIDE BKT スライド FE
79 H5288A 8 BOLT, HEX SOCKET ボルト 六角穴 M04X010 FE
80 W1011A 8 WASHER, CONICAL ワッシャ 皿 M- 4-L FE
81 PH00780 1 BRUSH ブラシ OT
82 K5358
C
2 SCREW, HEX SOCKET COUNTERSUN
K
小ネジ 六角穴皿 M03X012 FE
6. CONVEYOR / コンベア 126 PTS-NXT-08JE

This page intentionally blank.
6. CONVEYOR / コンベア 127 PTS-NXT-08JE

A
1
4
4
3
2
7
9
8
7
9
8
13
13
16
15
15
14
16
14
19
17
18
31
32
35
34
33
40
38
39
37
24
25
26
54
46,
46.1
56
55
77
76
48
48
48
47
48
47
47
47
49
69
52
53
51
42
71
70.1
70.2
72
70
73
75
74
73.1
73.2
18.1
25.1
13.1
13.2
5
6,
6.1
6,
6.1
5
20
21
22
23
23
27
30
30
29
28
43,
43.1
44
45
UQ01248
6. CONVEYOR / コンベア 128 PTS-NXT-08JE