PTS-NXT-08JE - 第599页
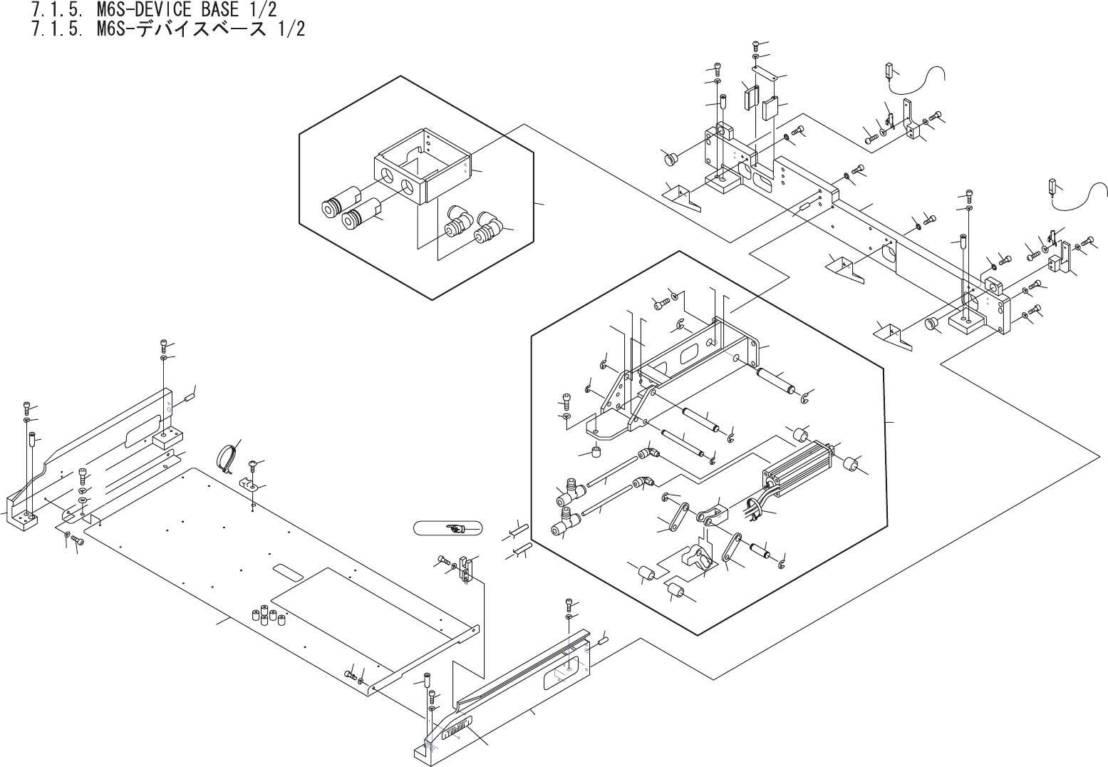
7.1.5. M6S-DEVICE BASE 1/2 7.1.5. M6S-デバイスベース 1/2 UD00826 No. Drg.No. & Code No. QTY Description Rating Materials Remarks 番号 図番 & コード番号 個数 品名 規格 材質 備考 1 PB33943 1 CATCH PAN 受け皿 FE 2 H5275A 2 BOLT, HEX SOCKET ボルト…

A
B
A
Ref.2/
A,BA,B
BB
AA
CC
DD
EE
EE
DD
CC
DD
CC
CC
EE
EE
DD
1
83
84
2
3
4
5
6
5
6
7
8
12
13
14
13
14
15
80
81
82
16
20
25
26
27
26
27
25
28
28
30
31
29
30
31
30
31
33
32
34
38
39
40
70
71
72
73
74
75
29
29
23
23
24
24
4.1
76
77
78
79
86
89
93
100
101
102
102
105
105
106
107
108
96
103
104
97
94.1
95
93
94
95
98
99
98
90
91
91
90
87
88
104
97
59
67
68
9
10
11
85
92
35
35.1
36
41
41.1
44
44
45
69
37
42
43
47
48
UD00826
7. PARTS SUPPLY / 部品供給 36 PTS-NXT-08JE

7.1.5. M6S-DEVICE BASE 1/2
7.1.5. M6S-デバイスベース 1/2
UD00826
No. Drg.No. & Code No. QTY Description Rating
Materials
Remarks
番号 図番 & コード番号 個数 品名 規格 材質 備考
1 PB33943 1 CATCH PAN 受け皿 FE
2 H5275A 2 BOLT, HEX SOCKET ボルト 六角穴 M03X008 FE
3 W1021A 2 WASHER, LOCK ワッシャ スプリング 3M/M FE
4 PM72838 1 BASE ベース FE
4.1 PX01610 1 SEAL, BAR CODE シール バーコード OT
5 H5301A 2 BOLT, HEX SOCKET ボルト 六角穴 M05X018 FE
6 W1023A 2 WASHER, LOCK ワッシャ スプリング 5M/M FE
7 PM02642 1 PIN ピン FE
8 H2095A 1 PIN, PARALLEL ピン 平行 ゚6X12Aシュ(M6) FE
9 S4077W 1 SENSOR, PHOTO センサ フォト PM-R44P OT
10 H5275A 2 BOLT, HEX SOCKET ボルト 六角穴 M03X008 FE
11 W1021A 2 WASHER, LOCK ワッシャ スプリング 3M/M FE
12 PM72848 1 BASE ベース FE
13 H5301A 2 BOLT, HEX SOCKET ボルト 六角穴 M05X018 FE
14 W1023A 2 WASHER, LOCK ワッシャ スプリング 5M/M FE
15 PM02642 1 PIN ピン FE
16 H2095A 1 PIN, PARALLEL ピン 平行 ゚6X12Aシュ(M6) FE
20 PM63286 1 BKT BKT FE
23 H5302A 4 BOLT, HEX SOCKET ボルト 六角穴 M05X020 FE
24 W1023A 4 WASHER, LOCK ワッシャ スプリング 5M/M FE
25 PM02642 2 PIN ピン FE
26 H5301A 2 BOLT, HEX SOCKET ボルト 六角穴 M05X018 FE
27 W1023A 2 WASHER, LOCK ワッシャ スプリング 5M/M FE
28 PM02594 2 BUSHING ブシュ FE
29 PB14511 3 CHUTE シュート FE
30 K5256G 6 SCREW, HEX SOCKET BUTTON 小ネジ 六角穴ボタン M03X012 FE
31 W1010A 6 WASHER, CONICAL ワッシャ 皿 M-3-L FE
32 PM87980 1 BKT, SENSOR BKT センサ FE
33 H5263A 2 BOLT, HEX SOCKET ボルト 六角穴 M03X018 FE
34 W1021A 2 WASHER, LOCK ワッシャ スプリング 3M/M FE
35 S40264 1 SENSOR センサ E2S-W25 OT
35.1 . 1 FIXTURE 金具 Y92E-C1R6 OT
36 K5173A 1 SCREW, C/R PAN 小ネジ 十穴鍋 M03X010(ステンレス) FE
37 W1021A 1 WASHER, LOCK ワッシャ スプリング 3M/M FE
38 PM87990 1 BKT, SENSOR BKT センサ FE
39 H5263A 2 BOLT, HEX SOCKET ボルト 六角穴 M03X018 FE
40 W1021A 2 WASHER, LOCK ワッシャ スプリング 3M/M FE
41 S40264 1 SENSOR センサ E2S-W25 OT
7. PARTS SUPPLY / 部品供給 37 PTS-NXT-08JE

7.1.5. M6S-DEVICE BASE 1/2
7.1.5. M6S-デバイスベース 1/2
UD00826
No. Drg.No. & Code No. QTY Description Rating
Materials
Remarks
番号 図番 & コード番号 個数 品名 規格 材質 備考
41.1 . 1 FIXTURE 金具 Y92E-C2R5 OT
42 K5173A 1 SCREW, C/R PAN 小ネジ 十穴鍋 M03X010(ステンレス) FE
43 W1021A 1 WASHER, LOCK ワッシャ スプリング 3M/M FE
44 PJ02931 2 HOLDER, CONNECTOR ホルダ コネクタ PL
45 PM02613 1 PLATE プレート FE
47 K5232A 2 SCREW, C/R PAN 小ネジ 十穴鍋 M03X035 ニッケルメッキ FE
48 W1021A 2 WASHER, LOCK ワッシャ スプリング 3M/M FE
59 H1140A 1 BAND, TIE バンド 結束 T18R OT
67 PZ13980 1 TUBE チューブ OT
68 PZ13990 1 TUBE チューブ OT
69 AA54603 1 SOCKET, COUPLER ソケット カプラ OT
70 PM14074 1 BKT BKT FE
71 XS01130 2 SOCKET, COUPLER ソケット カプラ MAS-2S CS29103-1 OT
72 Y3080A 2 UNION, ELBOW ユニオン エルボ KQ2L10-02S OT
73 H5289A 4 BOLT, HEX SOCKET ボルト 六角穴 M04X012 FE
74 W1022A 4 WASHER, LOCK ワッシャ スプリング 4M/M FE
75 H2093B 2 PIN, PARALLEL ピン 平行 ゚4X8 Aシュ (M6) OT
76 S2025A 4 SHEET シート CTAM1 PL
77 K5170T 4 SCREW, C/R TRUSS 小ネジ 十穴トラス M03X006 ユニクロメッキ(シロ) FE
78 H1140A 5 BAND, TIE バンド 結束 T18R PL
79 PB33951 1 BKT, ADJUSTING BKT 調整 FE
80 H5273A 2 BOLT, HEX SOCKET ボルト 六角穴 M03X005 FE
81 W1021A 2 WASHER, LOCK ワッシャ スプリング 3M/M FE
82 W1040A 2 WASHER, FLAT ワッシャ 平 3M/MX0.5X7 FE
83 H5274A 2 BOLT, HEX SOCKET ボルト 六角穴 M03X006 FE
84 W1021A 2 WASHER, LOCK ワッシャ スプリング 3M/M FE
85 AA34G09 1 CYLINDER, AIR シリンダ エアー OT
86 PM87858 1 FRAME フレーム FE
87 H5300A 4 BOLT, HEX SOCKET ボルト 六角穴 M05X015 FE
88 W1023A 4 WASHER, LOCK ワッシャ スプリング 5M/M FE
89 PM87902 1 PIN, PIVOT ピン 支点 FE
90 S1026A 2 CIR-CLIP サークリップ ST-EW- 8 FE
91 PM87931 2 COLLAR カラー FE
92 S2101G 1 CYLINDER, AIR シリンダ エアー CDQSD25-40DCM-M9BL OT
93 Y3049G 2 UNION, ELBOW ユニオン エルボ KJL04-M5(シロ) OT
94 PZ09200 1 TUBE チューブ OT
94.1 PZ07770 1 TUBE チューブ OT
95 K5340R 2 CONTROLLER, SPEED コントローラ スピード AS2001F-04(シロ) OT
7. PARTS SUPPLY / 部品供給 38 PTS-NXT-08JE