PTS-NXT-08JE - 第783页
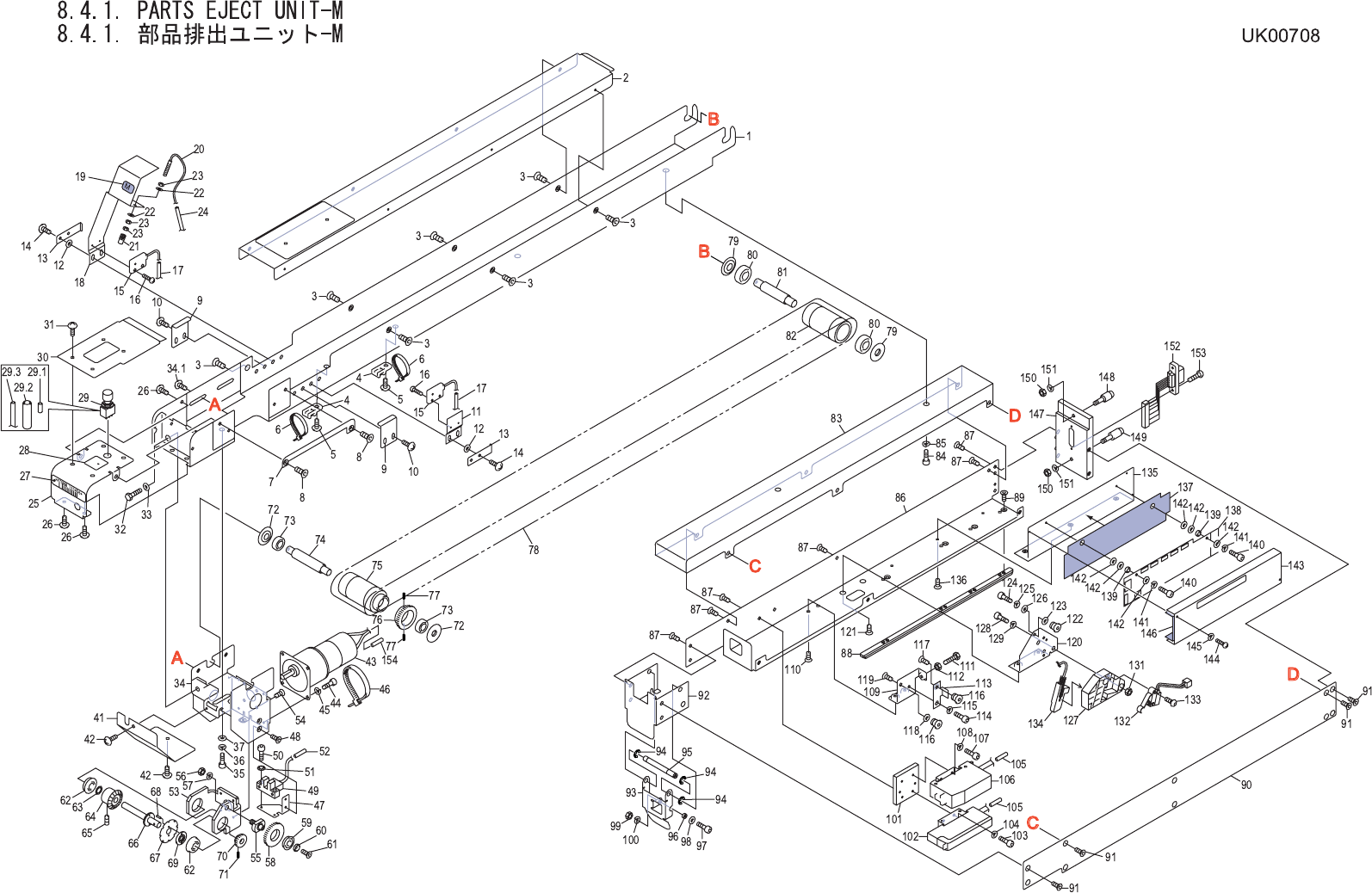
8.4.1. PARTS EJECT UNIT-M 8.4.1. 部品排出ユニット-M UK00708 No. Drg.No. & Code No. QTY Description Rating Materials Remarks 番号 図番 & コード番号 個数 品名 規格 材質 備考 1 PB20196 1 FRAME フレーム AL 2 PB21255 1 GUIDE, BELT ガイド ベルト AL 3 K53…

8. ACCESSORIES / アクセサリ 220 PTS-NXT-08JE

8.4.1. PARTS EJECT UNIT-M
8.4.1. 部品排出ユニット-M
UK00708
No. Drg.No. & Code No. QTY Description Rating
Materials
Remarks
番号 図番 & コード番号 個数 品名 規格 材質 備考
1 PB20196 1 FRAME フレーム AL
2 PB21255 1 GUIDE, BELT ガイド ベルト AL
3 K5357M 7 SCREW, HEX SOCKET COUNTERSUNK 小ネジ 六角穴皿 M03X006 FE
4 S2025A 2 SHEET シート CTAM1 (100コ/フクロ) OT
5 K5208A 2 SCREW, C/R TRUSS 小ネジ 十穴トラス M04X006 ユニクロメッキ FE
6 H1140A 2 BAND, TIE バンド 結束 T18R OT
7 PB24682 1 BKT BKT FE
8 K5358A 2 SCREW, HEX SOCKET COUNTERSUNK 小ネジ 六角穴皿 M03X010 FE
9 PB21271 2 BKT BKT FE
10 K5170T 4 SCREW, C/R TRUSS 小ネジ 十穴トラス M03X006 ユニクロメッキ(シロ) FE
11 PB03481 1 BKT, SENSOR BKT センサ FE
12 W1040A 4 WASHER, FLAT ワッシャ 平 3M/MX0.5X7 FE
13 PB25920 2 BKT BKT FE
14 K5204A 4 SCREW, C/R TRUSS 小ネジ 十穴トラス M03X008 ユニクロメッキ FE
15 S3132A 1 SW, PHOTOELECTRIC SW 光電 PS-56 OT SET
16 K5175N 4 SCREW, C/R PAN 小ネジ 十穴鍋 M02X003 ステンレス FE
17 PZ13770 2 TUBE チューブ PL
18 PB21290 1 BKT, SENSOR BKT センサ FE
19 PX02810 1 SEAL シール OT
20 H3005W 1 FIBER UNIT ファイバユニット FU-35FA OT
21 R4023K 1 LENS UNIT レンズユニット F3HA OT
22 W1040A 2 WASHER, FLAT ワッシャ 平 3M/MX0.5X7 FE
23 N1076A 3 NUT, HEX ナット 六角 M 3 P=0.5 FE
24 PZ29180 1 TUBE チューブ PL
25 PB20491 1 COVER カバー AL
26 K5170T 3 SCREW, C/R TRUSS 小ネジ 十穴トラス M03X006 ユニクロメッキ(シロ) FE
27 PX02461 1 SEAL, BAR CODE シール バーコード OT
28 PX00220 1 SEAL シール PL
29 RH04773 1 HARNESS ハーネス OT
29.1 PZ13930 4 TUBE チューブ スミチューブF ゚1.5X0.2 クロ PL L=10
29.2 PZ13950 1 TUBE チューブ スミチューブF ゚8X0.25 クロ PL L=30
29.3 PZ13790 1 TUBE, MARKER チューブ マーカ ゚3.2 シロ PL L=850
30 PB04081 1 BKT BKT FE
31 K51721 4 SCREW, C/R TRUSS 小ネジ 十穴トラス M03X005 ユニクロメッキ(シロ) FE
32 H5333A 1 BOLT, HEX SOCKET ボルト 六角穴 M06X060 FE
33 W1051A 1 WASHER, FLAT ワッシャ 平 6M/MX1.6X125(1W-6) FE
34 PB04076 1 BKT BKT AL
34.1 K5170T 2 SCREW, C/R TRUSS 小ネジ 十穴トラス M03X006 ユニクロメッキ(シロ) FE
8. ACCESSORIES / アクセサリ 221 PTS-NXT-08JE

8.4.1. PARTS EJECT UNIT-M
8.4.1. 部品排出ユニット-M
UK00708
No. Drg.No. & Code No. QTY Description Rating
Materials
Remarks
番号 図番 & コード番号 個数 品名 規格 材質 備考
35 H5288A 1 BOLT, HEX SOCKET ボルト 六角穴 M04X010 FE
36 W1022A 1 WASHER, LOCK ワッシャ スプリング 4M/M FE
37 W1043A 1 WASHER, FLAT ワッシャ 平 4W- 4 FE
41 PB03582 1 COVER カバー FE
42 . 2 SCREW, TRUSS 小ネジ トラス M03X006 FE
43 M5002L 1 MOTOR モータ TG-85C-AM-100-D422.24V OT
44 H5274A 4 BOLT, HEX SOCKET ボルト 六角穴 M03X006 FE
45 W1021A 4 WASHER, LOCK ワッシャ スプリング 3M/M FE
46 H1143A 1 BAND, TIE バンド 結束 T50RW OT
47 PB03501 1 BKT, SENSOR BKT センサ FE
48 K5357H 2 SCREW, HEX SOCKET COUNTERSUNK 小ネジ 六角穴皿 M03X005 FE
49 S4077L 1 SENSOR, PHOTO センサ フォト PM-L44P OT
50 H5276A 2 BOLT, HEX SOCKET ボルト 六角穴 M03X010 FE
51 W1010A 2 WASHER, CONICAL ワッシャ 皿 M- 3-L FE
52 PZ13940 1 TUBE チューブ PL
53 PB03572 1 BKT BKT FE
54 K5357M 4 SCREW, HEX SOCKET COUNTERSUNK 小ネジ 六角穴皿 M03X006 FE
55 PM07150 1 PIN ピン FE
56 N1082A 1 NUT, HEX ナット 六角 M 5 P=0.8 FE
57 W1023A 1 WASHER, LOCK ワッシャ スプリング 5M/M FE
58 PM07160 1 GEAR ギヤ FE
59 H4135K 1 BEARING ベアリング F695ZZ OT
60 PB03561 1 RETAINER 押え FE
61 K5357H 1 SCREW, HEX SOCKET COUNTERSUNK 小ネジ 六角穴皿 M03X005 FE
62 H4135L 2 BEARING ベアリング F696ZZ1 OT
63 K11381 1 COLLAR カラー MSRB6-0.3 OT
64 K2021Y 1 GEAR, BEVEL ギヤ ベベル M1S 20+2106 OT
65 N4027A 1 SCREW, HEX SOCKET SET ネジ 六角穴止め M04X005 クボミサキ FE
66 PM07121 1 SHAFT シャフト FE
67 PB03551 1 DOG ドッグ FE
68 H2039M 1 PIN, SPRING ピン スプリング 1.5゚X 6 ナミガタ OT
69 PM07191 1 COLLAR カラー FE
70 PM07130 1 GEAR ギヤ FE
71 H2042A 1 PIN, SPRING ピン スプリング 2゚X10 OT
72 PM07090 2 COLLAR カラー FE
73 H4202Y 2 BEARING ベアリング 687ZZ1 OT
74 PM07620 1 SHAFT シャフト FE
75 PM07650 1 ROLLER ローラ AL
8. ACCESSORIES / アクセサリ 222 PTS-NXT-08JE