P-0228-001.pdf - 第180页
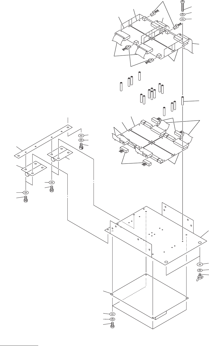
MODEL TIM-5000 9905-001 電源部 POWER SUPPL Y SECTION Fig. BF-5 電源2 SDS,SMD Power Supply 2 SDS, SMD 465 463 464 465 471 431 432 434 464 471 471 454 471 462 466 461 462 466 174 415 417 419 458 431 432 433 471 421 423 477 475 …

MODEL TIM-5000
9905-001
BF-4
Key No. PART No. PART NAME Q'ty REMARKS
336 411 119 2104 WASHER V 4X9X0.8 6 FW4 F
337 411 008 1706 WASHER SPR 4 6 SW4 F
338 411 043 5004 SCR PAN 4X8 6 M4X8 PAN
351 630 068 9631 TERMINAL 7 675BG-11D-351
354 630 049 3733 ACCESSORY,WIRING 1 675BG-11D-354
355 630 049 3672 BRACKET,WIRING 4 675BG-11D-355
357 630 057 4326 TERMINAL 1 675BG-11D-357
360 630 069 0156 FUSE HOLDER 10 675BG-11D-257
361 423 022 8104 FUSE 250V 2A 1 675BG-11D-361
362 423 022 8302 FUSE 250V 5A 3 675BG-11D-362
363 423 025 5100 FUSE 250V 4A 2 675BG-11D-363
365 402 079 8909 WIRE WOUND 50 JE 80W 1 675BG-11D-365
367 423 025 2109 FUSE 250V 6.3A 4 675BG-11D-557
370 630 049 1203 RELAY 2 675BG-11D-560
375 630 000 1051 BRACKET,WIRING 1 675BG-11D-755
376 630 058 8415 ACCESSORY,WIRING 3 675BG-11D-556
NOTE

MODEL TIM-5000
9905-001
電源部 POWER SUPPLY SECTION
Fig. BF-5電源2 SDS,SMD Power Supply 2 SDS, SMD
465
463
464
465
471
431
432
434
464
471
471
454
471
462
466
461
462
466
174
415
417
419
458
431
432
433
471
421
423
477
475
477
416
417
418
421
423

MODEL TIM-5000
9905-001
BF-5
Key No. PART No. PART NAME Q'ty REMARKS
415 630 001 0220 WASHER 2 BW5
416 411 141 4107 WASHER V 5X10X1 2 FW5
417 411 141 6705 WASHER SPR 5 4 SW5
418 630 000 7749 BOLT,HEX-SCT 2 M5X10
419 411 140 5709 BOLT WING 5X12 2 M5X12 WING
421 411 141 4008 WASHER V 4X9X0.8 8 FW4
423 630 000 7602 BOLT,HEX-SCT 8 M4X6
431 411 119 1909 WASHER V 3X7X0.5 20 FW3 F
432 411 086 4408 WASHER SPR 3 20 SW3 F
433 411 162 1604 SCR PAN 3X20 4 M3X20 PAN
434 630 000 9217 MACHINE SCREW 16 M3X40 PAN
454 630 069 1078 ACCESSORY,P.C.B 16 675BG-11D-454
458 630 049 3771 P.C.B,MOUNT 1 675BB-11D-158
461 630 071 2537 UNIT,I/O 1 675BG-11D-651
462 630 071 2544 UNIT,I/O 3 675BG-11D-652
463 630 069 9791 P.C.B,MOUNT(SDS-DIN) 1 675BG-11D-756
464 630 069 9807 P.C.B,MOUNT(SDS-DOUT) 3 675BG-11D-757
465 630 070 2965 CONNECTOR 4 675BG-11D-655
466 630 070 2972 CONNECTOR 4 675BG-11D-656
471 630 072 0815 CORD 4 675BG-11D-952
474 630 071 2759 BRACKET 1 675BG-11V-074
475 630 071 2766 PLATE 1 675BG-11V-075
476 630 075 1789 HINGE 1 675BG-11V-077
NOTE