00194482-02_AI_NozzleChanger_X_605_DE EN - 第34页
Montageanleitung Pipettenwechsler SIPLACE X-Serie / D3 Ausgabe 11/2011 34 1 Ceramic subst rate centering (Option) DC SIPLACE HF, 00119670-xx SC SIPLACE HF, 00119671-xx SP = location Desired input pre ssure: 5 ba r PUN 8 …

Montageanleitung Pipettenwechsler SIPLACE X-Serie / D3
Ausgabe 11/2011
33
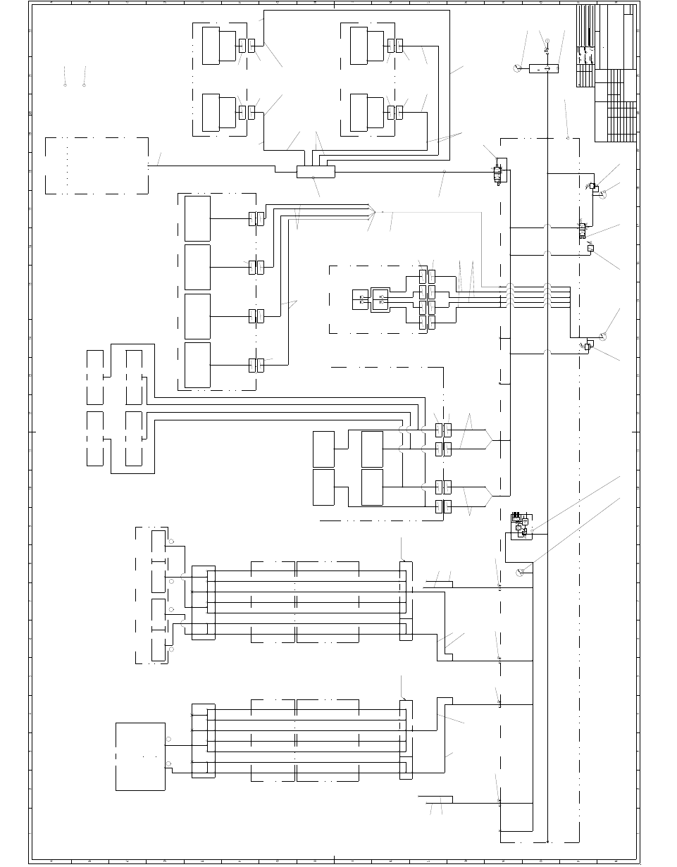
1.10 Stromlaufpläne / Pneumatikpläne
1
Abb. 1.10 - 1 Stromlaufplan X4 (Verrdrahtung des One-Wire-Hub ist für alle X-Maschinen identisch)

Montageanleitung Pipettenwechsler SIPLACE X-Serie / D3
Ausgabe 11/2011
34
1
Ceramic substrate centering
(Option)
DC SIPLACE HF, 00119670-xx
SC SIPLACE HF, 00119671-xx
SP = location
Desired input pressure: 5 bar
PUN 8 x 1.25 (xxxm)
03004138-xx
Modular single conveyor
00119625-xx
Modular dual conveyor
00119627-xx
max.255 st.l/min.
Lifting table 1
Lifting table 2
Lifting tables 3 and 4, dual conveyor
Width adjustment
Consumption not relevant
PCB stopper (option)
Consumption not relevant
255 st.l/min.
Trolley dock. unit
03000811-xxxxxx
SP 3
Consumption not relevant
Do not operate during placement operation
Trolley dock. unit
03000811-xxxxxx
SP 2
Consumption not relevant
Do not operate during placement operation
Trolley dock. unit
03000811-xxxxxx
SP 4
Consumption not relevant
Do not operate during placement operation
Trolley dock. unit
03000811-xxxxxx
SP 1
Consumption not relevant
Do not operate during placement operation
for SIPLACE X-F, X-S, and X-HS
Gantry distributor
SIPLACE X-HS
03006853-xx
for SIPLACE HF
Gantry distributor cpl.
03004080-01
for SIPLACE X-F, X-S, and X-HS
Gantry distributor
SIPLACE X-HS
03006853-xx
for SIPLACE HF
V1a1
V1a2
V1a3
V1a4
V1a5
V1a6
V1a7
V1e1
Gantry distributor cpl.
03004080-01
V1e2
V2a1
V2a2
V2a3
V2a4
V2a5
V2a6
V2a7
V2e2V2e1
Air consumpt. line for machine modules
443 st.l/min.
B23.3B23.2
B23.1
B23.4
B22
Gantry 4 Gantry 1
Gantry 2
Gantry 3
p = 5 to 10 bar
at an air consmpt. of 1800st.l/min.
B13.2
B13.1
B1
B11
B9
B10.4
B10.3
B10.2
B10.1
B7 B8
B6
Air consumpt. SIPLACE HF heads
300 st.l/min (1xRV6/12; 1xTH) or
400 st.l/min. (2xRV6/12) or
800 st.l/min (4xRV6/12)
B2
B3
B4
B5
B14
B20
B13.2
B21
S1
M1
M2
SP 2
SP 3
max.50 st.l/min.
SP 4
SP 1
Bulk case feeder connection
(Option)
Interface
Compr. air supply, dock. unit
03004200-xx
Interface
Compr. air supply, dock. unit
03004200-xx
SP 3
Nozzle changer (option)
(12-seg. RV 03001855-xx
6-seg. RV 03004010-xx
VHS)
up to max. 2 per SP
Consumption not relevant
2.5 bar
2.5 bar
PUN-4 x 0.75
PUN-4 x 0.75
2.5 bar
2.5 bar
PUN-4 x 0.75
PUN-4 x 0.75
Cover up connections in HF machines
SP 4
Nozzle changer (option)
(12-seg. RV 03001855-xx
6-seg. RV 03004010-xx
VHS)
up to max. 2 per SP
Consumption not relevant
SP 2
Nozzle changer (option)
(12-seg. RV 03001855-xx
6-seg. RV 03004010-xx
VHS)
up to max. 2 per SP
Consumption not relevant
SP 1
Nozzle changer (option)
(12-seg. RV 03001855-xx
6-seg. RV 03004010-xx
VHS)
up to max. 2 per SP
Consumption not relevant
NN ± N
medium
1
A0
1710xxx Xxxxx xxx xx P
Depth:0.3/
2-5 um layer (nickel-plated)
DS 01
FS 03
FS 04
Distributor, placement head
03013015-xx
6-M7 4-M7 4-M7 8-1/4" 8-1/4"
V3a1
V3a2
V3a3
V3a4
V3a5
Distributor, placement head
03013015-xx
Y
V3e1
V3e2
V3e3
V3e4
V3e5
V3e6
V3e7
V4e1
V4e2
V4e3
V4e4
V4e5
V4e6
V4e7
V4a5
V4a4
V4a3
V4a2
V4a1
8-1/4"8-1/4"4-M74-M76-M7
Cable and hose carrier, e.g. analog 1G
03009210-xx
Hose 03012081-xx, made from:
TFU0604B-8-10-X17 (SMC)
Y
XX
Cable and hose carrier, e.g. analog 1G
03009210-xx
Hose 03012081-xx, made from:
TFU0604B-8-10-X17 (SMC)
X59
X59
Main valve
Press. switch
PUN-6
PUN-6
Interface
Compr. air supply, dock. unit
03004200-xx
PUN-6
PUN-6
SP 3
max. 138 st.l/min.
Tape cutter
03019941-xxxxxx
4.5 bar 4.5 bar
SP 4
max. 138 st.l/min.
Tape cutter
03019941-xxxxxx
PUN-6
PUN-6
Interface
Compr. air supply, dock. unit
03004200-xx
PUN-6
PUN-6
SP 2
max. 138 st.l/min.
Tape cutter
03019941-xxxxxx
4.5 bar 4.5 bar
SP 1
max. 138 st.l/min.
Tape cutter
03019941-xxxxxx
255 + 138 st.l/min. PUN 10
Distributor
V5e1
X60
Safety valve
1/4" 5 x M51/8"1/4"1/4"1/2"1/2"1/2"1/2"1/8"
3/4"3/4"
Main hole >3/4"
Valve block
p = 5.0 ±0.25 bar
5um
Return motion cyl.
Z axis
Vacuum generator
4.5 ± 0.1 bar, 100 st.l/min.
2
1
Vacuum generator
Return motion cyl.
Z axis
Twin Pick + Place head, 03001841-xx
2
1
Air consmpt.:5Nl/min
4.5 +0.1 bar, 200 st.l/min.
Revolver head DLM2-6, 00367020-xx
Revolver head DLM2-12, 00367281-xx
2
1
Holding circuit
Plcmt. circuit
Forced air
Nozzle Ø 1mm
Suct. pwr.:27N/l
Air consmpt.:55Nl/min
Nozzle Ø 1.5mm
Suct. pwr.:63N/l
Air consmpt.:140Nl/min
Consumption not relevant
Feeder unlocking rail
SP 2
Consumption not relevant
Feeder unlocking rail
SP 1
Consumption not relevant
Feeder unlocking rail
SP 3
PUN-4 x 0.75
PUN-4 x 0.75
PUN-4 x 0.75
Consumption not relevant
Feeder unlocking rail
SP 4
PUN-4 x 0.75
PUN 12 x 2.0 (2.5m)
03004181-xx
PUN 10 x 1.5 (2.5m)
03004180-xx
PUN 12 x 2.0 (2.3m)
03004179-xx
PUN 10 x 1.5 (2.3m)
03004178-xx
PUN 10 x 1.5 (2.5m)
03004180-xx
PUN 12 x 2.0 (2.5m)
03004181-xx
PUN 12 x 2.0 (2.3m)
03004179-xx
PUN 10 x 1.5 (2.3m)
03004178-xx
PUN 6 x 1.00 (2.0m)
03006585-xx
PUN 6 x 1.00 (1.8m)
03004146-xx
PUN 4 x 0.75 (2.2m)
03006583-xx
PUN 4 x 0.75 (2.0m)
03004143-xx
PUN 6 x 1.00 (0.4m)
03006589-xx
PUN 4 x 0.75 (1.6m)
03004145-xx
PUN 4 x 0.75 (1.9m)
03006588-xx
Interface
Compr. air supply, dock. unit
03004200-01
Interface, CO dock. unit
(Sockets)
03004679-xx
Interface, CO dock. unit
(Sockets)
03004679-xx
Interface, CO dock. unit
(Sockets)
03004679-xx
Interface, CO dock. unit
(Sockets)
03004679-xx
03004151-xx
PUN 10 x 1.5
03004139-xx
03004088-xx
Hose connection
RTU-PK-4/6
00047026-xx
Hose connection
RTU-PK-4/6
00047026-xx
Interface
Compr. air supply, dock. unit
03004200-01
Hose connection
RTU-PK-4/6
00047026-xx
= Item no. of Siemens bill of materials (Cadim)
03004150-02
10
20
19
2
Multiple distributor
QSQ-6-4
00336911-xx
12H12H 12H 12H
1H
10H 2H
6H
8;9H
8;9H10H 10H7H 4H
14H
3H
10H
= Item no. Herion parts list or SIPLACE X series valve block
(03004153-01)
X58
Proportional valve
p = 5.0 ±0.1 bar
external
internal
NOM value
8 bit
digital
Adjust at internal potentiometer
Pressure required
p = 4.6 +0.1 bar
p = 2.5 ± 0.5 bar
PUN 8 x 1.25 (1.2m)
03006587-xx
PUN 8 x 1.25 (1.0m)
03004147-xx
PUN 8 x 1.25 (1.2m)
03006587-xx
PUN 6 x 1 (0.3m)
03004677-xx
PUN 6 x 1 (0.3m)
03004677-xx
1
03004151-040101XD0
SIPLACE X series
Pneumatic diagram
03.04.02 Schönbach
FLDTDSPSFSMain no.
Dimens. variations:
Degree of accuracy
acc. to ISO 2768 mH
SIEMENS
L&A
Status Modified Date Name
Dimens. variations
<6
>6...30
>30...120
>120...400
>400...1000
±0.1
±0.2
±0.3
±0.5
±0.8
Surface.:
HRc tempered
case hardened
NameDate
Author
Check.
Stand.
Scale:
(Drawing number)
Format
(Material , semi-fin. products)
(Unmachined part no.)
(Mod el or swage no .)
R 100
R 25
R 6.3
R 1
Comprising
Coordinates list:
Sh.
Sheet
Weitergabe sowie Vervielfältigung dieser Unterlage, Verwer-
tung und Mitteilung ihres Inhalts nicht gestattet, soweit nicht
ausdrücklich zugestanden. Zuwiderhandlungen verpflichten zu
Schadenersatz. Alle Rechte für den Fall der Patenterteilung
oder GM-Eintragung vorbehalten.
Copying of this document, and giving it to others and the use
or communication of the contents thereof, are forbidden with-
out express authority. Offenders are liable to the payment of
damages. All rights are reserved in the event of the grant of
a patent or the registration of a utility model or design.
max.50 st.l/min.
---nn.nn.nnnew
CHR 400871
CHR 400478
27.01.04
28.03. 03 .HS
HS

Montageanleitung Pipettenwechsler SIPLACE X-Serie / D3
Ausgabe 11/2011
35
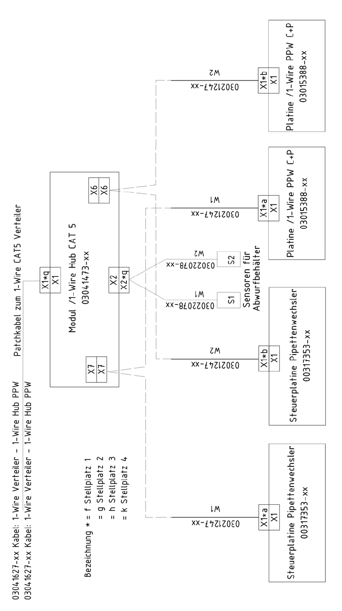
Verdrahtung One-Wire-Hub 1