X4电路图 - 第319页
5 - 60 0304147 2-010 101ND 4 Board, 1-wi re h ub CA T5 (sh. 1 of 2) 0304147 2-010 101ND 4 Board, 1-wi re h ub CA T5 (sh. 2 of 2) in chapter 1 See drawing Connectors 03041473-x xxxxxLD4 SIEMENS AG A&D Copyright res er…

5 - 59
03040218-010201ND4 Board, 1-wire CAT5 distributor
BEP MAKRO V1.4
Component layout, component side
SIPLACE X-Series
Top view
This view and these data Data - FILE:
*.mnt
SIPLACE X3Connectors
See drawing
in chapter 1
90010135-xxxxxxLD3
Sheet 4
Copyright reserved
FS DT PS FSMain no. DS
2-layer PCB
SIEMENS AG
Proprietary data, company confidential. All rights reserved.
Confie a titre de secret d'entreprise. Tous droits reserves.
Comunicado como segredo empresarial. Reservados todos os direitos.
Confiado como secrete industrial. Nos reservamos todos los derechos.insbesondere für den Fall der Patenterteilung oder GM-Eintragung.
Weitergabe sowie Vervielfältigung dieser Unterlage,Ver-
Zuwiderhandlungen verpflichten zu Schadenersatz. Alle Rechte vorbehalten,
Mitteilung ihres Inhalts nicht gestattet, soweit nicht ausdrücklich zugestanden.
1
Format A4Scale 2:1
Sh.
Sheet(Drawing number)
NameDate
Stand.
Check.
Author
NameDateModifiedStat.
A&D
1
Timm07.07.05
03040218 - 010201ND4
Board /1-wire CAT5 distributor

5 - 60
03041472-010101ND4 Board, 1-wire hub CAT5 (sh. 1 of 2)
03041472-010101ND4 Board, 1-wire hub CAT5 (sh. 2 of 2)
in chapter 1
See drawing
Connectors
03041473-xxxxxxLD4
SIEMENS AG
A&D
Copyright reserved
*.mnt
Data - FILE:This view and these data
Top view
SIPLACE X-Series
Component layout, component side
V1.4MAKROBEP
Board /1-wire hub CAT5
03041472 - 010101ND4
23.06.05 Timm
2
Stat. Modified Date Name
Author
Check.
Stand.
Date Name
(Drawing number) Sheet
Sh.
Scale 2:1 Format A4
1
Mitteilung ihres Inhalts nicht gestattet, soweit nicht ausdrücklich zugestanden.
Zuwiderhandlungen verpflichten zu Schadenersatz. Alle Rechte vorbehalten,
Weitergabe sowie Vervielfältigung dieser Unterlage,Ver-
insbesondere für den Fall der Patenterteilung oder GM-Eintragung. Confiado como secrete industrial. Nos reservamos todos los derechos.
Comunicado como segredo empresarial. Reservados todos os direitos.
Confie a titre de secret d'entreprise. Tous droits reserves.
Proprietary data, company confidential. All rights reserved.
2-layer PCB
DSMain no. FS PS DT S F
*.mnb
Data - FILE:This view and these data
View from below
SIPLACE X-Series
Component layout, solder side
V1.4MAKROBEP
Board /1-wire hub CAT5
03041472 - 010101ND4
23.06.05 Timm
2
A&D
Stat. Modified Date Name
Author
Check.
Stand.
Date Name
(Drawing number)
Sheet
Sh.
Scale 2:1 Format A4
2
Mitteilung ihres Inhalts nicht gestattet, soweit nicht ausdrücklich zugestanden.
Zuwiderhandlungen verpflichten zu Schadenersatz. Alle Rechte vorbehalten,
Weitergabe sowie Vervielfältigung dieser Unterlage,Ver-
insbesondere für den Fall der Patenterteilung oder GM-Eintragung. Confiado como secrete industrial. Nos reservamos todos los derechos.
Comunicado como segredo empresarial. Reservados todos os direitos.
Confie a titre de secret d'entreprise. Tous droits reserves.
Proprietary data, company confidential. All rights reserved.
SIEMENS AG
2-layer PCB
DSMain no. FS PS DT S F
Copyright reserved
See drawing
in chapter 1
Connectors
03041473-xxxxxxLD4

5 - 61
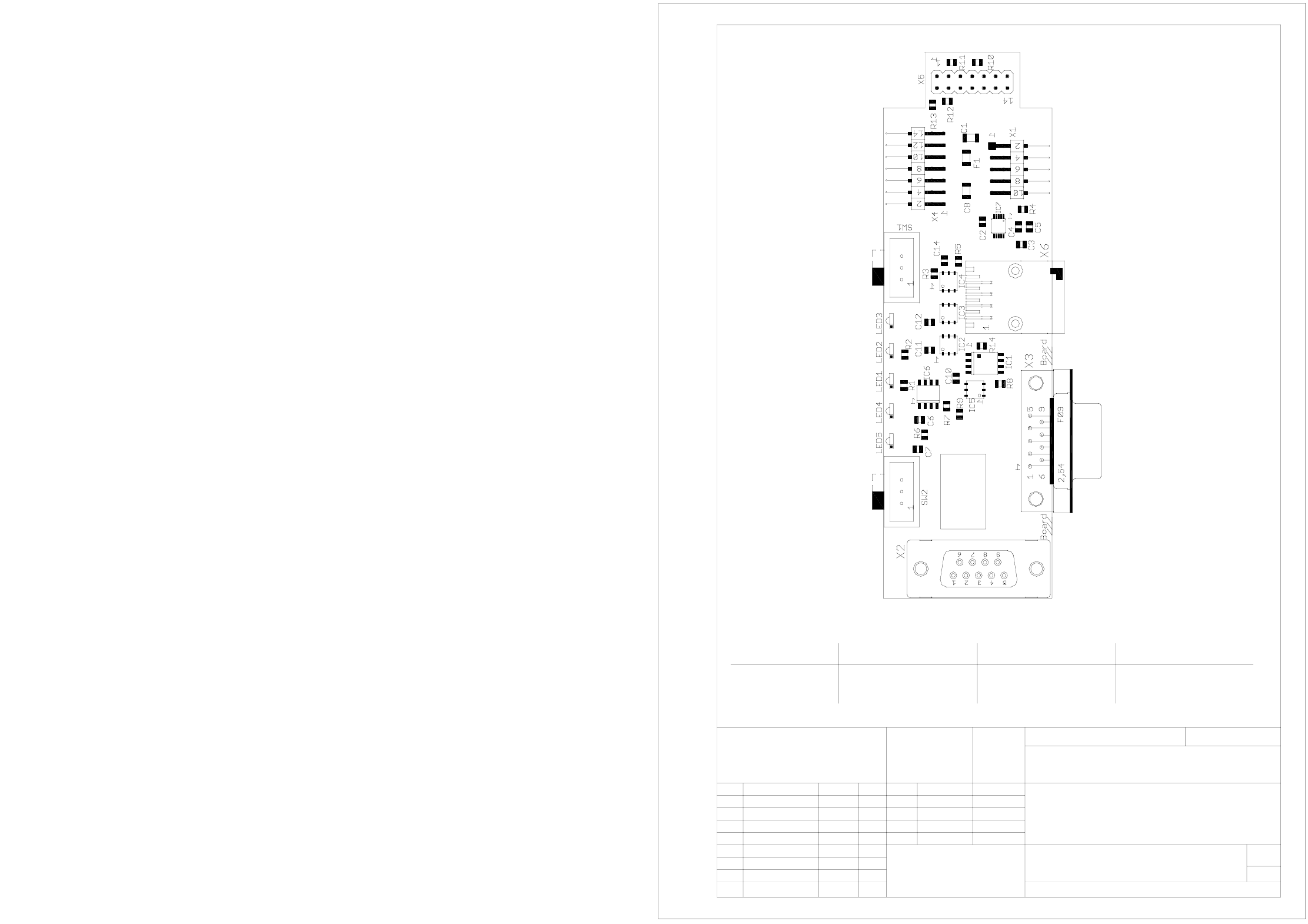
03041578-020101ND4 Board / 1-wire CAT5 interface, SIPLACE X-Series
in chapter 1
See drawing
Connectors SIPLACE X4
90010131-xxxxxxLD3
Sheet 4 Sheet 4
90010132-xxxxxxLD3
SIPLACE X2
90010134-xxxxxxLD3
Sheet 4
SIPLACE X3
*.mnb
Data - FILE:This view and these data
View from below
SIPLACE X-Series
Component layout, solder side
Board /1-wire CAT5 interface
03041578 - 020101ND4
27.06.05 Timm
1
A&D
Stat. Modified Date Name
Author
Check.
Stand.
Date Name
(Drawing number) Sheet
Sh.
Scale 1 : 1 Format A4
1
Mitteilung ihres Inhalts nicht gestattet, soweit nicht ausdrücklich zugestanden.
Zuwiderhandlungen verpflichten zu Schadenersatz. Alle Rechte vorbehalten,
Weitergabe sowie Vervielfältigung dieser Unterlage,Ver-
insbesondere für den Fall der Patenterteilung oder GM-Eintragung. Confiado como secrete industrial. Nos reservamos todos los derechos.
Comunicado como segredo empresarial. Reservados todos os direitos.
Confie a titre de secret d'entreprise. Tous droits reserves.
Proprietary data, company confidential. All rights reserved.
SIEMENS AG
2-layer PCB
DSMain no. FS PS DT S F
Copyright reserved