SM411 Technical Reference_Ver2 - 第110页
Page SAMSUNG TECHWIN 1 10 SM411 E le ct ric C irc ui t Dia gr am (5 /6) 32B 31B 36B 41B 37B 42B 26B 21B 27B 22B 21A 26A 31A 36A 41A 1 3 5 2 4 6 34B 39B 44B 29B 24B 33B 38B 43B 28B 23B 22L1 22L3 22L2 22T 22R ( S M 3 3 _ P…

Page
SAMSUNG TECHWIN
109
SM411
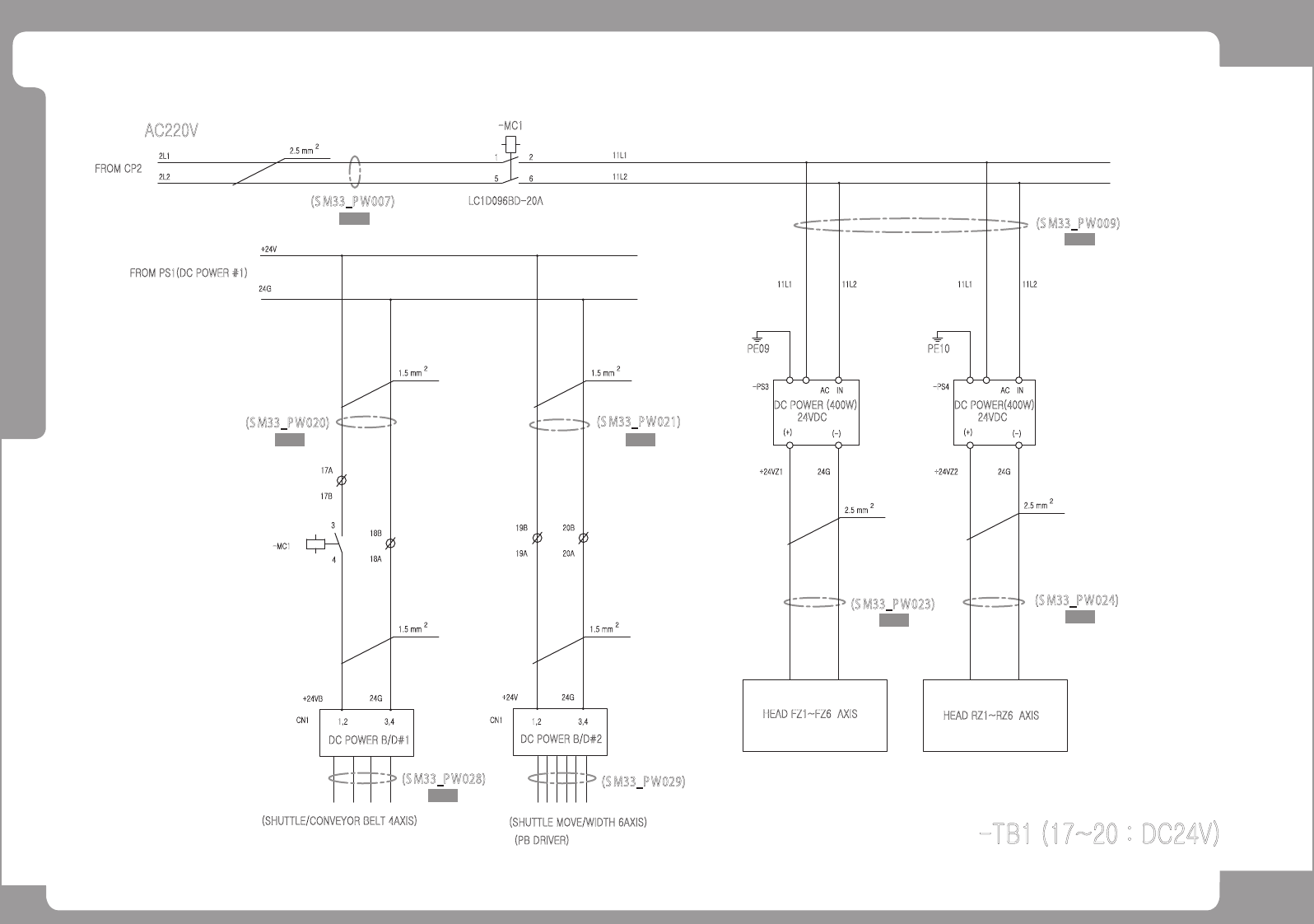
Electric Circuit Diagram (4/6)
1 2
5 6
3
4
19B 20B
19A 20A
18B
18A
17A
17B
1,2 3,4 1,2 3,4
11L1
11L2
2L2
FROM CP2
2L1
-MC1
AC220V
LC1D096BD-20A
24G
+24VZ1 24G
-PS3
(SHUTTLE/CONVEYOR BELT 4AXIS)
11L1 11L2
(SHUTTLE MOVE/WIDTH 6AXIS)
+24VB
24G
-MC1
(PB DRIVER)
+24V 24G
HEAD FZ1~FZ6 AXIS
+24VZ2 24G
-PS4
11L1 11L2
HEAD RZ1~RZ6 AXIS
FROM PS1(DC POWER #1)
+24V
1.5 mm1.5 mm
(S M33_P W 021)
(S M33_P W 020)
(S M33_P W 009)
1.5 mm 1.5 mm
2.5 mm
2.5 mm
2.5 mm
(S M33_P W 007)
(S M33_P W 023)
(S M33_P W 024)
-TB1 (17~20 : DC24V)
(S M33_P W 028)
(S M33_P W 029)
CN1 CN1
DC POWER (400W)
(-)
24VDC
(+)
AC IN
PE09
DC POWER B/D#1
DC POWER B/D#2
DC POWER(400W)
(-)
24VDC
(+)
AC IN
PE10
22
2 2
2
2
2

Page
SAMSUNG TECHWIN
110
SM411
Electric Circuit Diagram (5/6)
32B31B
36B
41B
37B
42B
26B
21B
27B
22B21A
26A
31A
36A
41A
1
3
5
2
4
6
34B
39B
44B
29B
24B
33B
38B
43B
28B
23B
22L1
22L3
22L2
22T
22R
(S M33_P W016)
0.75mm
(S M33-P W 017)
0.75mm
-TB1 (21~40 : 3Ø 220V)
FROM CP3
-MC2
AC220V
22R
22S
22T
(LC1D096BD-20A)
(S M33_P W015)
(S M33-P W 019)
0.75mm
(S M33-P W 018)
0.75mm
DRIVERDRIVER
PE11
U
-M1
3~
M
WV E
3~
-M2
M
U V
PE12
W E
L3
SERVO
r
-SD1
L1
t
SERVO
r t
-SD2
L3L1
DRIVERDRIVER
PE13
U
-M3
3~
M
V W E V
M
3~
-M4
U
PE14
W E
SERVO
r
-SD3
L1
t
SERVO
t
L3
r
-SD4
L2 L3L1
2 2
50W
FS-AXIS
750W
FX-AXIS
50W
RS-AXIS
750W
RX-AXIS
DRIVERDRIVER
PE17
U
-M3
3~
M
V W E V
M
3~
-M4
U
PE18
W E
SERVO
r
-SD7
L2L1
t
SERVO
t
L3
r
-SD8
L2 L3L1
2
1KW
RY1-AXIS
1KW
RY2-AXIS
DRIVERDRIVER
PE15
U
-M3
3~
M
V W E V
M
3~
-M4
U
PE16
W E
SERVO
r
L2L1
t
SERVO
t
L3
r
-SD6
L2 L3L1
2
1KW
FY1-AXIS
1KW
FY2-AXIS
-SD5
L2

Page
SAMSUNG TECHWIN
111
SM411
Electric Circuit Diagram (6/6)
E E
13
14
5
9
-A2
+A1
-A2
+A1
13
14
13
14
13
14
24G
+24V
-FUSE1
-K1
-K1
-MC1
-MC2
-MC1
-READY S/W
-K1
-K3
(FRONT)
(REAR)
-MC2 -K2
-K1
-K3
-K3
(250V,0.5A)
11
7
K3
9
5
K2
12
8
MCEN1
10
6
MCA1
-K4
-K2
NO1A
9
5
NO1B
D24V(STEPPING & FEEDER POWER)
K1
MC2
MC1
CN19-1
CN19-2
CN18-2
CN18-1
CN3-3
CN3-4
CN4-3
CN4-4
22
12
-EM S/W1
21
11
(CONV.CN17-3)
EM1
-EM S/W2
22
12
21
11
EM2
(CONV.CN18-3)
(FRONT)
(REAR)
21
22
11
12
21
11
22
12
-DOOR S/W1
(FRONT)
-DOOR S/W2
(REAR)
DOOR1
(CONV.CN17-4)
DOOR2
24G
(CONV.CN17-5)
(CONV.CN18-4)
24G
(CONV.CN18-5)
24G
(CONV.CN17-6)
24G
(CONV.CN18-6)
READY OUT
REM1
FD1
RD1
TF3
K1
TF2
-EM SPARE1
-EM SPARE2
TF1
-SAFEGUARD
OVERRIDE KEY
K1
DIP SW-1
DIP SW-4
DIP SW-3
DIP SW-2