SM411 Technical Reference_Ver2 - 第36页
Page SAMSUNG TECHWIN 36 SM411 A ir Ass’ y (1 /5) A B D C B 2 C D 1 D 3 D 2 D 4 Feeder Base (DC) Feeder Base J6711018A KQ2VD08-02S J6712013A PLUG(PT 1/4) J6711018A KQ2VD08-02S J1301189 KQ2L06-02 J1301189 KQ2L06-02 J671101…

Page
SAMSUNG TECHWIN
35
SM411
Head Ass’y
NO. LEVEL PART NO. PART NAME Q'TY TYPE
Old No. Stock Apply
Reference
135
....4 J90831038A HEAD_BLOW_SOL_CABLE_ASSY SM33-HD006 1 SM33-HD006
COMMON [39] at 90 page
136
....4 J90831041A FLY_OUTER_LED_BD_CABLE_ASSY SM33-HI001 1 SM33-HI001
COMMON [40] at 88 page
137
....4 J90831099A FLAT_FID_CAMERA_CABLE_ASSY SM33-VIS002 1 SM33-VIS002
COMMON [41] at 101 page
138
....4 J90831103A FLY_CAM_PWR-SYNC_EXT_CABLE_ASSY SM33-VIS 1 SM33-VIS006
COMMON [42] at 101 page
139
....4 J90831108A FLYING_CAMERA_I-F_CABLE_ASSY SM33-VIS011 6 SM33-VIS011
COMMON [43] at 101 page
A-2 0.1
J90551102A HEAD_VISION_ASSY-MEGA J90551102A
1
J90551102A
○
140
...3 J90551081A FLY_CAM_ONE_KIT_ASSY_MEGA-F16 J90551081A 6 J90551081A
○
141
....4 J6751015A CCD CAMERA[SFA-205AL] 1 SFA-205AL
○
P art L is t

Page
SAMSUNG TECHWIN
36
SM411
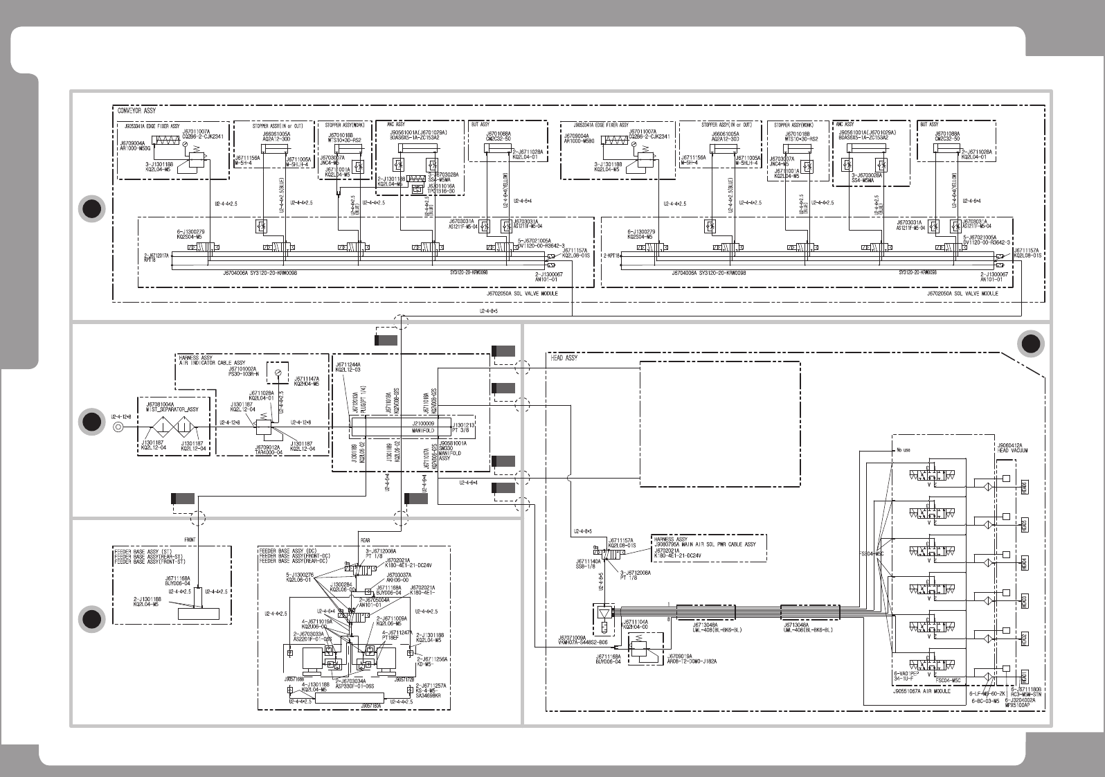
Air Ass’y (1/5)
A
B
D
C
B 2
C
D1
D3
D2
D4
Feeder Base (DC)
Feeder Base
J6711018A
KQ2VD08-02S
J6712013A
PLUG(PT 1/4)
J6711018A
KQ2VD08-02S
J1301189
KQ2L06-02
J1301189
KQ2L06-02
J6711017A
KQ2VD06-02S
F ront G antry Air Module
R ear G antry
Air Module
J9053341A EDGE FIXER ASSY
U2-4-6*4
U2-4-12*8
STOPPER ASSY(WORK)
STOPPER ASSY(IN or OUT)
ANC ASSY
BUT ASSY
J9053341A EDGE FIXER ASSY
STOPPER ASSY(IN or OUT)
STOPPER ASSY(WORK)
ANC ASSY
BUT ASSY
CONVEYOR ASSY
HEAD ASSY
3-J1301188
KQ2L04-M5
J6709004A
AR1000-M5BG
U2-4-4*2.5
J1301187
KQ2L12-04
J67081004A
MIST_SEPARATOR_ASSY
4-J1301188
KQ2L04-M5
U2-4-4*2.5
J9057168B
2-J6711257A
KS-4-M5-
SA34698KR
J9057180A
2-J6703034A
ASP330F-01-06S
U2-4-4*2.5
J9057172B
U2-4-4*2.5
U2-4-4*2.5
J6711168A
BUYD06-04
U2-4-4*2.5
2-J1301188
KQ2L04-M5
5-J1300276
KQ2L06-01
U2-4-4*2.5
2-J6711256A
KD-M5-
2-J1301188
KQ2L04-M5
4-J6711247A
PT18EF
2-J6711009A
KQ2L06-M5
J6702021A
K180-4E1-
J6702021A
K180-4E1-21-DC24V
J6703037A
AKH06-00
2-J6705004A
AN101-01
J1300284
KQ2U06-00
J6711168A
BUYD06-04
3-J6712008A
PT 1/8
J6709012A
TAR4000-04
FRONT
J1301187
KQ2L12-04
U2-4-12*8
J1301187
KQ2L12-04
U2-4-6*4
U2-4-6*4
U2-4-6*4
REAR
J1301187
KQ2L12-04
U2-4-12*8
J90581001A
SM330
MANIFOLD
ASSY
J1301213
PT 3/8
J67011007A
CQ2B6-2-CJK2341
J90561001A(J6701029A)
BDAS6X5-1A-ZC153A2
U2-4-8*5
2-J1300067
AN101-01
J6702050A SOL VALVE MODULE
J6711028A
KQ2L04-01
J67101002A
PS30-103R-N
J6704006A SY3120-20-KRW0098
J6711147A
KQ2H04-M5
J6711244A
KQ2L12-03
SY3120-20-KRW0098
U2-4-4*2.5(BLUE)
U2-4-4*2.5
(BLUE)
U2-4-4*2.5
U2-4-4*2.5
U2-4-4*2.5
(BLUE)
U2-4-6*4(YELLOW)
U2-4-6*4
U2-4-4*2.5
AS1211F-M5-04
J6703031A
AS1211F-M5-04
J6703031A
J67011016A
TPC1B16-30
3-J6703028A
SS4-M5MA
2-J1301188
KQ2L04-M5
J6711157A
KQ2L08-01S
J6711001A
KQ2L04-M5
2-J6712017A
KPT18
6-J1300279
KQ2S04-M5
5-J67021005A
DV1120-00-R3642-3
5-J67021005A
DV1120-00-R3642-3
J6702050A SOL VALVE MODULE
2-J1300067
AN101-01
2-KPT18
J6704006A SY3120-20-KRW0098
6-J1300279
KQ2S04-M5
J67011007A
CQ2B6-2-CJK2341
3-J1301188
KQ2L04-M5
J6709004A
AR1000-M5BG
U2-4-4*2.5
U2-4-4*2.5(BLUE)
U2-4-4*2.5
SY3120-20-KRW0098
J90561001A(J6701029A)
BDAS6X5-1A-ZC153A2
J6711001A
KQ2L04-M5
U2-4-4*2.5
U2-4-4*2.5
(BLUE)
U2-4-4*2.5
(BLUE)
J6703031A
AS1211F-M5-04
3-J6703028A
SS4-M5MA
U2-4-6*4(YELLOW)
U2-4-6*4
J6703031A
AS1211F-M5-04
J6711157A
KQ2L08-01S
U2-4-8*5
J67071009A
VKMH07A-S448S2-B06
J9060412A
HEAD VACUUM
6-J6711180B
RC3-M5M-STN
J6713048A
UML-408(BL-BK6-BL)
J6713048A
UML-408(BL-BK6-BL)
J6709019A
AR08-T2-DOMO-J182A
J6711168A
BUYD06-04
8
J6702021A
K180-4E1-21-DC24V
J6711157A
KQ2L08-01S
3-J6712008A
PT 1/8
U2-4-8*5
J6711140A
SS8-1/8
1
J90551067A AIR MODULE
6-VA01PEP
34-1U-F
6-BC-03-M5
6-J3204002A
MPX5100AP
6-LF-M5-60-ZK
FSC04-M5C
HEAD1 HEAD2
FSE04-M5C
HEAD5HEAD3 HEAD4 HEAD6
No use
FEEDER BASE ASSY (ST)
FEEDER BASE ASSY(REAR-ST)
FEEDER BASE ASSY(FRONT-ST)
2-J6703033A
AS2201F-01-06S
4-J6711019A
KQ2U06-00
FEEDER BASE ASSY (DC)
FEEDER BASE ASSY(FRONT-DC)
FEEDER BASE ASSY(REAR-DC)
J2100009
MANIFOLD
J66061005A
AQ2A12-30D
J6701018B
WTS10*30-RS2
J6701088A
CM2C32-50
HARNESS ASSY
AIR INDICATOR CABLE ASSY
J6711005A
M-5HLH-4
J6703007A
JNC4-M5
2-J6711028A
KQ2L04-01
J6711156A
M-5H-4
J6711156A
M-5H-4
J6711005A
M-5HLH-4
J66061005A
AQ2A12-30D
J6703007A
JNC4-M5
J6701018B
WTS10*30-RS2
2-J6711028A
KQ2L04-01
J6701088A
CM2C32-50
HARNESS ASSY
J9080795A MAIN AIR SOL PWR CABLE ASSY
A2
31
3
A
1
2
A2
31
A2
31
1 3
A2
A2
31
B 1
J6711104A
KQ2H04-00

Page
SAMSUNG TECHWIN
37
SM411
Air Ass’y (2/5)
U2-4-12*8
U2-4-4*2.5
U2-4-12*8
U2-4-6*4
U2-4-6*4
U2-4-6*4
U2-4-12*8
HARNESS ASSY
AIR INDICATOR CABLE ASSY
8
F ront Head Vac c um S ol. Volve
R ear Head Vac c um S ol. V olve
F ront S ol. V olve Module
R ear S ol. Volve Module
R egultor
R ear Multi T ube 1,
8 C onnec tion F itting
F ront Multi Tube 1,
8 C onnec tion F itting
R ear F eeder B as e
F ront Feeder B as e
A
B 2
C
D1
D3
D2
D4
B 1
81491111
101015
12
13
16
17
18
22 22
19
19
20
21
13
P lug
15
10
10
10
10
11
9
9
11
22
21
16
A
I
R
P
R
E
S
S
U
R
E
17
18
19
19
20
23
22
21
24