XP-341E-02 - 第46页
9 - 2 9 . 残テープカッタ( D E P K ) 9 . W a s t e t a p e c u t t e r ( D E P K ) 9 . W a s t e t a p e c u t t e r ( D E P K ) 9 . 残テープカッタ( D E P K ) XP-341E P ARTS LIST 警告 メンテナンスは十分注意して行って下さい。 この奥に残テープ自動切断装置があります。 W A R N I N…

9 - 1
9.残テープカッタ(DEPK)
9.Waste tape cutter(DEPK)
9.Waste tape cutter(DEPK)
9.残テープカッタ(DEPK)
XP-341E PARTS LIST
Ref.33-7
Ref.31-1
Ref.31-1
Ref.31-1
Ref.31-1
タテx173.205
警告
メンテナンスは十分注意して行って下さい。
この奥に残テープ自動切断装置があります。
WA
RNIN
G
x7
51
36
50
51
36
50
36
50
36
50
53
52
35
30
11
69
69
12
37
33
31
36
26
21
A
47
44
5
6
6
19
C
36
45
23
25
23
22
10
24
B
36
45
23
25
19
23
22
10
24
4
9
3
43
48
2
43
48
34
37
34
37
35
30
28
41
20
28
41
20
13
29
35
39
16
15
14
42
32
29
35
39
13
16
15
14
42
32
A
46
38
70
38
46
C
B
38
70
46
1
8
7
7
40
27
40
27
7
40
27
17
17
17
17
17
17
17
18
208
176
165
175
161
175
161
175
161
183
162
176
167
175
161
13
13
B
A
139
26
54
56
55
60
61
65
64
49
68
D
E
D
E
66
62
66
62
63
51
51
57
58
59
67
36
50
36
50
36
50
63
63
67

9 - 2
9.残テープカッタ(DEPK)
9.Waste tape cutter(DEPK)
9.Waste tape cutter(DEPK)
9.残テープカッタ(DEPK)
XP-341E PARTS LIST
警告
メンテナンスは十分注意して行って下さい。
この奥に残テープ自動切断装置があります。
WA
RNIN
G
x7
A
C
B
A
C
B
D
E
D
E
LOCTITE262
LOCTITE262
ThreeBond1373B
ThreeBond1390E
ThreeBond1373B
ThreeBond1390E
1.96N・m
3.9N・m
13.0N・m
13.0N・m
13.0N・m
13.0N・m

9.残テープカッタ(DEPK)
9.Waste tape cutter(DEPK)
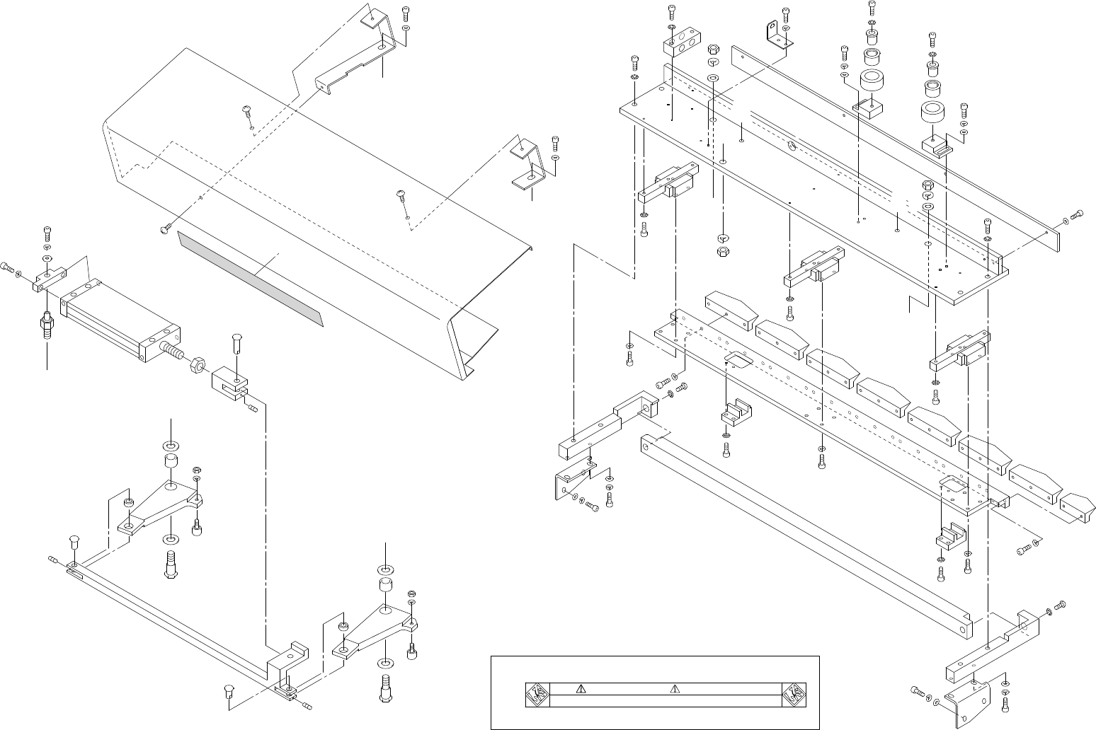
番号 図番 & コード番号 個数 品名 規格 備考
材質
No. Drg.No. & Code No. QTY Description Rating Remarks
Materials
1 DDUF3140 2 PLATE プレート FE
2 DDUF3151 2 BKT BKT FE
3 DDUF3161 2 BKT BKT FE
4 DDUF3010 2 BAR バー FE
5 DDUF3020 2 KNUCKLE ナックル FE
6 DBVC0300 4 PIN, PIVOT ピン 支点 FE
7 DDUF3030 6 GUIDE, RAIL ガイド レール OT
8 DDUF3050 2 BKT BKT FE
9 DDUF3060 2 CUTTER, STATIONARY カッタ 固定 FE
10 DDUF3080 4 LEVER レバー FE
11 DDUF3090 2 PIN, PIVOT ピン 支点 FE
12 DDUF3100 2 PIN, PIVOT ピン 支点 FE
13 DDUF3111 4 PLATE プレート FE
14 DBVC0270 4 DAMPER ダンパ PL
15 DBVC0280 4 ROLLER ローラ FE
16 DBVC0290 4 COLLAR カラー FE
17 DBVC0240 14 CUTTER, MOVABLE カッタ 可動 FE
18 DBVC0250 2 CUTTER, MOVABLE カッタ 可動 FE
19 CGUF2034 4 PIN, PIVOT ピン 支点 FE
20 DDUF3120 4 BLOCK ブロック FE
21 S2088Y 2 CYLINDER, AIR シリンダ エアー FCD-KL-50-150-MOV-H-N-FL25 OT
22 K1091M 4 CAM FOLLOWER カムフォロア CF6UUR-A OT
23 W1001W 8 WASHER ワッシャ FTRC-1528 FE
24 H4570A 4 BEARING, DRY ベアリング ドライ 54B-101606 FE
25 H4571A 4 BEARING, DRY ベアリング ドライ 54B-152115 FE
26 W1089A 2 WASHER ワッシャ WSSB20-6-3 FE
27 H5290A
BOLT, HEX SOCKET
ボルト 六角穴 M4X15 FE
28 H5299A
BOLT, HEX SOCKET
ボルト 六角穴 M5X12L FE
29 H5301A BOLT, HEX SOCKET ボルト 六角穴 M5X18L FE
30 H5302A
BOLT, HEX SOCKET
ボルト 六角穴 M5X20L FE
31 H5321A
BOLT, HEX SOCKET
ボルト 六角穴 M6X12L FE
32 H5326A
BOLT, HEX SOCKET
ボルト 六角穴 M6X25 ゼンネジ FE
33 H5341A
BOLT, HEX SOCKET
ボルト 六角穴 M8X20L FE
34 H5343A
BOLT, HEX SOCKET
ボルト 六角穴 M8X30L FE
35 W1023A
WASHER, LOCK
ワッシャ スプリング 5M/M FE
36 W1024A
WASHER, LOCK
ワッシャ スプリング 6M/M FE
37 W1014A
WASHER, CONICAL
ワッシャ 皿 M-8-H FE
38 W1027A
WASHER, LOCK
ワッシャ スプリング 12M/M FE
39 W1044A WASHER, FLAT ワッシャ 平 4W-5 FE
XP-341E PARTS LIST
9 - 3
9.残テープカッタ(DEPK)
9.Waste tape cutter(DEPK)