KE2010取扱説明書Ver.2.01和文Rev.08.pdf - 第179页
4 - 75 部品供給角度は、部品が供給される角度が、搭載角度0 °のときに比べて何度になってい るかを表します。テープ部品は部品データにおいて、供給方向を指定してい るため、吸着 データで供給角度は指定しません。 反時計回りを+とします。 フロント側、リア側、MTC、MTSという供給位置には影響されません。 ・搭載角度0° ・搭載角度0° ・搭載角度0° ・搭載角度0° 図 図 図 図 4-7-3-3- 搭載角度 搭載角度 搭載角…

4 - 74
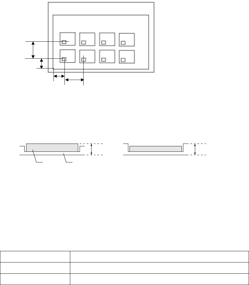
④ トレイ先頭位置
ホルダ内でのトレイの基準位置(X、Y)をトレイ突き当てからの距離で入力します。
⑤ トレイ間ピッチ
ホルダ内でのトレイ間ピッチ(ピッチX、ピッチY)を入力します。
⑥ トレイ分割数
ホルダ内でのトレイの横方向の分割数(Xn)、縦方向の分割数(Yn)を入力します。
⑦ トレイ厚み
部品を含むトレイの底面から上面までの高さTを入力します。
T T
図
図図
図 4-7-3-2
トレイ厚み図
トレイ厚み図トレイ厚み図
トレイ厚み図
⑧ 供給装置
供給装置をラジオボタンで設定します。
吸着データが複数入力してある部品の供給をトレイ、DTSまたはMTC/MTSに変更
した場合は、下記のダイアログが表示されます。
MTC/MTSを指定した場合、供給条件をコンボボックスで設定します。供給条件は、
最適化分割、吸着データのステージ指定時供給条件を参照します。
供給条件
自動 MTC/MTSのどちらにも使用できます。
MTCに固定 MTCのみの使用となります。
MTSに固定 MTSのみの使用となります。
⑨ 部品供給角度
部品の供給角度をラジオボタンで設定します。
その他の部品を選択した場合は、エディットフィールドに角度を入力して下さい。
(0°∼359°)
部品
トレイ
ケース1
ケース1ケース1
ケース1
ケース2
ケース2ケース2
ケース2
・
Xn
Yn
Y
X
ピッチX
ピッチY

4 - 75
部品供給角度は、部品が供給される角度が、搭載角度0°のときに比べて何度になってい
るかを表します。テープ部品は部品データにおいて、供給方向を指定しているため、吸着
データで供給角度は指定しません。
反時計回りを+とします。
フロント側、リア側、MTC、MTSという供給位置には影響されません。
・搭載角度0°
・搭載角度0°・搭載角度0°
・搭載角度0°
図
図図
図 4-7-3-3-搭載角度
搭載角度搭載角度
搭載角度0°
0°0°
0°
・
供給角度の設定例
供給角度の設定例供給角度の設定例
供給角度の設定例
スティックフィーダ
スティックフィーダスティックフィーダ
スティックフィーダ
機械前側図
機械前側図機械前側図
機械前側図
図
図図
図 4-7-3-4
供給角度説明例図
供給角度説明例図供給角度説明例図
供給角度説明例図
部品供給角度の定義
部品供給角度の定義部品供給角度の定義
部品供給角度の定義
MTC (TR4
、
TR6)、
MTS (TR5)
QFP
0°
トレイホルダ
QFP
0°
スティックフィーダ
SOP
QFJ
270
°
0°
SOP SOP SOP QFJ
QFJ
0°
90
°
270
°
0°
90
°
QFP
QFP
(
PLCC
)
SOP
TSOP-1
TSOP-2
コネクタ
:供給角度を決める
ための視点の方向

4 - 76
4)
バルクが選択された場合
バルクが選択された場合バルクが選択された場合
バルクが選択された場合
①
タイプ
バルクフィーダのタイプをコンボボックスで設定します。
②
フィード待ち時間
部品を吸着後、次の部品が吸着可能となるまでの待ち時間を入力します。
各タイプにより設定された値があり、この設定値に対しての
%
で指定します。
③
部品供給角度
部品の供給角度をラジオボタンで指定します。
荷姿 センタリング 付加情報 拡張 検査 塗布