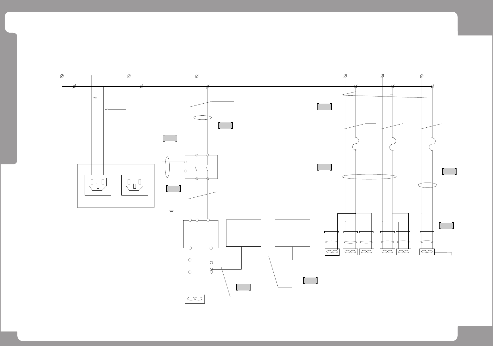
SM482PLUS_TRM(Ver2.7_CS21.02) - 第191页
Page +$1:+$ 191 Power Block Diagram(4/8) SM482 PLUS NO. P ART NO. P ART NAME Q'TY Old No. Supply Supply L T Reference 1 AM03-006903A CABLE ASSY -CONTROL_RACK _PWR 1 SM48_PW145 2 AM03-006904A CABLE ASSY -CONTROL_RACK…

Page
+$1:+$
190
SM482
PLUS
Power Block Diagram(4/8)
* UPS사용시만결선
* UPS사용시결선변경
AM03-020599B
AM03-020595B
AM03-020595B
AM03-014757A
AM03-014756A
AM03-017244B
AM03-017245C
J90833316A
AM03-020587A
2
2 2 2
2
DC POWER(350W)
(12V)
(GND)
AC IN
5/3.3/12/-12/VDC
PE03
2
2
2
SM33_PW026
FROM CP1
1L2
1L1
AC220V
OUTLETINLET
UPS OPTION INSTALL
-UPS
(1600VA)
1L1 1L2
0.75mm(BLK)
912
58
RY 11
SC-CN24
+24V
24G
SM48C_PW044
14
13
SM48C_PW145-1
0.75mm
(RIGHT SIDE)
-FAN1
-FUSE5 (AC250V,5A)
-FAN2
0.75mm
1L1 1L2(F3) 1L1
0.75mm
1L1 1L2
-FUSE3 (AC250V,5A)
-FAN3
(LEFT SIDE)
-FAN4
1L1
1L1
1L2(F4)
-FUSE4 (AC250V,5A)
1L2
(SERVO DRIVER RACK)
-FAN5
1L2(F5)
1L21L1
SM-FAN00
SM471_PW112_LT
-PUMP
TO FRONT
1.5mm(BLK)
PC RACK
POWER SUPPLY
(SM48C_PW021)
(SM48C_PW022)
0.5mm(BLK)
0.5mm(BLK)
RACK FAN
0.6A(Max 1.2A)
MONITOR
TO REAR
MONITOR
0.75mm
0.1A
0.1A
0.1A
0.1A
0.1A
0.1A
SM48_PW113_LT
SM48_PW113_LT
6A
6C
1A
1C
1A1A
6A
1A1A
B
AA
B
6D
1B
A
2B
7D
B
8D
3B
(SM482_PW000_LT)
2
1
3
4
5
6
7
8
9

Page
+$1:+$
191
Power Block Diagram(4/8)
SM482
PLUS
NO. PART NO. PART NAME Q'TY Old No. Supply Supply LT Reference
1 AM03-006903A CABLE ASSY-CONTROL_RACK_PWR 1 SM48_PW145
2 AM03-006904A CABLE ASSY-CONTROL_RACK_PWR-EXT 1 SM48_PW145-1
3 AM03-017244B CABLE ASSY-FRONT_MONITOR_PW_12V 1 AM03-006894A / AM03-017244A SM48_PW021
4 AM03-006895A CABLE ASSY-REAR_MONITOR_PW 1 SM48_PW022
5 AM03-005488A CABLE ASSY-FAN_POWER 1 SM471_PW112
6 AM03-020595B CABLE ASSY-TB-FS/CP/MC;B 1 SM48_PW113_LT

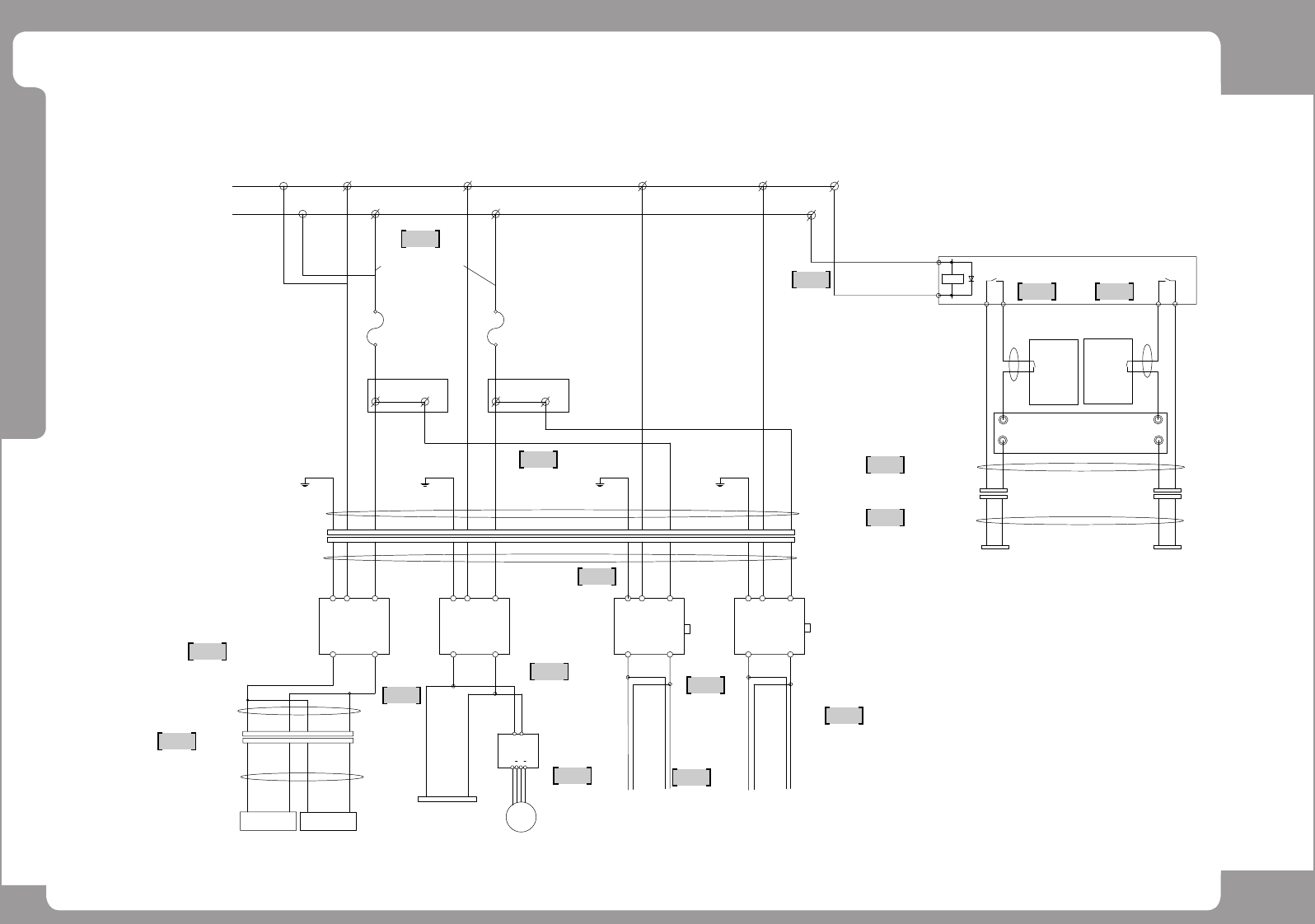
Page
+$1:+$
192
SM482
PLUS
Power Block Diagram(5/8)
AM03-020599B
AM03-020595B
AM03-014499B
AM03-014495A
AM03-014497A
AM03-014501B
AM03-014592A
AM03-019692A
AM03-014482B AM03-014484B
AM03-014485B
AM03-014489B
AM03-014497A
AM03-014501B
AM03-020585A
AM03-011481A
DC POWER(400W)
(+)
PE06
(-)
AC IN
24VDC
DC POWER(400W)
(-)
24VDC
(+)
AC IN
PE07
DC POWER(800W)
(-)
24VDC
(+)
AC IN
DC POWER(800W)
(-)
24VDC
(+)
AC IN
PE06-1 PE07-1
2
2
2
2
2
2
2
PS4
REMOTE CON
PS3
REMOTE CON
M
WD-AXIS
DRIVER
A
A
+
-
B
B
2~
-M1
2
CN13
F FEEDER
IO B/D
CN13
R FEEDER
IO B/D
REMOTE CON
PS3
REMOTE CON
PS4
1L2
1L1
AC220V
FROM CP1
1L21L1
-FUSE1 (AC250V,10A)
SC-CN1
+24V 24G
+24V
24G
-FUSE2 (AC250V,10A)
1L1 1L2
-PS2
24G
-PS3
+24V
-PS1
SM48C_PW111
T1L
A1
A2
(CONN)
A5
A3
A6
SM48C_PW201
SM48C_PW112
+24V
SM48_PW113_LT
A2
A1
A4A3
T2L
(CONN)
SC-CN2
SM48C_PW202
SM48C_PW027
-PS4
Z-DRV-PWR
B1 B2
B4 B5
B3
B6
TO FRONT
0.75mm(BLK)
0.75mm(BLK)
0.75mm(BLK)
A4
RY1
7
8
0.5mm(BLK)
0.8mm(BLK)
0.5mm(BLK)
0.5mm(BLK)
A1
A2
A5
A3
A6
B1 B2
B4 B5
B3
B6
A4
A2
A1
A4A3
1,2
3,4
1,2
3,4
SM48C_FD004
SM48C_FD005
FEEDERBASE
24G
TO REAR
FEEDERBASE
6A(Max 16A)
6A(Max 16A)
6A(Max 16A)
SM482_PW018-1
0.5mm(BLK)
A1
B1
GENERAL IO/R STEP/CONV STEP
5
3
1A
1B
4
6
2A
2B
SM48C_FD006
SM48C_FD007
SM48C_PW112
SM48C_PW202
01
02
01
02
B1
B2
B3
B4
B3
B4
B1
B2
-TB2
05
01
SM48_FD002_LT
05
01
SM48C_FD003
4A1B
6D
F1A
F1-C
9C
F2-C
10C
4B 5B5A
F1B
F2A
F2B
4C
9A
(SM482_PW000_LT)
1
4
6
2
3
5
7
9
10
8
11
12
13 14
15
16