DECAN_F2_TRM(Ver5.4_CS15.49) - 第195页
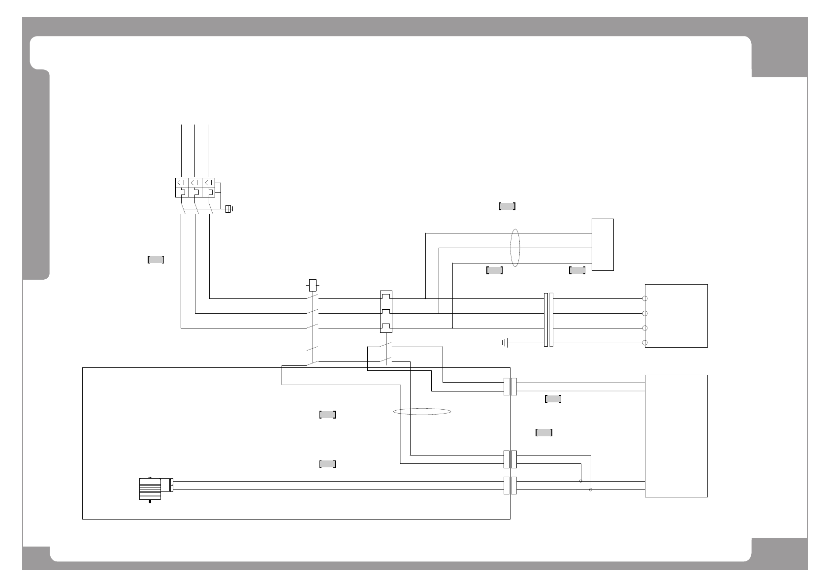
Page HANWHA TECHWIN 191 DECAN F2 Electric Power (6/9) NO. P ART NO. P ART NAME Q'TY Old No. Supply Supply L T Reference 1 AM03-014909 A CABLE ASSY -MC_INPUT_220V 1 AM03-00550 9A 2 AM03-014907A CABLE ASSY -PUMP_PWR_A…

Page
HANWHA TECHWIN
190
DECAN
F2
Electric Power (6/9)
1
5
2
3 4
7
8
6
-MC2
(TH-N12)
VACUUM
PUMP
SK
AM03-010925A
SM511-PW041
SM511_PW42-1
3P-C16
-CP3
CV-CN12
SM511_PW146-1
SM511_PW146
CV-CN15
AM03-010943A
AM03-010942C
SM511_PW040
SM511_PW147-1
AM03-010940A
AM03-010941A
SM511_PW147
AM03-010926A
AM03-010927A
SM471_PW042
AM03-005511A
1
3
5
2
4
6
2
4
6
97
95
98
96
13
A1
14
A2
135
246
1
2
3
4
3
5
U
V
W
PE
1
3
+24V
HD MAIN AIR
VACUUM AIR SOL CONNECTOR
VACUUM PUMP ALARM
GND
VACUUM PUMP ALARM
GND
+24V
VACUUM PUMP PWR
PE3
< OPTION >

Page
HANWHA TECHWIN
191
DECAN
F2
Electric Power (6/9)
NO. PART NO. PART NAME Q'TY Old No. Supply Supply LT Reference
1 AM03-014909A CABLE ASSY-MC_INPUT_220V 1 AM03-005509A
2 AM03-014907A CABLE ASSY-PUMP_PWR_ALARM-EXT 1 AM03-005701A
3 AM03-010940A CABLE ASSY-VACUUM_PWR 1
4 AM03-014851A CABLE ASSY-SK 1 AM03-005510A
5 AM03-014906A CABLE ASSY-VACUUM_PUMP_PWR_EXT 1 AM03-005767A
6 AM03-014905A CABLE ASSY-VACUUM_PUMP_220V 1 AM03-005511A/ AM03-005511B
7 AM03-005700A CABLE ASSY-PUMP_PWR_ALARM 1
8 AM03-005699A CABLE ASSY-VACUUM_EJECTOR_PWR 1

Page
HANWHA TECHWIN
192
DECAN
F2
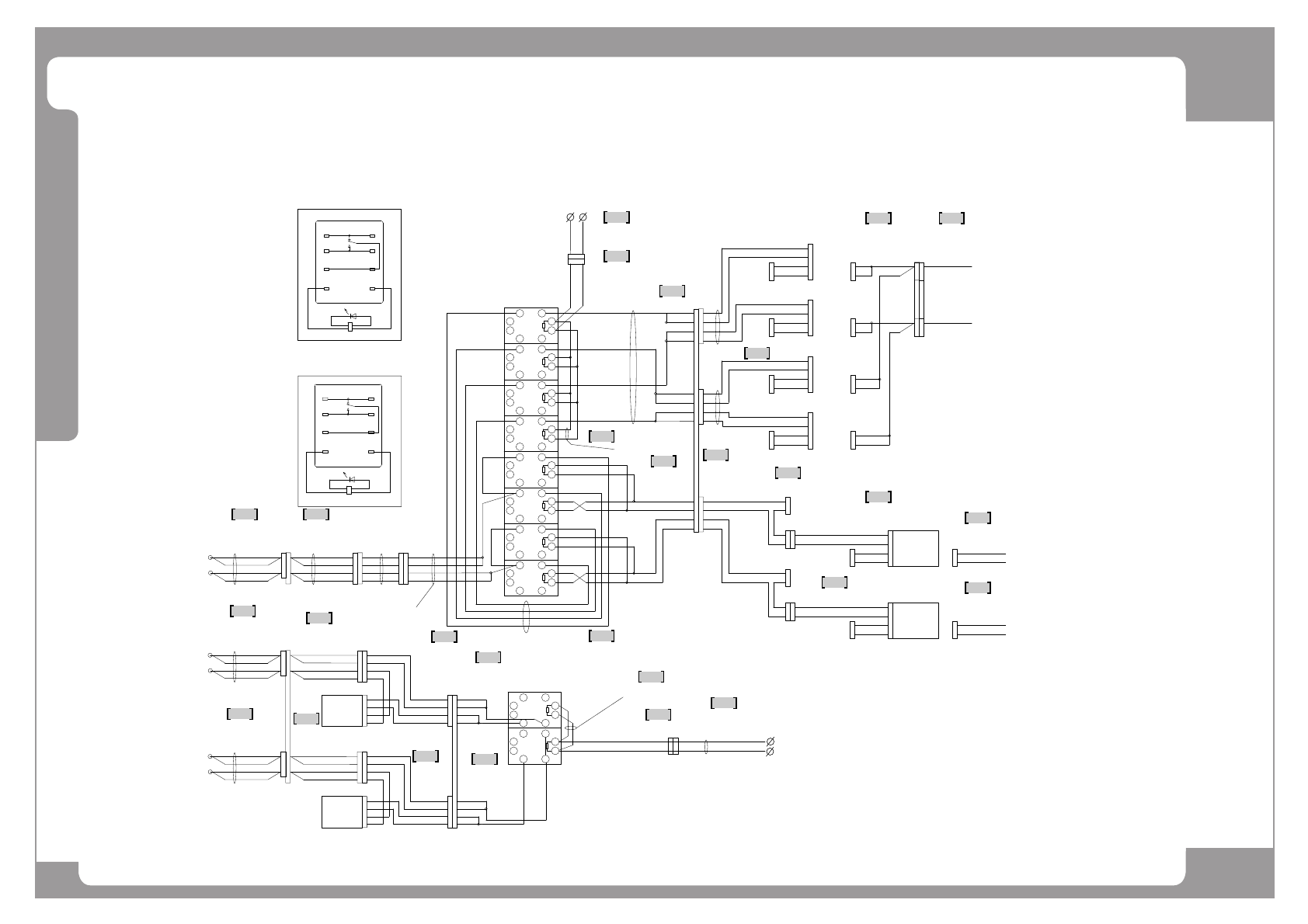
Electric Power (7/9)
1
3
3
4
6
4
5
7
7
7
8
10
10
11
9
11
12
13
2 1
14
15
16
17
17
16
7
2
SM41_PW034
SM511_PW032
J90834654A
SM511_FD013
AM03-005463A
SM471_PW006
SM511_PW149-1
SM471_FD008
SM511_PW207
1
3
5
7
2
4
6
8
LY1N AC RELAY(AC220V)
RY1~RY2,RY7~RY10
1
3
5
7
2
4
6
8
LY1N DC RELAY(DC24V)
RY3~RY6
(+)
(-)
SM511_PW149-1SM511_PW149
SM511_PW149
SM511-PW149
SM511_PW149-1
SM511_PW148
AM03-011267A
AM03-011268A
SM511_PW148
SM511_PW033
SM511_PW207 SM511_PW103
SM511_PW202
SM511_PW202
SM411N_FD001
SM411N_FD001
SM_FD003
SM_FD003
SM511_PW103
SM511_PW127
SM511_PW127
SM511_PW148
SM511_PW148
AM03-011275AAM03-011274A
AM03-011273A
AM03-011273A
AM03-011270A
AM03-011272A
AM03-010945A
AM03-010945A
AM03-010938A
AM03-010938A
AM03-010946AAM03-010930A
AM03-011275A
AM03-011274A
AM03-011273A
AM03-011269A
AM03-005697A
AM03-011273A
EP02-000588A
EP02-000588A
J90800838D
J90800838D
AM03-010946A AM03-010930A
SM511_FD010
SM511_FD011
2C
7C
4C
9A
12
4 3
6
87
5
RY1
12
4 3
6
87
5
RY2
AC220VH
AC220VN
12
4 3
6
87
5
RY3
12
4 3
6
87
5
RY4
12
4 3
6
87
5
RY5
12
4 3
6
87
5
RY6
12
4 3
6
87
5
RY7
12
4 3
6
87
5
RY8
12
4 3
6
87
5
RY9
12
4 3
6
87
5
RY10
+24V
24G
+24V
+24V
+24V
24G-EX-4
+24V
+24V
AC220VH
AC220VN
1
2
RELAY-BK2
1
2
34
34
16
15
RELAY-BK2
16
15
14 14
13 13
4
3
T7L-6/8
4
3
22
11
+24V
+24V
A1
B1
RELAY-BK1-1
A1
B1
1
3
R-FB-R
2
4
1
2
+24V
+24V
24G
24G
24G-EX-2
1
3
F-FB-R
2
4
1
2
+24V
+24V
24G
24G
24G-EX-3
1
3
R-FB-L
2
4
1
2
+24V
+24V
24G
24G
24G-EX-1
1
3
F-FB-L
2
4
1
2
+24V
+24V
24G
24G
A2 A2
B2 B2
A3
B3
RELAY-BK1-2
A1
B1
A4 A2
B4 B2
+24V
A5
B5
A1
B1
A6 A2
B6 B2
RELAY-BK1-3
1
5
1
2
1
2
R-FD-CN13
+24V
24G
+24V
24G
FD-CN13-EX
+24V
24G
1
5
1
2
1
2
F-FD-CN13
+24V
24G
+24V
24G
FD-CN13-EX
1
5
RFD-CN7
1
5
+24V
24G
+24V
24G
2~4
6~12
2~4
6~12
FD-CN7-EX
FD-CN7-EX
FFD-CN7
A1
B1
RELAY-BK1-4
A7
B7
A2 A8
B2 B8
+24
+24
SC-CN2
1
2
24G 3
24G 4
+24
+24
SC-EN2
1
2
24G3
24G4
+24V
+24V
+24V
+24V
A1
B1
RELAY-BK1-5
A9
B9
A2 A10
B2 B10
+24
+24
SC-CN1
1
2
24G 3
24G 4
+24
+24
SC-EN1
1
2
24G3
24G4
+24V
+24V
+24V
+24V
24G-EX-4
1
2
24G-EX-2
1
2
24G-EX-3
1
2
24G-EX-1
1
2
T7L
7
5
7
5
PS6-24G
PS5-24G
1
2
3
4
1
2
3
4
+24
+24
24G
24G
+24
+24
24G
24G
FD-CN7-EX
FD-CN7-EX
(tO Front FEEDER BASE B/D)
(tO Rear FEEDER BASE B/D)
1370mm
2350mm
PS6+24V
PS5+24V
8
T7L
6
8
6
+24V
+24V
+24V
+24V
PS2+24V
PS5-24G
9
T6L
10
9
10
+24V
24G
+24V
24G
PS1+24V
PS1-24G
7
8
7
8
+24V
24G
+24V
24G