DECAN_F2_TRM(Ver5.4_CS15.49) - 第168页
Page HANWHA TECHWIN 164 DECAN F2 Air (5/6)

Page
HANWHA TECHWIN
163
DECAN
F2
Air (4/6)
NO. PART NO. PART NAME Q'TY Old No. Supply Supply LT Reference
1 HP09-000150 SPABT-P10-R18-2N-K1-SA 1
2 HP06-900056 KQ2L04-01 1
3 HP06-900026 KQ2L12-04 1
4 HP06-000278 FITTING_QS-E-M5-4-I-C 1
5 HP06-900043 FITTING KQ2F04-01 1
6 TE07-900096 METER GZ46-K-01-C1 1
7 HP09-900112 TAR4000-04 1
8 HP06-900026 KQ2L12-04 1
9 HP06-900195 SQU06-00-W 1
10 HP09-900123 AR08-T2-DOMO-J346A 1
11 HP06-900271 BUYD06-04 1
12 HP06-900027 KQ2L04-M5 1

Page
HANWHA TECHWIN
164
DECAN
F2
Air (5/6)

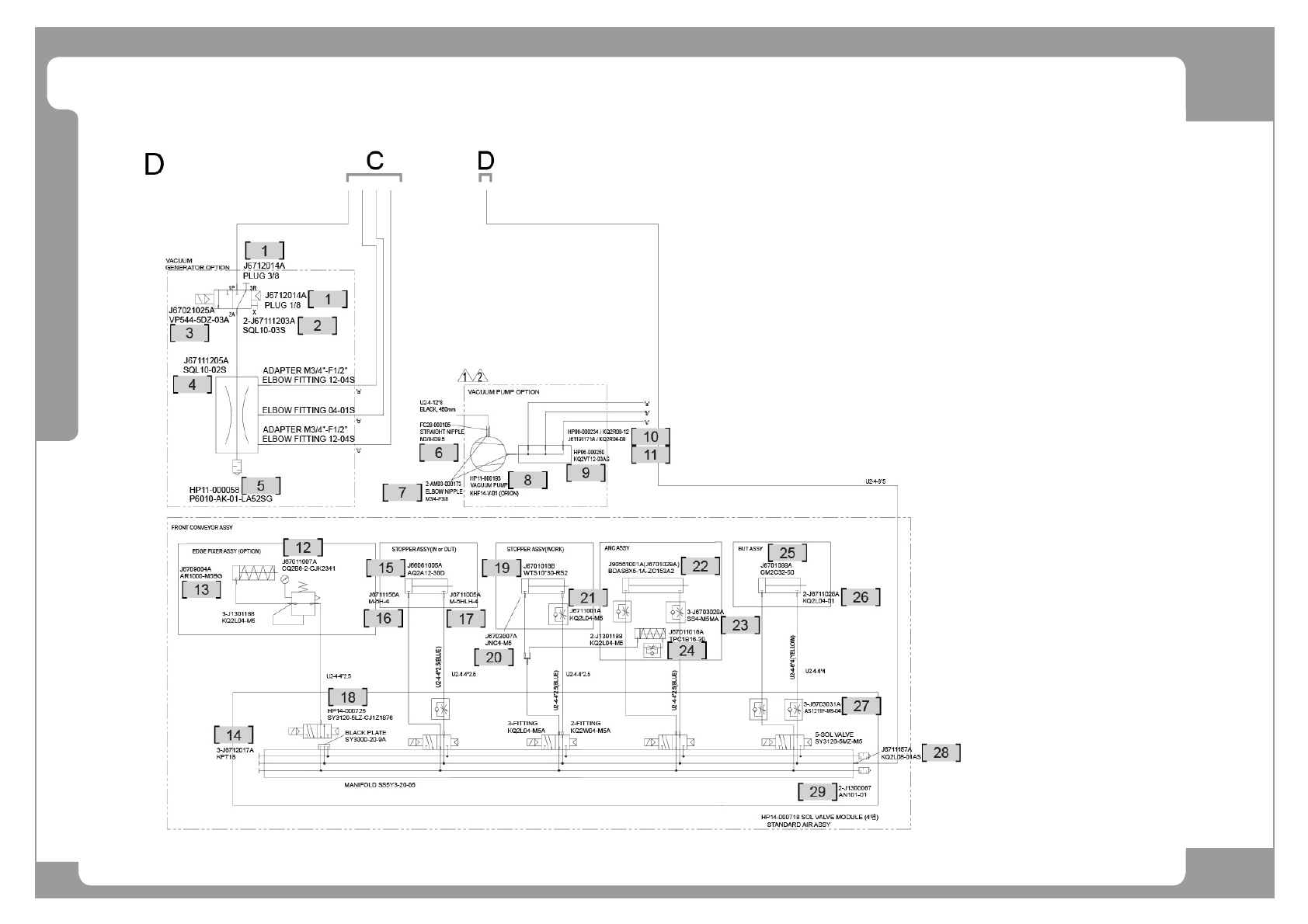
Page
HANWHA TECHWIN
165
DECAN
F2
Air (5/6)
NO. PART NO. PART NAME Q'TY Old No. Supply Supply LT Reference
1 FC14-900725 PLUG 3/8 2
2 HP06-900202 SQL10-03S 1
3 HP14-900045 VP544-5DZ-03A 1
4 HP06-900204 SQL10-02S 1
5 HP11-000058 P6010-AK-01-LA52SG 1
6 FC28-000105 STRAIGHT NIPPLE 1
7 AM03-000173 ELBOW NIPPLE 1
8 HP11-000193 VACUUM PUMP 1
9 HP06-000250 KQ2VT12-03AS 1
10 HP06-000234 KQ2R08-12 1
11 HP06-900046 KQ2R04-08 1
12 HP03-900044 CQ2B6-2-CJK2341 1
13 HP09-900110 AR1000-M5BG 1
14 FC14-900640 KPT18 1
15 HP03-001008 AQ2A12-30D 1 HP03-900009
16 HP06-900263 M-5H-4 1
17 AM02-900001 M-5HLH-4 1
18 HP14-000725 SY3120-5LZ-CJ1Z1876 1
19 HP03-900015 WTS10*30-RS2 1
20 HP14-900083 JNC4-M5 1
21 HP06-900027 FITTING [KQ2L04-M5/PL4-M5M/SQL04-M5] 1 HP06-900047
22 J90561001A BDAS6X5-1A-ZC153A2 1
23 HP14-900085 3-SS4-M5MA 1
24 HP03-900053 TPC1B16-30 1
25 HP03-900040 CM2C32-50 1
26 2-HP06-900056 KQ2L04-01 1
27 HP14-900088 AS1211F-M5-04 1
28 HP06-900264 KQ2L08-01AS 1
29 HP09-900158 AN101-01 1