PTS-NXT-10JE - 第245页
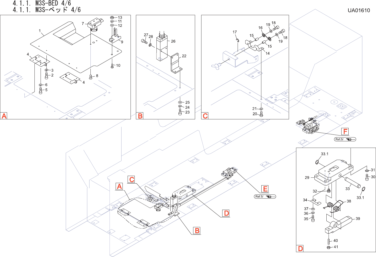
4.1.1.M3S-BED4/6 4.1.1 .M3S -ベッド 4/6 UA01610 No. Drg.No.&CodeNo. Q TY Description Rating Materials Remarks 番号 図番 &コード 番号 個数 品名 規格 材質 備考 1 PB12685 1 COVER,LOWER カバー 下 FE 2 H5274A 4 B OLT,HEXSOCKET ボル…

4.
MODULE
/
モジュール
244
PTS-NXT-10JE
Vol.1

4.1.1.M3S-BED4/6
4.1.1.M3S-ベッド4/6
UA01610
No. Drg.No.&CodeNo. QTY Description Rating
Materials
Remarks
番号 図番&コード番号 個数 品名 規格 材質 備考
1 PB12685 1 COVER,LOWER カバー下 FE
2 H5274A 4 BOLT,HEXSOCKET ボルト六角穴 M03X006 FE
3 W1021A 4 WASHER,LOCK ワッシャスプリング 3M/M FE
4 T2125C 2 HINGE 蝶番 TH-61SUS-3 OT
5 H5274A 4 BOLT,HEXSOCKET ボルト六角穴 M03X006 FE
6 W1021A 4 WASHER,LOCK ワッシャスプリング 3M/M FE
7 T3005S 1 KNOB ツマミ TL-223 OT
8 K5357T 2 SCREW,HEXSOCKETCOUNTERSUNK 小ネジ六角穴皿 M03X008 FE
9 S3203T 1 SW,LIMIT SWリミット LJH-X5 OT
10 K5257H 2 SCREW,HEXSOCKETBUTTON 小ネジ六角穴ボタン M04X012 FE
11 W1022A 2 WASHER,LOCK ワッシャスプリング 4M/M FE
12 W1043A 2 WASHER,FLAT ワッシャ平 4W-4 FE
13 N1080A 2 NUT,HEX ナット六角 M4P=0.7 FE
14 PB00511 1 BKT BKT FE
15 PM52591 2 COLLAR カラー FE
16 S3280A 1 SPRING スプリング TL-261 OT
17 S1025A 1 CIR-CLIP サークリップ ST-EW-7 FE
18 H5278A 2 BOLT,HEXSOCKET ボルト六角穴 M03X015 FE
19 W1021A 2 WASHER,LOCK ワッシャスプリング 3M/M FE
20 K5257A 2 SCREW,HEXSOCKETBUTTON 小ネジ六角穴ボタン M04X008 FE
21 W1022A 2 WASHER,LOCK ワッシャスプリング 4M/M FE
22 PB00454 1 BKT,SW BKTSW FE
23 H5288A 2 BOLT,HEXSOCKET ボルト六角穴 M04X010 FE
24 W1022A 2 WASHER,LOCK ワッシャスプリング 4M/M FE
25 W1043A 2 WASHER,FLAT ワッシャ平 4W-4 FE
26 XS00590 1 SW,LIMIT SWリミット LJH-D21 OT
27 H5290A 2 BOLT,HEXSOCKET ボルト六角穴 M04X015 FE
28 W1011A 2 WASHER,CONICAL ワッシャ皿 M-4-L FE
29 PT00283 1 BKT,BASE BKTベース FE
30 H5322A 4 BOLT,HEXSOCKET ボルト六角穴 M06X015 FE
31 W1013A 4 WASHER,CONICAL ワッシャ皿 M-6-H FE
32 H20230 1 PIN,STOPPER ピンストッパ STEHN10 OT
33 PM52521 1 PIN ピン FE
33.1 S1031A 2 CIR-CLIP サークリップ STW10 OT
34 PP01641 1 PLATE プレート FE
35 H5275A 2 BOLT,HEXSOCKET ボルト六角穴 M03X008 FE
36 W1021A 2 WASHER,LOCK ワッシャスプリング 3M/M FE
37 W1040R 2 WASHER,FLAT ワッシャ平 3M/MX0.5X7(1W-3)(3カクロ) FE
4.
MODULE
/
モジュール
245
PTS-NXT-10JE
Vol.1

4.1.1.M3S-BED4/6
4.1.1.M3S-ベッド4/6
UA01610
No. Drg.No.&CodeNo. QTY Description Rating
Materials
Remarks
番号 図番&コード番号 個数 品名 規格 材質 備考
38 PZ00231 1 SPRING,TORSION スプリングネジリ FE
39 PT00171 1 LEVER レバー FE
40 PM52472 1 BOLT ボルト FE
41 N1084C 1 NUT,HEX ナット 六角 M6P=1.03シュ(3カクロ) FE
4.
MODULE
/
モジュール
246
PTS-NXT-10JE
Vol.1