PTS-NXT-10JE - 第331页
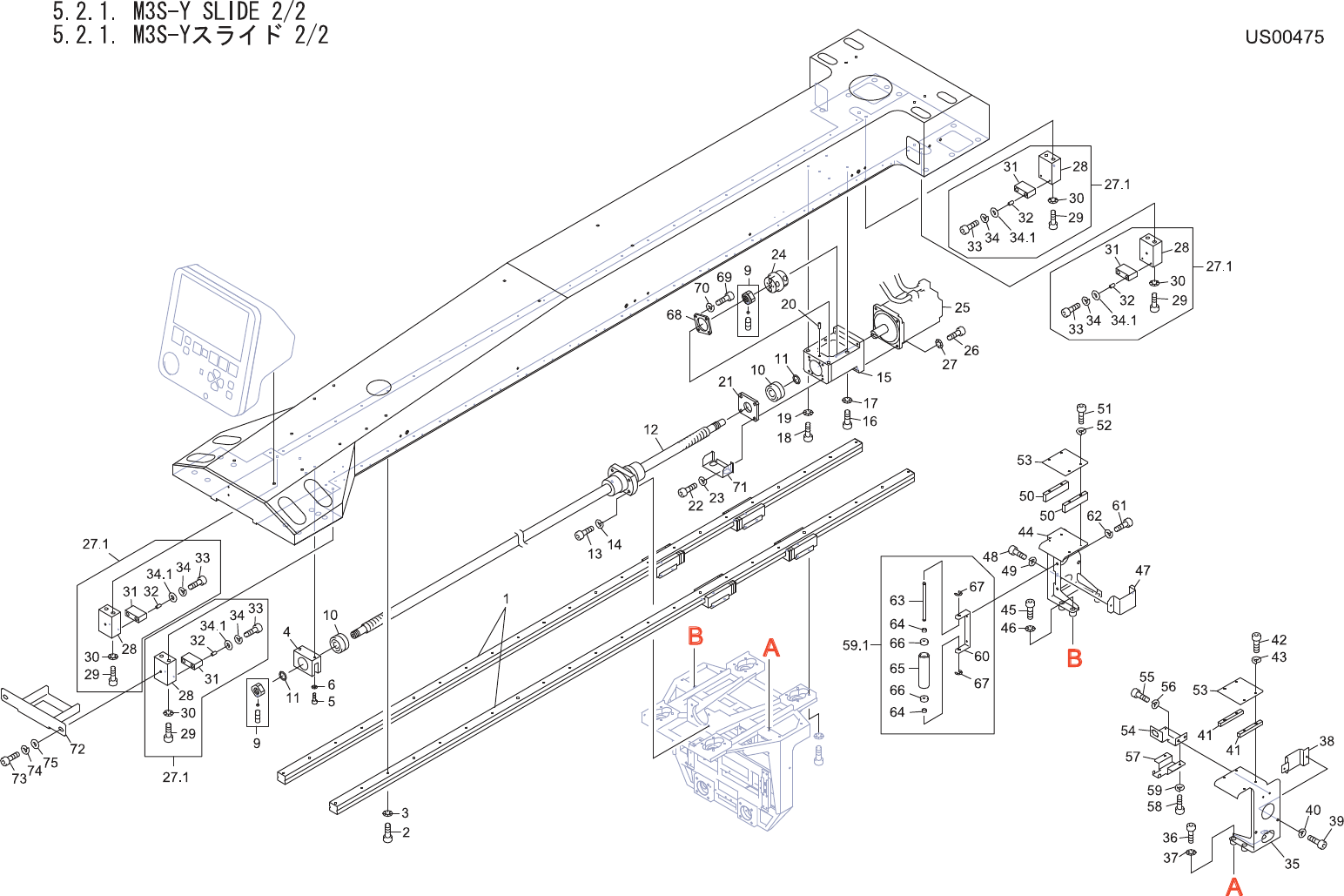
5.2.1.M3S-YSLIDE2/2 5.2.1 .M3S -Yスライ ド2/2 US00475 No. Drg.No.&CodeNo. Q TY Description Rating Materials Remarks 番号 図番 &コード 番号 個数 品名 規格 材質 備考 1 XG00412 2 GUIDE,RAIL ガイド レー ル OT 2 H5263B 46 B OLT,HEX…

5.
XY-ROBOT
/
XYロボット
330
PTS-NXT-10JE
Vol.1

5.2.1.M3S-YSLIDE2/2
5.2.1.M3S-Yスライド2/2
US00475
No. Drg.No.&CodeNo. QTY Description Rating
Materials
Remarks
番号 図番&コード番号 個数 品名 規格 材質 備考
1 XG00412 2 GUIDE,RAIL ガイドレール OT
2 H5263B 46 BOLT,HEXSOCKET ボルト六角穴 M04X016 FE
3 W1011A 46 WASHER,CONICAL ワッシャ皿 M-4-L FE
4 PM00146 1 HOLDER,BEARING ホルダベアリング FE
5 H5303A 2 BOLT,HEXSOCKET ボルト六角穴 M05X022 FE
6 W1012A 2 WASHER,CONICAL ワッシャ皿 M-5-L FE
9 N1039A 2 NUT,LOCK ナットロック WBK12L-01 OT
10 H4209W 2 BEARING ベアリング 7001ATYNDBMP5 OT
11 PM00040 2 COLLAR カラー FE
12 XB00713 1 BALLSCREW ボールネジ OT
13 H5301A 4 BOLT,HEXSOCKET ボルト六角穴 M05X018 FE
14 W1023A 4 WASHER,LOCK ワッシャスプリング 5M/M FE
15 PM41704 1 BKT,MOTOR BKTモータ FE
16 H5307A 2 BOLT,HEXSOCKET ボルト六角穴 M05X040 FE
17 W1012A 2 WASHER,CONICAL ワッシャ皿 M-5-L FE
18 H5302A 2 BOLT,HEXSOCKET ボルト六角穴 M05X020 FE
19 W1012A 2 WASHER,CONICAL ワッシャ皿 M-5-L FE
20 H2094M 1 PIN,PARALLEL ピン平行 ゚5X14Bシュ OT
21 PM41751 1 RETAINER,BEARING 押えベアリング FE
22 H5300A 4 BOLT,HEXSOCKET ボルト六角穴 M05X015 FE
23 W1023A 4 WASHER,LOCK ワッシャスプリング 5M/M FE
24 XK00380 1 COUPLING カップリング OT
25 XM00222 1 MOTOR,ACSERVO モータACサーボ OT
26 H5300A 4 BOLT,HEXSOCKET ボルト六角穴 M05X015 FE
27 W1012A 4 WASHER,CONICAL ワッシャ皿 M-5-L FE
27.1 AA12207 4 STOPPER ストッパ OT
28 PM00072 4 BLOCK,STOPPER ブロックストッパ FE
29 H5330A 8 BOLT,HEXSOCKET ボルト六角穴 M06X040 FE
30 W1013A 8 WASHER,CONICAL ワッシャ皿 M-6-H FE
31 PG01060 4 STOPPER ストッパ PL
32 PM40601 8 COLLAR カラー FE
33 H5278A 8 BOLT,HEXSOCKET ボルト六角穴 M03X015 FE
34 W1021A 8 WASHER,LOCK ワッシャスプリング 3M/M FE
34.1 W1040A 8 WASHER,FLAT ワッシャ平 3M/MX0.5X7 FE
35 PB16403 1 BKT,WIRING BKT配線 FE
36 H5289A 3 BOLT,HEXSOCKET ボルト六角穴 M04X012 FE
37 W1011A 3 WASHER,CONICAL ワッシャ皿 M-4-L FE
38 PB16420 1 RETAINER,WIRING 押え配線 FE
5.
XY-ROBOT
/
XYロボット
331
PTS-NXT-10JE
Vol.1

5.2.1.M3S-YSLIDE2/2
5.2.1.M3S-Yスライド2/2
US00475
No. Drg.No.&CodeNo. QTY Description Rating
Materials
Remarks
番号 図番&コード番号 個数 品名 規格 材質 備考
39 H5287A 2 BOLT,HEXSOCKET ボルト六角穴 M04X008ゼンネジ FE
40 W1022A 2 WASHER,LOCK ワッシャスプリング 4M/M FE
41 PB16541 2 SPACER スペーサ AL
42 H5289N 4 BOLT,HEXSOCKET ボルト六角穴 M04X014 FE
43 W1022A 4 WASHER,LOCK ワッシャスプリング 4M/M FE
44 PB16433 1 BKT,WIRING BKT配線 FE
45 H5289A 3 BOLT,HEXSOCKET ボルト六角穴 M04X012 FE
46 W1011A 3 WASHER,CONICAL ワッシャ皿 M-4-L FE
47 PB16451 1 RETAINER,WIRING 押え配線 FE
48 H5287A 2 BOLT,HEXSOCKET ボルト六角穴 M04X008ゼンネジ FE
49 W1022A 2 WASHER,LOCK ワッシャスプリング 4M/M FE
50 PM28912 2 SPACER スペーサ AL
51 H5293A 4 BOLT,HEXSOCKET ボルト六角穴 M04X025 FE
52 W1022A 4 WASHER,LOCK ワッシャスプリング 4M/M FE
53 PB16411 2 RETAINER,WIRING 押え配線 FE
54 PB00170 1 BKT BKT FE
55 H5287A 2 BOLT,HEXSOCKET ボルト六角穴 M04X008ゼンネジ FE
56 W1022A 2 WASHER,LOCK ワッシャスプリング 4M/M FE
57 PB00081 1 BKT,RETAINER BKT押え FE
58 H5273A 2 BOLT,HEXSOCKET ボルト六角穴 M03X005 FE
59 W1021A 2 WASHER,LOCK ワッシャスプリング 3M/M FE
59.1 AA69005 1 ROLLER ローラ OT
60 PB14412 1 BKT,ROLLER BKTローラ FE
61 H5286A 2 BOLT,HEXSOCKET ボルト六角穴 M04X006 FE
62 W1022A 2 WASHER,LOCK ワッシャスプリング 4M/M FE
63 PM24712 1 PIN ピン FE
64 PM24721 2 COLLAR カラー FE
65 PJ02451 1 ROLLER ローラ PL
66 H41305 2 BEARING ベアリング 695ZZ OT
67 S1022A 2 CIR-CLIP サークリップ ST-EW-4 OT
68 PM41990 1 RETAINER,BEARING 押えベアリング FE
69 H5288A 4 BOLT,HEXSOCKET ボルト六角穴 M04X010 FE
70 W1011A 4 WASHER,CONICAL ワッシャ皿 M-4-L FE
71 PB33860 1 COVER カバー FE
72 PB64880 1 COVER カバー FE
73 H5299A 2 BOLT,HEXSOCKET ボルト六角穴 M05X012 FE
74 W1023A 2 WASHER,LOCK ワッシャスプリング 5M/M FE
75 W1044A 2 WASHER,FLAT ワッシャ 平 4W-5 FE
5.
XY-ROBOT
/
XYロボット
332
PTS-NXT-10JE
Vol.1