PTS-NXT-10JE - 第334页
5. XY-ROBOT / XYロボット 334 PTS-NXT-10JE Vol.1

This page intentionally blank.
5.
XY-ROBOT
/
XYロボット
333
PTS-NXT-10JE
Vol.1

5.
XY-ROBOT
/
XYロボット
334
PTS-NXT-10JE
Vol.1

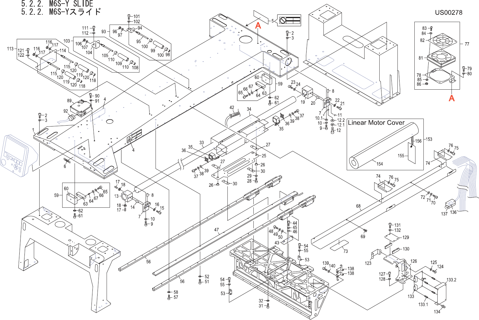
5.2.2.M6S-YSLIDE
5.2.2.M6S-Yスライド
US00278
No. Drg.No.&CodeNo. QTY Description Rating
Materials
Remarks
番号 図番&コード番号 個数 品名 規格 材質 備考
1 PM90995 1 FRAME フレーム FE
2 H5341A 22 BOLT,HEXSOCKET ボルト六角穴 M08X020 FE
3 W1025A 22 WASHER,LOCK ワッシャスプリング 8M/M FE
4 PZ25260 2 SEAL シール PL
5 PZ28441 1 SEAL シール PL
6 PX01500 1 SEAL,BARCODE シールバーコード OT
7 PM91183 2 BKT BKT FE
8 H2095W 4 PIN,PARALLEL ピン平行 ゚8X18(Aシュ) OT
9 H5326A 4 BOLT,HEXSOCKET ボルト六角穴 M06X025ゼンネジ FE
10 W1024A 4 WASHER,LOCK ワッシャスプリング 6M/M FE
10.1 W1045A 4 WASHER,FLAT ワッシャ平 4W-6 FE
11 EEBR1791 1 SEAL シール OT
12 H5297A 1 BOLT,HEXSOCKET ボルト六角穴 M05X008 FE
12.1 W1023A 1 WASHER,LOCK ワッシャスプリング 5M/M FE
12.2 W1050A 1 WASHER,FLAT ワッシャ平 5M/MX1.0X10(1W-5) FE
13 PM91201 1 HOLDER ホルダ FE
15 H5321A 2 BOLT,HEXSOCKET ボルト六角穴 M06X012 FE
16 W1013A 2 WASHER,CONICAL ワッシャ皿 M-6-H FE
17 N4103C 4 SCREW,HEXSOCKETSET ネジ六角穴止め SBCP5-12 FE
18 N1085A 4 NUT,HEX ナット六角 M6P=1.0 FE
19 PM91193 1 CLAMPER クランパ FE
21 H5321A 2 BOLT,HEXSOCKET ボルト六角穴 M06X012 FE
22 W1013A 2 WASHER,CONICAL ワッシャ皿 M-6-H FE
23 H5304A 2 BOLT,HEXSOCKET ボルト六角穴 M05X025 FE
24 W1023A 2 WASHER,LOCK ワッシャスプリング 5M/M FE
25 PB58652 1 PLATE,JOINT プレートジョイント FE
26 PJ08541 4 COLLAR カラー PL
27 PJ10131 2 SPACER スペーサ PL
28 H57115 4 BOLT,HEXSOCKET ボルト六角穴 M06X020ステンレス FE
29 W1024H 4 WASHER,LOCK ワッシャスプリング 6M/Mステンレス FE
30 PB61182 1 SHIM シム FE BasicShim(t=0.5)Note.1
31 H5321A 4 BOLT,HEXSOCKET ボルト六角穴 M06X012 FE
32 W1013A 4 WASHER,CONICAL ワッシャ皿 M-6-H FE
33 AA5BH04 1 MOTOR,LINEAR モータリニア OT
34 AA5YL06 1 MOTOR,LINEAR モータリニア OT
35 H3013C 2 FAN ファン 109P0424G302 OT
36 K1141R 2 GUARD,FIN ガードフィン 109-059 OT
37 H5283A 8 BOLT,HEXSOCKET ボルト六角穴 M03X035 FE
5.
XY-ROBOT
/
XYロボット
335
PTS-NXT-10JE
Vol.1