PTS-NXT-10JE - 第359页
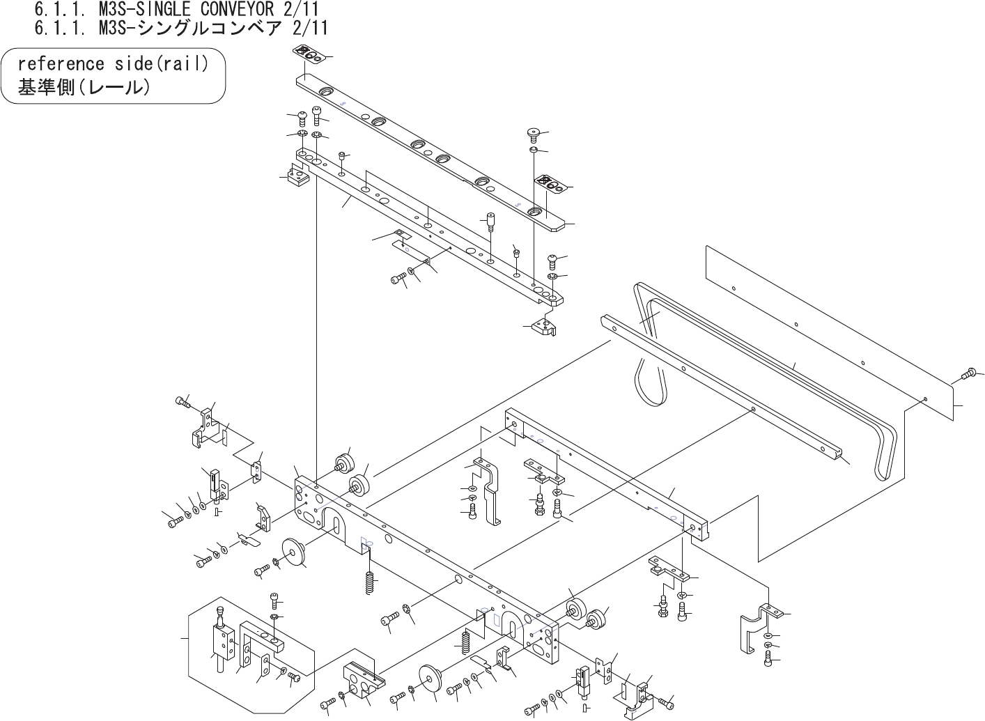
6.1.1.M3S-SINGLECONVEYOR2/11 6.1.1. M3S- シン グルコン ベア2 /11 UQ01460 No. Drg.No.&CodeNo. Q TY Description Rating Materials Remarks 番号 図番 &コード 番号 個数 品名 規格 材質 備考 1 PM83092 1 PLATE,RETAINING プレー ト押 え FE 1.1…

1,
1.1
4
7
8
6
3
2
70
45
53
50
52
51
53
50
52
51
63
64
62
56
55
54
41
39
40
27
38
46
34
35
36
33
9
24
12,
12.1
11
10
14
13
16
18
17
45
48
49
48
49
47
47
30
30.2
30.1
25
26
19,
19.1
71
71
73
74
72
75.1
75.3
75.4
75.5
75.2
30.3
27.2
27.1
27.3
63.1
55.1
50.1
50.2
15
15
23,
23.1
21
22
43
44,
44.1
43
59
60
61
61
58
69
69
68
67
58
77
76
75
44,
44.1
58.1
58.1
UQ01460
6.
CONVEYOR
/
コンベア
18
PTS-NXT-10JE
Vol.2

6.1.1.M3S-SINGLECONVEYOR2/11
6.1.1.M3S-シングルコンベア2/11
UQ01460
No. Drg.No.&CodeNo. QTY Description Rating
Materials
Remarks
番号 図番&コード番号 個数 品名 規格 材質 備考
1 PM83092 1 PLATE,RETAINING プレート押え FE
1.1 PM03AX1 1 PLATE,RETAINING プレート押え FE Thinpaneloption
2 PM01723 6 BOLT ボルト FE
3 PM03470 6 COLLAR カラー FE
4 PM23704 3 PIN,REFERENCE ピン基準 FE
6 PT01224 1 GUIDE ガイド FE
7 K5255T 2 SCREW,HEXSOCKETBUTTON 小ネジ六角穴ボタン M03X006 FE
8 W1010A 2 WASHER,CONICAL ワッシャ皿 M-3-L FE
9 PT01213 1 GUIDE ガイド FE
10 K5255T 2 SCREW,HEXSOCKETBUTTON 小ネジ六角穴ボタン M03X006 FE
11 W1010A 2 WASHER,CONICAL ワッシャ皿 M-3-L FE
12 PM11588 1 RAIL レール FE
12.1 PM41853 1 RAIL レール FE Thinpaneloption
13 H5288A 4 BOLT,HEXSOCKET ボルト六角穴 M04X010 FE
14 W1011A 4 WASHER,CONICAL ワッシャ皿 M-4-L FE
15 H3170B 2 PLUNGER,BALL プランジャボール SBP-4 OT
16 PB11920 1 BKT BKT FE
17 H5274A 2 BOLT,HEXSOCKET ボルト六角穴 M03X006 FE
18 W1021A 2 WASHER,LOCK ワッシャスプリング 3M/M FE
19 PX03040 1 SEAL,BARCODE シールバーコード PL
19.1 PX03990 1 SEAL,BARCODE シールバーコード PL Thinpaneloption
21 PM09102 1 PLATE,CLAMPING プレートクランプ FE
22 K5255A 4 SCREW,HEXSOCKETBUTTON 小ネジ六角穴ボタン M03X004 FE
23 XB01021 1 CONVEYOR,BELT コンベアベルト OT L=960mm
23.1 XB02731 1 CONVEYOR,BELT コンベアベルト OT Thinpaneloption
24 PM11620 1 GUIDE,BELT ガイドベルト AL
25 H5287A 4 BOLT,HEXSOCKET ボルト六角穴 M04X008 FE
26 W1011A 4 WASHER,CONICAL ワッシャ皿 M-4-L FE
27 PB18160 1 HOOK フック FE
27.1 H5275A 2 BOLT,HEXSOCKET ボルト六角穴 M03X008 FE
27.2 W1021A 2 WASHER,LOCK ワッシャスプリング 3M/M FE
27.3 W1040A 2 WASHER,FLAT ワッシャ平 3M/MX0.5X7(1W-3) FE
30 PB18150 1 HOOK フック FE
30.1 H5275A 2 BOLT,HEXSOCKET ボルト六角穴 M03X008 FE
30.2 W1021A 2 WASHER,LOCK ワッシャスプリング 3M/M FE
30.3 W1040A 2 WASHER,FLAT ワッシャ平 3M/MX0.5X7(1W-3) FE
33 PM12151 1 PLATE プレート FE
34 H5275A 2 BOLT,HEXSOCKET ボルト六角穴 M03X008 FE
6.
CONVEYOR
/
コンベア
19
PTS-NXT-10JE
Vol.2

6.1.1.M3S-SINGLECONVEYOR2/11
6.1.1.M3S-シングルコンベア2/11
UQ01460
No. Drg.No.&CodeNo. QTY Description Rating
Materials
Remarks
番号 図番&コード番号 個数 品名 規格 材質 備考
35 W1021A 2 WASHER,LOCK ワッシャスプリング 3M/M FE
36 H55037 1 BOLT ボルト PSST4-15 OT
38 PM12141 1 PLATE プレート FE
39 H5275A 2 BOLT,HEXSOCKET ボルト六角穴 M03X008 FE
40 W1021A 2 WASHER,LOCK ワッシャスプリング 3M/M FE
41 H55037 1 BOLT ボルト PSST4-15 OT
43 ADBPP8012 2 PULLEY プーリ OT
44 AA93002 2 PULLEY プーリ OT
44.1 AA0BZ01 2 PULLEY プーリ OT Thinpaneloption
45 PZ14451 2 SPRING スプリング FE
46 PM11637 1 PLATE,GUIDE プレートガイド FE
47 PM01751 2 GUIDE ガイド FE
48 H5276A 2 BOLT,HEXSOCKET ボルト六角穴 M03X010 FE
49 W1010A 2 WASHER,CONICAL ワッシャ皿 M-3-L FE
50 PM97051 2 BLOCK,LOCATING ブロック位置決め FE
50.1 PB84700 1 BKT BKT FE
50.2 PB84690 1 BKT BKT FE
51 H5275A 4 BOLT,HEXSOCKET ボルト六角穴 M03X008 FE
52 W1021A 4 WASHER,LOCK ワッシャスプリング 3M/M FE
53 W1041F 4 WASHER,FLAT ワッシャ平 ゚3X6コガタヒラザガネ FE
54 PM92392 1 BKT,SENSOR BKTセンサ FE
55 PT01151 1 GUIDE ガイド FE
55.1 PS02472 1 SHEET シート OT
56 H5429N 2 BOLT,HEXSOCKET ボルト六角穴 CBS3-8 FE
58 XS01454 1 SENSOR,FIBER センサファイバ OT SET
58.1 PZ10791 2 TUBE チューブ OT
59 H5274A 2 BOLT,HEXSOCKET ボルト六角穴 M03X006 FE
60 W1021A 2 WASHER,LOCK ワッシャスプリング 3M/M FE
61 W1041F 4 WASHER,FLAT ワッシャ平 ゚3X6コガタヒラザガネ FE
62 PM92402 1 BKT,SENSOR BKTセンサ FE
63 PT01161 1 GUIDE ガイド FE
63.1 PS02472 1 SHEET シート OT
64 H5429N 2 BOLT,HEXSOCKET ボルト六角穴 CBS3-8 FE
67 H5274A 2 BOLT,HEXSOCKET ボルト六角穴 M03X006 FE
68 W1021A 2 WASHER,LOCK ワッシャスプリング 3M/M FE
69 W1041F 4 WASHER,FLAT ワッシャ平 ゚3X6コガタヒラザガネ FE
70 PM92311 1 PLATE プレート FE
71 PZ14130 2 SEAL シール PL
6.
CONVEYOR
/
コンベア
20
PTS-NXT-10JE
Vol.2