PTS-NXT-10JE - 第362页
74 47 47 26 25 49 51 50 49 51 50 52 52 55 54 54 53 55 53 67 68 66 48 37 40 39 38 45 43 44 42 58 59 10 4, 4.1 12 1 1 14 13 6 5 8 2 3 1 24 28 30 31 29 27 32 34 33 35 36 15 16 17 60 67.1 59.1 15.1 16 17 15.1 8 21 22 23, 23.…

6.1.1.M3S-SINGLECONVEYOR2/11
6.1.1.M3S-シングルコンベア2/11
UQ01460
No. Drg.No.&CodeNo. QTY Description Rating
Materials
Remarks
番号 図番&コード番号 個数 品名 規格 材質 備考
72 PM18275 1 BKT BKT FE
73 H5287A 2 BOLT,HEXSOCKET ボルト六角穴 M04X008 FE
74 W1011A 2 WASHER,CONICAL ワッシャ皿 M-4-L FE
75 AA30L03 1 SENSOR センサ OT
75.1 PM18264 1 BKT,SENSOR BKTセンサ FE
75.2 PB12712 1 WASHER ワッシャ FE
75.3 XS01245 1 SENSOR,TOUCH センサタッチ OT
75.4 K5257H 2 SCREW,HEXSOCKETBUTTON 小ネジ六角穴ボタン M04X012 FE
75.5 W1022A 2 WASHER,LOCK ワッシャスプリング 4M/M FE
76 H5275A 2 BOLT,HEXSOCKET ボルト六角穴 M03X008 FE
77 W1010A 2 WASHER,CONICAL ワッシャ 皿 M-3-L FE
6.
CONVEYOR
/
コンベア
21
PTS-NXT-10JE
Vol.2

74
47
47
26
25
49
51
50
49
51
50
52
52
55
54
54
53
55
53
67
68
66
48
37
40
39
38
45
43
44
42
58
59
10
4,
4.1
12
11
14
13
6
5
8
2
3
1
24
28
30
31
29
27
32
34
33
35
36
15
16
17
60
67.1
59.1
15.1
16
17
15.1
8
21
22
23,
23.1
57,
57.1
56
57,
57.1
56
62
65
65
64
63
62
71
72
73
73
62.1
62.1
UQ01460
6.
CONVEYOR
/
コンベア
22
PTS-NXT-10JE
Vol.2

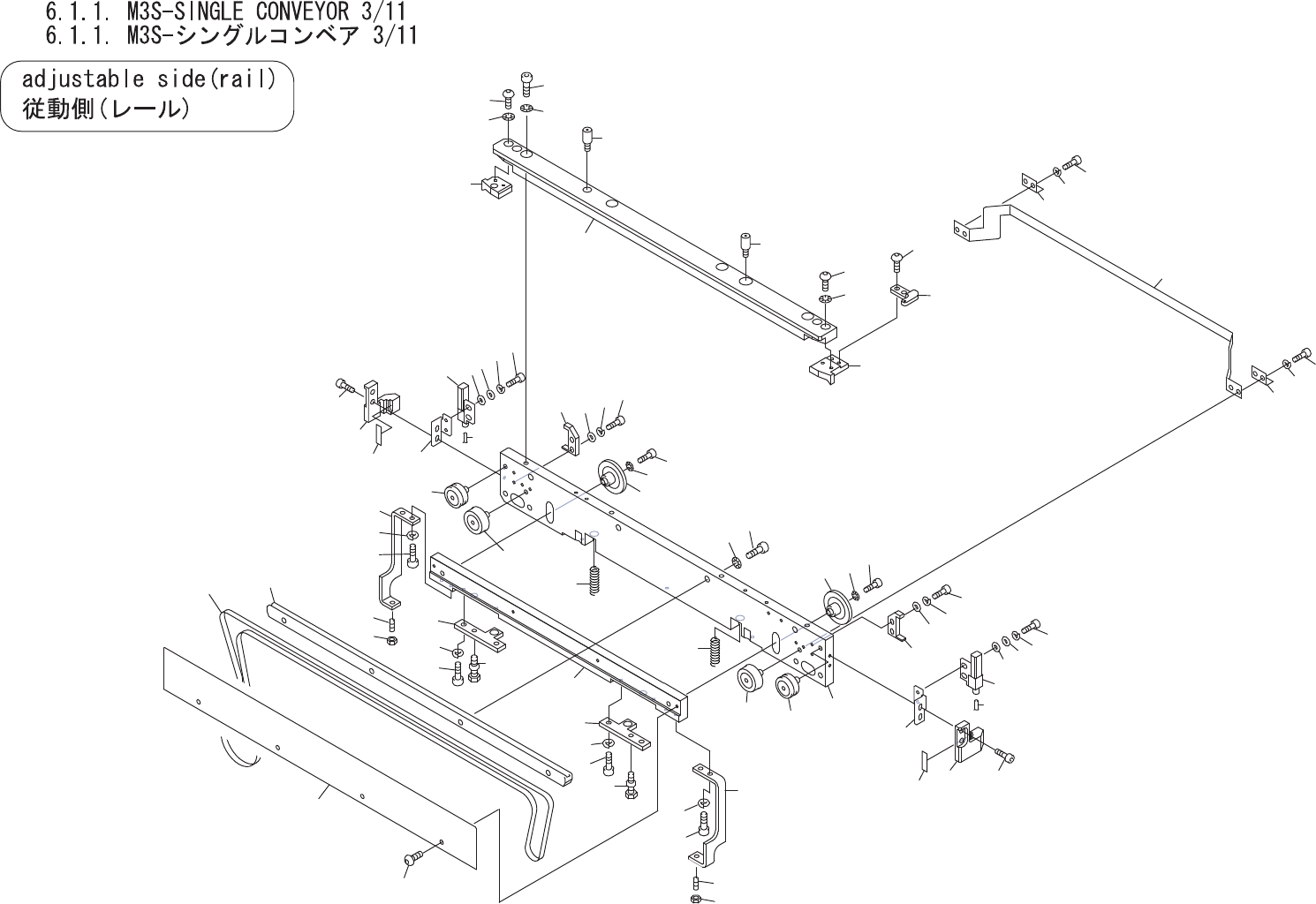
6.1.1.M3S-SINGLECONVEYOR3/11
6.1.1.M3S-シングルコンベア3/11
UQ01460
No. Drg.No.&CodeNo. QTY Description Rating
Materials
Remarks
番号 図番&コード番号 個数 品名 規格 材質 備考
1 PT01213 1 GUIDE ガイド FE
2 K5255T 2 SCREW,HEXSOCKETBUTTON 小ネジ六角穴ボタン M03X006 FE
3 W1010A 2 WASHER,CONICAL ワッシャ皿 M-3-L FE
4 PM32043 1 RAIL レール FE
4.1 PM41863 1 RAIL レール FE Thinpaneloption
5 H5288A 4 BOLT,HEXSOCKET ボルト六角穴 M04X010 FE
6 W1011A 4 WASHER,CONICAL ワッシャ皿 M-4-L FE
8 PM23704 2 PIN,REFERENCE ピン基準 FE
10 PT01233 1 GUIDE ガイド FE
11 K5255T 2 SCREW,HEXSOCKETBUTTON 小ネジ六角穴ボタン M03X006 FE
12 W1010A 2 WASHER,CONICAL ワッシャ皿 M-3-L FE
13 PT01141 1 PLATE,REFERENCE プレート基準 FE
14 K5255T 2 SCREW,HEXSOCKETBUTTON 小ネジ六角穴ボタン M03X006 FE
15 PB18560 1 RETAINER,WIRING 押え配線 FE
15.1 PB84710 2 BKT BKT FE
16 H5274A 4 BOLT,HEXSOCKET ボルト六角穴 M03X006 FE
17 W1021A 4 WASHER,LOCK ワッシャスプリング 3M/M FE
21 PM09102 1 PLATE,CLAMPING プレートクランプ FE
22 K5255A 4 SCREW,HEXSOCKETBUTTON 小ネジ六角穴ボタン M03X004 FE
23 XB01021 1 CONVEYOR,BELT コンベアベルト OT L=960mm
23.1 XB02731 1 CONVEYOR,BELT コンベアベルト OT Thinpaneloption
24 PM11620 1 GUIDE,BELT ガイドベルト AL
25 H5287A 4 BOLT,HEXSOCKET ボルト六角穴 M04X008 FE
26 W1011A 4 WASHER,CONICAL ワッシャ皿 M-4-L FE
27 PB18132 1 HOOK フック FE
28 H5274A 2 BOLT,HEXSOCKET ボルト六角穴 M03X006 FE
29 W1021A 2 WASHER,LOCK ワッシャスプリング 3M/M FE
30 N4023B 1 SCREW,HEXSOCKETSET ネジ六角穴止め M03X010マルサキ FE
31 N1077H 1 NUT,HEX ナット六角 M3P=0.53シュ FE
32 PB18142 1 HOOK フック FE
33 H5274A 2 BOLT,HEXSOCKET ボルト六角穴 M03X006 FE
34 W1021A 2 WASHER,LOCK ワッシャスプリング 3M/M FE
35 N4023B 1 SCREW,HEXSOCKETSET ネジ六角穴止め M03X010マルサキ FE
36 N1077H 1 NUT,HEX ナット六角 M3P=0.53シュ FE
37 PM12141 1 PLATE プレート FE
38 H5275A 2 BOLT,HEXSOCKET ボルト六角穴 M03X008 FE
39 W1021A 2 WASHER,LOCK ワッシャスプリング 3M/M FE
40 H55037 1 BOLT ボルト PSST4-15 FE
6.
CONVEYOR
/
コンベア
23
PTS-NXT-10JE
Vol.2