PTS-NXT-10JE - 第435页
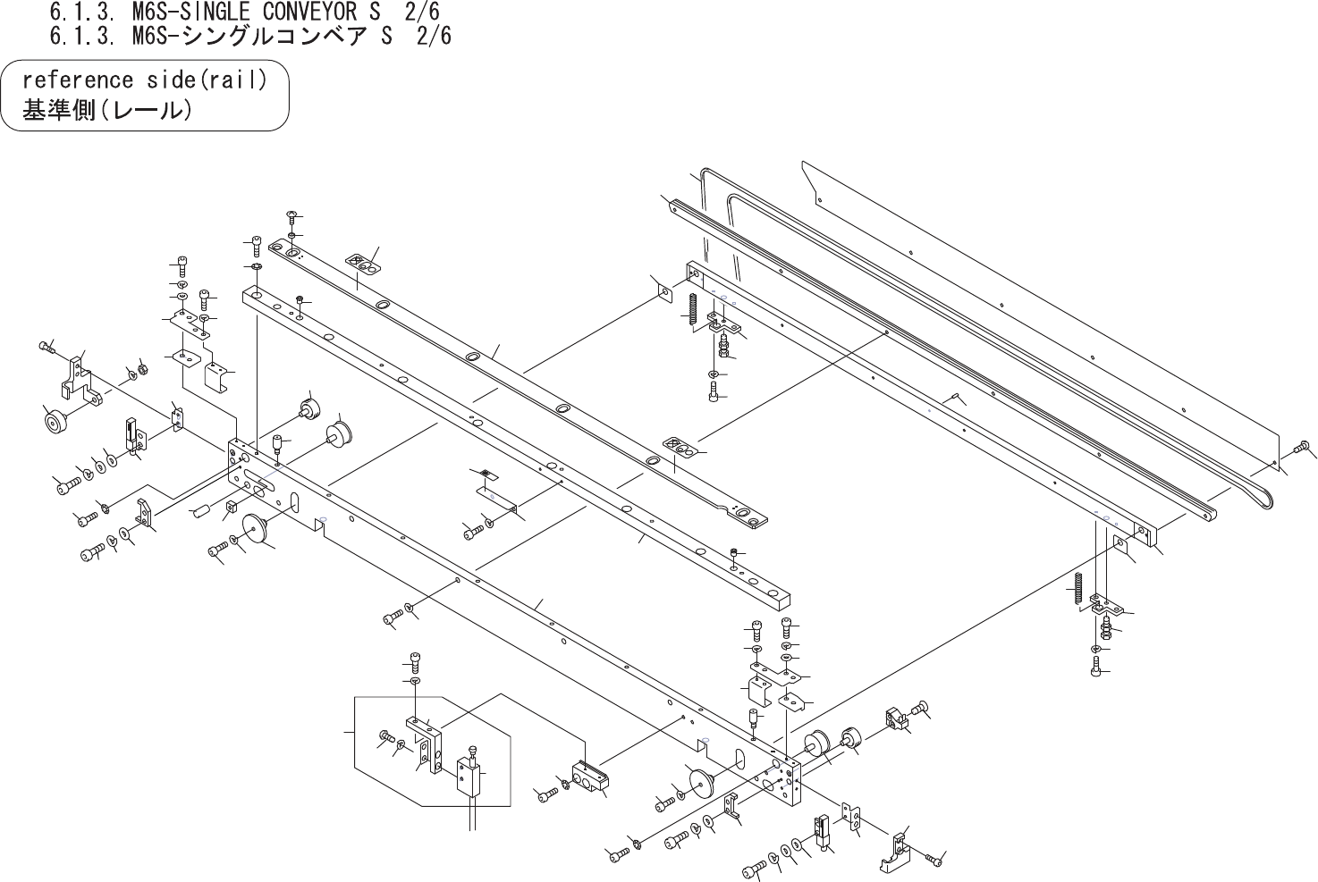
6.1.3.M6S-SINGLECONVEYORS1/6 6.1.3. M6S- シン グルコン ベアS 1/ 6 UQ03900 No. Drg.No.&CodeNo. Q TY Description Rating Materials Remarks 番号 図番 &コード 番号 個数 品名 規格 材質 備考 2 PM04TX3 1 PLATE,STIFFENING プ レート 当て …

2/6
6/6
3/6
5/6
BACK-UP PIN
A
A
4/6
12
13
12
13
14
15
17
16
18
20
19
21
34
34
22
24
23
25
27
26
28
31
32
33
28
30
29
30
29
31
32
33
14
21
28
28
5.1
5.2
4
6
2
6
10
9
7
8
11
8
5
UQ03900
6.
CONVEYOR
/
コンベア
94
PTS-NXT-10JE
Vol.2

6.1.3.M6S-SINGLECONVEYORS1/6
6.1.3.M6S-シングルコンベアS1/6
UQ03900
No. Drg.No.&CodeNo. QTY Description Rating
Materials
Remarks
番号 図番&コード番号 個数 品名 規格 材質 備考
2 PM04TX3 1 PLATE,STIFFENING プレート当て FE
4 PM04TW3 1 PLATE,STIFFENING プレート当て FE
5 PB00GY1 1 PLATE,PARTITION プレート仕切り FE
5.1 H5273A 2 BOLT,HEXSOCKET ボルト六角穴 M03X005 FE
5.2 W1021A 2 WASHER,LOCK ワッシャスプリング 3M/M FE
6 K5357T 10 SCREW,HEXSOCKETCOUNTERSUNK 小ネジ六角穴皿 M03X008 FE
7 PM79502 4 NUT ナット FE
8 W1121C 8 WASHER ワッシャ WSSS20-8-2 OT
9 AA6WL03 8 PIN,BACKUP ピンバックアップ OT
10 PM06AZ3 1 PLATE,BACKUP プレートバックアップ FE PM97231+PZ35753
11 PM05YY3 1 PLATE,BACKUP プレートバックアップ FE
12 H5276A 8 BOLT,HEXSOCKET ボルト六角穴 M03X010 FE
13 W1011A 8 WASHER,CONICAL ワッシャ皿 M-4-L FE
14 PM05YX1 2 ARM アーム AL
15 H5282B 6 BOLT,HEXSOCKET ボルト六角穴 M03X030(ゼンネジ) FE
16 N1076A 6 NUT,HEX ナット六角 M3P=0.5 FE
17 W1021A 6 WASHER,LOCK ワッシャスプリング 3M/M FE
18 H5282A 2 BOLT,HEXSOCKET ボルト六角穴 M03X030 FE
19 W1021A 2 WASHER,LOCK ワッシャスプリング 3M/M FE
20 W1042A 2 WASHER,FLAT ワッシャ平 4W-3 FE
21 PM04TL3 2 ARM アーム AL
22 N4025Z 6 SCREW,HEXSOCKETSET ネジ六角穴止め M03X020クボミサキ FE
23 N1076A 6 NUT,HEX ナット六角 M3P=0.5 FE
24 W1021A 6 WASHER,LOCK ワッシャスプリング 3M/M FE
25 H5280A 2 BOLT,HEXSOCKET ボルト六角穴 M03X020 FE
26 W1021A 2 WASHER,LOCK ワッシャスプリング 3M/M FE
27 W1042A 2 WASHER,FLAT ワッシャ平 4W-3 FE
28 PM04TM1 4 BLOCK ブロック AL
29 H5278A 12 BOLT,HEXSOCKET ボルト六角穴 M03X015 FE
30 W1010A 12 WASHER,CONICAL ワッシャ皿 M-3-L FE
31 H5280A 8 BOLT,HEXSOCKET ボルト六角穴 M03X020 FE
32 W1021A 8 WASHER,LOCK ワッシャスプリング 3M/M FE
33 W1042A 8 WASHER,FLAT ワッシャ平 4W-3 FE
34 PM07BA0 4 BOLT
ボ
ルト FE
6.
CONVEYOR
/
コンベア
95
PTS-NXT-10JE
Vol.2

1
24
2
2.1
2.2
5
8
8
9
13
14
15
25
26
13
14
16
17
18
15
16
19
20
21
22
23
19
20
21
22
23
30
37
40
40
31
32
38
39
34
34.1
35
36
41
42
43
44
47
48
50
49
2.3
5.1
5.2
5.3
54
53
52
64
65
63
59
62
60
61
60
59
62
61
68
69
68
69
6
7.1
7.2
7
6
7.1
7.2
7
30.1
37.1
34.2
27
28
29
33
33
10
11
10
12
11
45
46
51
56
55
58
58
57
56
55
58
58
57
66
67
70
71
72
70.1
11.1
11.1
27.1
UQ03900
6.
CONVEYOR
/
コンベア
96
PTS-NXT-10JE
Vol.2