PTS-NXT-10JE - 第461页
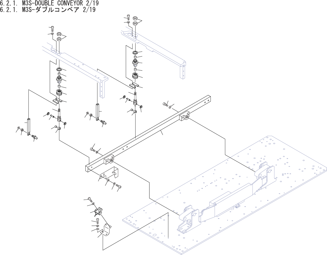
6.2.1.M3S-DOUBLECONVEYOR2/19 6.2.1. M3S- ダブ ルコンベ ア2/ 19 UQ01262 No. Drg.No.&CodeNo. Q TY Description Rating Materials Remarks 番号 図番 &コード 番号 個数 品名 規格 材質 備考 1 PP00970 1 BKT,SENSOR BKT セン サ FE 2 H5275A …

22
24
21
32
25
33
9
11
10
28
30
29
19
56
20
26
18
18
35
34
57
30
31
8
57
58
23
22
24
19
20
23
33
26
21
32
25
33
28
30
29
35
34
30
31
33
59
1
2
3
5
7
4
6
UQ01262
6.
CONVEYOR
/
コンベア
120
PTS-NXT-10JE
Vol.2

6.2.1.M3S-DOUBLECONVEYOR2/19
6.2.1.M3S-ダブルコンベア2/19
UQ01262
No. Drg.No.&CodeNo. QTY Description Rating
Materials
Remarks
番号 図番&コード番号 個数 品名 規格 材質 備考
1 PP00970 1 BKT,SENSOR BKTセンサ FE
2 H5275A 2 BOLT,HEXSOCKET ボルト六角穴 M03X008 FE
3 W1021A 2 WASHER,LOCK ワッシャスプリング 3M/M FE
4 W1042A 2 WASHER,FLAT ワッシャ平 4W-3 FE
5 S4077S 1 SENSOR,PHOTO センサフォト PM-K44P3m OT
6 H5276A 2 BOLT,HEXSOCKET ボルト六角穴 M03X010 FE
7 W1021A 2 WASHER,LOCK ワッシャスプリング 3M/M FE
8 PP00980 1 DOG ドッグ FE
9 H5275A 2 BOLT,HEXSOCKET ボルト六角穴 M03X008 FE
10 W1021A 2 WASHER,LOCK ワッシャスプリング 3M/M FE
11 W1042A 2 WASHER,FLAT ワッシャ平 4W-3 FE
18 PM50040 2 ROD ロッド FE
19 H5263C 2 BOLT,HEXSOCKET ボルト六角穴 M05X016 FE
20 W1023A 2 WASHER,LOCK ワッシャスプリング 5M/M FE
21 PP01470 2 PLATE プレート FE
22 PM50010 2 PIN ピン FE
23 N1083A 2 NUT,HEX ナット六角 M5P=0.83シュ FE
24 W1023A 2 WASHER,LOCK ワッシャスプリング 5M/M FE
25 PM27114 2 SHAFT シャフト FE
26 N1086A 4 NUT,HEX ナット六角 M6P=1.03シュ FE
28 PM27862 2 WASHER ワッシャ FE
29 PM27252 2 HOUSING ハウジング FE
30 H4901G 4 BEARING,DRY ベアリングドライ K5B0606 OT
31 S3260A 2 SPRING スプリング SWU21-25 OT
32 PM99000 2 PIN ピン FE
33 S1047K 4 CIR-CLIP サークリップ E-3 OT
34 H4901C 2 BEARING,DRY ベアリングドライ K5B0405 OT
35 PM27140 2 ROLLER ローラ FE
56 PM50002 1 LIFTER リフタ FE
57 H5506X 2 BOLT,HEXSOCKET ボルト六角穴 CBS6-20 FE
58 W1013A 1 WASHER,CONICAL ワッシャ皿 M-6-H FE
59 W1051A 1 WASHER,FLAT ワッシャ 平 6M/MX1.6X125(1W-6) FE
6.
CONVEYOR
/
コンベア
121
PTS-NXT-10JE
Vol.2

18
6
10
7
8
8
22
4
17
5
2
3
1
1
30
37
32
33
31
4
2
3
21
19
20
36
35
34
35
18
21
19
20
22
17
7
32
31.1
38
40
39
41
42
41.1
13
12
9
11
15
14
26
15
25
23
24
23
28
27
28
29
16
UQ01262
6.
CONVEYOR
/
コンベア
122
PTS-NXT-10JE
Vol.2