PTS-NXT-10JE - 第545页
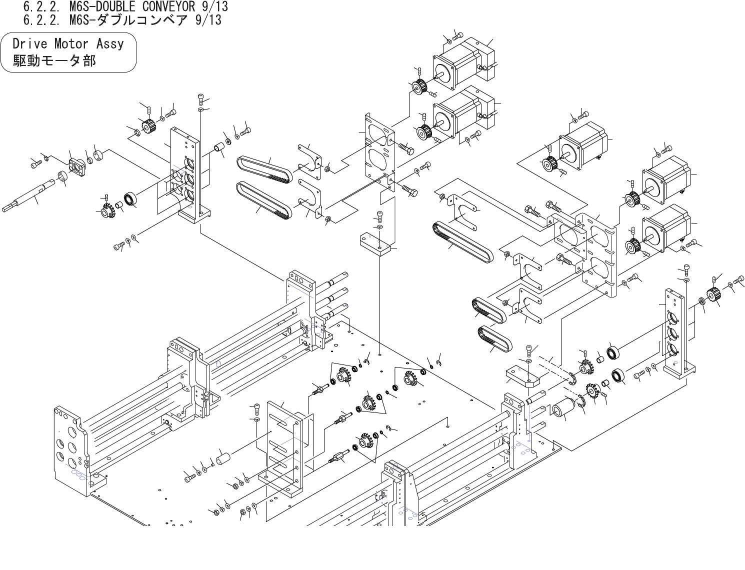
6.2.2.M6S-DOUBLECONVEYOR9/13 6.2.2. M6S- ダブ ルコンベ ア9/ 13 UQ01361 No. Drg.No.&CodeNo. Q TY Description Rating Materials Remarks 番号 図番 &コード 番号 個数 品名 規格 材質 備考 1 PM06373 2 SHAFT シャフ ト FE 2 H4440A 16 B EARIN…

52
53
45
27
37
46
66
59
54
63
61
58
62
43
24
43
24
43
26
25
31
31
30
49
48
14
13
15
69
70
14
15
50
9
11
19
21
14
13
15
85
8
4
9
2
6
3
2
1
16
11
10
11.1
25
5
12
12
20
26
38
26
47
26
26
12
8
51
53.1
65
64
57
55
56
59
61
58
62
79
78
77
73
72
74
71
76
74
75
73
13
85
85
28
29
36
36
37
38
31
31
30
31
31
30
31
31
30
31
31
30
80
81
82
83
84
86
87
88
86
87
88
25
25
25
7
22
23
33
32
34
32
33
34
35
39
40
41
40
39
41
39
40
41
42
42
89
UQ01361
6.
CONVEYOR
/
コンベア
204
PTS-NXT-10JE
Vol.2

6.2.2.M6S-DOUBLECONVEYOR9/13
6.2.2.M6S-ダブルコンベア9/13
UQ01361
No. Drg.No.&CodeNo. QTY Description Rating
Materials
Remarks
番号 図番&コード番号 個数 品名 規格 材質 備考
1 PM06373 2 SHAFT シャフト FE
2 H4440A 16 BEARING,MINIATURE ベアリングミニチュア DDL-1910ZZ OT
3 PM29131 5 HOLDER,BEARING ホルダベアリング FE
4 H5287A 2 BOLT,HEXSOCKET ボルト六角穴 M04X008 FE
5 W1011A 32 WASHER,CONICAL ワッシャ皿 M-4-L FE
6 PM02MS0 2 COLLAR カラー FE
7 W10049 2 WASHER ワッシャ LRB10-1.0 FE
8 PZ11471 5 PULLEY プーリ OT
9 N4026A 5 SCREW,HEXSOCKETSET ネジ六角穴止め M04X004クボミサキ FE
10 W10872 3 WASHER ワッシャ WSSB12-5-2 OT
11 H5300A 5 BOLT,HEXSOCKET ボルト六角穴 M05X015 FE
11.1 H5298A 3 BOLT,HEXSOCKET ボルト六角穴 M05X010 FE
12 W1023A 8 WASHER,LOCK ワッシャスプリング 5M/M FE
13 PZ00942 6 SPROCKET スプロケット OT
14 N4026A 6 SCREW,HEXSOCKETSET ネジ六角穴止め M04X004クボミサキ FE
15 PM29232 6 COLLAR カラー FE
16 PM36933 3 COLLAR カラー FE
19 PM29113 1 BKT BKT FE
20 H5322A 2 BOLT,HEXSOCKET ボルト六角穴 M06X015 FE
21 W1024A 2 WASHER,LOCK ワッシャスプリング 6M/M FE
22 H45757 1 BELT,TIMING ベルトタイミング 315-3GT-9 OT
23 H4521L 1 BELT,TIMING ベルトタイミング 300-3GT-9 OT
24 PP00941 2 BKT,ADJUSTING BKTセリ FE
25 H5172T 5 BOLT,HEX ボルト六角 M04X025クロゾメ FE
26 N1080A 5 NUT,HEX ナット六角 M4P=0.7 FE
27 PP01040 1 BKT,MOTOR BKTモータ FE
28 H5298A 3 BOLT,HEXSOCKET ボルト六角穴 M05X010 FE
29 W1023A 3 WASHER,LOCK ワッシャスプリング 5M/M FE
30 PZ05392 5 PULLEY プーリ OT
31 N4027A 10 SCREW,HEXSOCKETSET ネジ六角穴止め M04X005クボミサキ FE
32 XM00233 2 MOTOR,STEPPING モータステッピング OT
33 H5289A 8 BOLT,HEXSOCKET ボルト六角穴 M04X012 FE
34 W1022A 8 WASHER,LOCK ワッシャスプリング 4M/M FE
35 H4520F 1 BELT,TIMING ベルトタイミング 342-3GT-9 OT
36 PM31463 2 PLATE プレート FE
37 H5323A 4 BOLT,HEXSOCKET ボルト六角穴 M06X018 FE
38 W1024A 4 WASHER,LOCK ワッシャスプリング 6M/M FE
39 XM00242 3 MOTOR,STEPPING モータステッピング OT
6.
CONVEYOR
/
コンベア
205
PTS-NXT-10JE
Vol.2

6.2.2.M6S-DOUBLECONVEYOR9/13
6.2.2.M6S-ダブルコンベア9/13
UQ01361
No. Drg.No.&CodeNo. QTY Description Rating
Materials
Remarks
番号 図番&コード番号 個数 品名 規格 材質 備考
40 H5289A 12 BOLT,HEXSOCKET ボルト六角穴 M04X012 FE
41 W1022A 12 WASHER,LOCK ワッシャスプリング 4M/M FE
42 H4572E 2 BELT,TIMING ベルトタイミング 177-3GT-9 OT
43 PP00951 3 BKT,ADJUSTING BKTセリ FE
45 PP01031 1 BKT,MOTOR BKTモータ FE
46 H5298A 3 BOLT,HEXSOCKET ボルト六角穴 M05X010 FE
47 W1023A 3 WASHER,LOCK ワッシャスプリング 5M/M FE
48 PG02322 1 STOPPER ストッパ PL
49 PM29124 1 BKT BKT FE
50 H5322A 2 BOLT,HEXSOCKET ボルト六角穴 M06X015 FE
51 W1024A 2 WASHER,LOCK ワッシャスプリング 6M/M FE
52 PM09922 1 BKT BKT FE
53 H5322A 2 BOLT,HEXSOCKET ボルト六角穴 M06X015 FE
53.1 W1024A 2 WASHER,LOCK ワッシャスプリング 6M/M FE
54 PM01650 4 SHAFT シャフト FE
55 N1086A 4 NUT,HEX ナット六角 M6P=1.03シュ FE
56 W1024A 4 WASHER,LOCK ワッシャスプリング 6M/M FE
57 W1045A 4 WASHER,FLAT ワッシャ平 4W-6 FE
58 H4900R 6 BEARING,MINIATURE ベアリングミニチュア MF105ZZ OT
59 S3034A 6 SPROCKET スプロケット RS25-13T2ガタ OT
61 GVC0351 6 COLLAR カラー FE
62 S1022A 6 CIR-CLIP サークリップ ST-EW-4 OT
63 PM01660 2 SHAFT シャフト FE
64 N1086A 2 NUT,HEX ナット六角 M6P=1.03シュ FE
65 W1024A 2 WASHER,LOCK ワッシャスプリング 6M/M FE
66 W1045A 2 WASHER,FLAT ワッシャ平 4W-6 FE
69 T2026G 2 CHAIN チェーン RS25NP190リンク OT
70 T2026K 1 CHAIN チェーン RS25NP192リンク OT
71 S1022A 1 CIR-CLIP サークリップ ST-EW-4 OT
72 GVC0351 1 COLLAR カラー FE
73 PZ05341 2 SPROCKET スプロケット OT
74 H4900R 2 BEARING,MINIATURE ベアリングミニチュア MF105ZZ OT
75 PM11451 1 COLLAR カラー FE
76 PM11440 1 SHAFT シャフト FE
77 N1086A 1 NUT,HEX ナット六角 M6P=1.03シュ FE
78 W1024A 1 WASHER,LOCK ワッシャスプリング 6M/M FE
79 W1045A 1 WASHER,FLAT ワッシャ平 4W-6 FE
80 PG00991 1 STOPPER ストッパ OT
6.
CONVEYOR
/
コンベア
206
PTS-NXT-10JE
Vol.2