PTS-NXT-10JE - 第552页
DETAIL Z Z Z A B A A A B A A A B A A A B Z 17 12 32 44 56 13 34 45 57 11 10 26 28 22 53 53.1 52 47 48 1 9 6 3 1 1 2.6 5 59 3 59 4 4 4 4 35 50 36 49 38 39 59 26 27 27.1 27 27.1 54 55 55.1 8 7 14 33 37 60 60 46 51 60 94 93…

6.2.2.M6S-DOUBLECONVEYOR10/13
6.2.2.M6S-ダブルコンベア10/13
UQ01361
No. Drg.No.&CodeNo. QTY Description Rating
Materials
Remarks
番号 図番&コード番号 個数 品名 規格 材質 備考
61 W1021A 2 WASHER,LOCK ワッシャスプリング 3M/M FE
62 W1040A 2 WASHER,FLAT ワッシャ平 3M/MX0.5X7(1W-3) FE
73 K52565 2 SCREW,HEXSOCKETBUTTON 小ネジ六角穴ボタン M04X006 FE
74 PX02950 1 SEAL,BARCODE シールバーコード OT
74.1 PX03880 1 SEAL,BARCODE シールバーコード OT Thinpaneloption
75 PB48691 2 PLATE,FIXED プレート固定 FE
76 H5274A 4 BOLT,HEXSOCKET ボルト六角穴 M03X006 FE
77 W1021A 4 WASHER,LOCK ワッシャスプリング 3M/M FE
78 W1042A 4 WASHER,FLAT ワッシャ 平 4W-3 FE
6.
CONVEYOR
/
コンベア
211
PTS-NXT-10JE
Vol.2

DETAIL
Z
Z
Z
A
B
A
A
A
B
A
A
A
B
A
A
A
B
Z
17
12
32
44
56
13
34
45
57
11
10
26
28
22
53
53.1
52
47
48
1
9
6
3
1
1
2.6
5
59
3
59
4
4
4
4
35
50
36
49
38
39
59
26
27
27.1
27
27.1
54
55
55.1
8
7
14
33
37
60
60
46
51
60
94
93
58
43
23
23.1
11.1
48.1
29
29.1
28
29
29.1
31
30
31.1
18
19
19.1
18
19
19.1
66.2
2.1
2.2
2.3
2.4
2.5
66
67
70
66.1
63
68
69
72
68
61.1
62
67.1
68.1
68.2
12.1
12.2
12.3
32.1
32.2
32.3
44.1
44.2
44.3
56.1
56.2
56.3
43
43
15
16
16
15
20
21
21.1
20
21
21.1
40
78
77
79
77
73
74
74.1
75
76
75
76
61
2
UQ01361
6.
CONVEYOR
/
コンベア
212
PTS-NXT-10JE
Vol.2

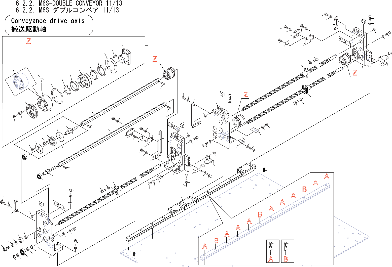
6.2.2.M6S-DOUBLECONVEYOR11/13
6.2.2.M6S-ダブルコンベア11/13
UQ01361
No. Drg.No.&CodeNo. QTY Description Rating
Materials
Remarks
番号 図番&コード番号 個数 品名 規格 材質 備考
1 H4440A 4 BEARING,MINIATURE ベアリングミニチュア DDL-1910ZZ OT
2 AA1EE05 1 PULLEY プーリ OT
2.1 PM61044 1 FLANGE フランジ FE
2.2 PZ16683 1 PULLEY プーリ OT
2.3 H5274A 4 BOLT,HEXSOCKET ボルト六角穴 M03X006 FE
2.4 PM61321 1 FLANGE フランジ FE
2.5 K5169A 2 SCREW,C/RCOUNTERSUNK 小ネジ十穴皿 M02.5X004(ステンレス) FE
2.6 PM61030 1 SHAFT シャフト FE
3 PM06366 2 SHAFT シャフト FE
4 N40256 4 SCREW,HEXSOCKETSET ネジ六角穴止め M04X003クボミサキ FE
5 PM01792 1 SHAFT シャフト FE
6 W10872 2 WASHER ワッシャ WSSB12-5-2 OT
7 H5298A 2 BOLT,HEXSOCKET ボルト六角穴 M05X010 FE
8 W1023A 2 WASHER,LOCK ワッシャスプリング 5M/M FE
9 PM02MS0 2 COLLAR カラー FE
10 PP00690 1 RETAINER,WIRING 押え配線 FE
11 K5255A 2 SCREW,HEXSOCKETBUTTON 小ネジ六角穴ボタン M03X004 FE
11.1 W1021A 2 WASHER,LOCK ワッシャスプリング 3M/M FE
12 PM02GW2 1 BKT BKT FE
12.1 PJ13271 1 SHEET シート OT
12.2 PJ12922 2 WASHER ワッシャ OT
12.3 PS02492 1 SHEET シート OT
13 H5321A 4 BOLT,HEXSOCKET ボルト六角穴 M06X012 FE
14 W1013A 4 WASHER,CONICAL ワッシャ皿 M-6-H FE
15 S1031A 6 CIR-CLIP サークリップ STW10 OT
16 W10049 6 WASHER ワッシャ LRB10-1.0 OT
17 H4202Z 3 BEARING ベアリング 6900ZZ OT
18 PP00440 4 RETAINER,WIRING 押え配線 FE
19 K5255A 4 SCREW,HEXSOCKETBUTTON 小ネジ六角穴ボタン M03X004 FE
19.1 W1021A 4 WASHER,LOCK ワッシャスプリング 3M/M FE
20 XN00222 2 SCREW ネジ OT
21 H5288A 8 BOLT,HEXSOCKET ボルト六角穴 M04X010 FE
21.1 W1011A 8 WASHER,CONICAL ワッシャ皿 M-4-L FE
22 PP01660 1 COVER,WIRING カバー配線 FE
23 K5255A 3 SCREW,HEXSOCKETBUTTON 小ネジ六角穴ボタン M03X004 FE
23.1 W1021A 3 WASHER,LOCK ワッシャスプリング 3M/M FE
26 PP00680 2 RETAINER,WIRING 押え配線 FE
27 K5255A 4 SCREW,HEXSOCKETBUTTON 小ネジ六角穴ボタン M03X004 FE
6.
CONVEYOR
/
コンベア
213
PTS-NXT-10JE
Vol.2