PTS-NXT-10JE - 第627页
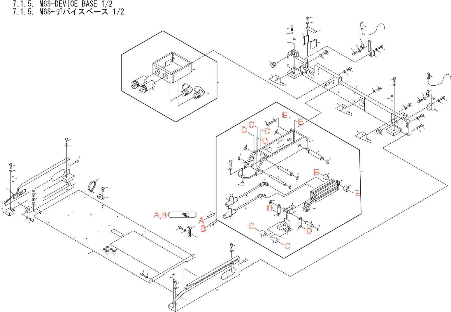
7.1.5.M6S-DEVICEBASE1/2 7.1.5. M6S- デバ イスベー ス1 /2 UD00832 No. Drg.No.&CodeNo. Q TY Description Rating Materials Remarks 番号 図番 &コード 番号 個数 品名 規格 材質 備考 1 PB33944 1 CATCHPAN 受け皿 FE 2 H5275A 2 B OLT,HEXS…

Ref.2/
A,B
B
A
C
D
E
E
D
C
D
C
C
E
E
D
1
83
84
2
3
4
5
6
5
6
7
8
12
13
14
13
14
15
80
81
82
16
20
25
26
27
26
27
25
28
28
29
30
31
30
31
33
32
34
38
39
40
70
71
72
73
74
75
29
29
23
23
24
24
76
77
78
79
86
89
93
100
101
102
102
105
105
106
107
108
96
103
104
97
94.1
95
93
94
95
98
99
98
90
91
91
90
87
88
104
97
59
67
68
12.1
59
30
31
9
10
11
85
92
35
35.1
36
41
41.1
44
44
45
69
37
42
43
47
48
UD00832
7.
PARTS
SUPPLY
/
部品供給
36
PTS-NXT-10JE
Vol.3

7.1.5.M6S-DEVICEBASE1/2
7.1.5.M6S-デバイスベース1/2
UD00832
No. Drg.No.&CodeNo. QTY Description Rating
Materials
Remarks
番号 図番&コード番号 個数 品名 規格 材質 備考
1 PB33944 1 CATCHPAN 受け皿 FE
2 H5275A 2 BOLT,HEXSOCKET ボルト六角穴 M03X008 FE
3 W1021A 2 WASHER,LOCK ワッシャスプリング 3M/M FE
4 PM09BA0 1 BASE ベース FE
5 H5301A 2 BOLT,HEXSOCKET ボルト六角穴 M05X018 FE
6 W1023A 2 WASHER,LOCK ワッシャスプリング 5M/M FE
7 PM02643 1 PIN ピン FE
8 H2095A 1 PIN,PARALLEL ピン平行 ゚6X12Aシュ(M6) FE
9 S4077W 1 SENSOR,PHOTO センサフォト PM-R44P OT
10 H5275A 2 BOLT,HEXSOCKET ボルト六角穴 M03X008 FE
11 W1021A 2 WASHER,LOCK ワッシャスプリング 3M/M FE
12 PM09BB0 1 BASE ベース FE
12.1 PX01610 1 SEAL,BARCODE シールバーコード OT
13 H5301A 2 BOLT,HEXSOCKET ボルト六角穴 M05X018 FE
14 W1023A 2 WASHER,LOCK ワッシャスプリング 5M/M FE
15 PM02643 1 PIN ピン FE
16 H2095A 1 PIN,PARALLEL ピン平行 ゚6X12Aシュ(M6) FE
20 PM63287 1 BKT BKT FE
23 H5302A 4 BOLT,HEXSOCKET ボルト六角穴 M05X020 FE
24 W1023A 4 WASHER,LOCK ワッシャスプリング 5M/M FE
25 PM02643 2 PIN ピン FE
26 H5301A 2 BOLT,HEXSOCKET ボルト六角穴 M05X018 FE
27 W1023A 2 WASHER,LOCK ワッシャスプリング 5M/M FE
28 PM02595 2 BUSHING ブシュ FE
29 PB14511 3 CHUTE シュート FE
30 K5256G 6 SCREW,HEXSOCKETBUTTON 小ネジ六角穴ボタン M03X012 FE
31 W1010A 6 WASHER,CONICAL ワッシャ皿 M-3-L FE
32 PM87982 1 BKT,SENSOR BKTセンサ FE
33 H5263A 2 BOLT,HEXSOCKET ボルト六角穴 M03X018 FE
34 W1021A 2 WASHER,LOCK ワッシャスプリング 3M/M FE
35 S40264 1 SENSOR センサ E2S-W25 OT
35.1 . 1 FIXTURE 金具 Y92E-C2R5 OT ACC-35
36 K5173A 1 SCREW,C/RPAN 小ネジ十穴鍋 M03X010(ステンレス) FE
37 W1021A 1 WASHER,LOCK ワッシャスプリング 3M/M FE
38 PM87992 1 BKT,SENSOR BKTセンサ FE
39 H5263A 2 BOLT,HEXSOCKET ボルト六角穴 M03X018 FE
40 W1021A 2 WASHER,LOCK ワッシャスプリング 3M/M FE
41 S40264 1 SENSOR センサ E2S-W25 OT
7.
PARTS
SUPPLY
/
部品供給
37
PTS-NXT-10JE
Vol.3

7.1.5.M6S-DEVICEBASE1/2
7.1.5.M6S-デバイスベース1/2
UD00832
No. Drg.No.&CodeNo. QTY Description Rating
Materials
Remarks
番号 図番&コード番号 個数 品名 規格 材質 備考
41.1 . 1 FIXTURE 金具 Y92E-C2R5 OT ACC-41
42 K5173A 1 SCREW,C/RPAN 小ネジ十穴鍋 M03X010(ステンレス) FE
43 W1021A 1 WASHER,LOCK ワッシャスプリング 3M/M FE
44 PJ02933 2 HOLDER,CONNECTOR ホルダコネクタ PL
45 PM02614 1 PLATE プレート FE
47 K5232A 2 SCREW,C/RPAN 小ネジ十穴鍋 M03X035ニッケルメッキ FE
48 W1021A 2 WASHER,LOCK ワッシャスプリング 3M/M FE
59 H1140A 2 BAND,TIE バンド結束 T18R OT
67 PZ13981 1 TUBE チューブ OT
68 PZ13991 1 TUBE チューブ OT
69 AA54606 1 SOCKET,COUPLER ソケットカプラ OT
70 PM14077 1 BKT BKT FE
71 XS01130 2 SOCKET,COUPLER ソケットカプラ OT
72 Y3080A 2 UNION,ELBOW ユニオンエルボ KQ2L10-02S OT
73 H5289A 4 BOLT,HEXSOCKET ボルト六角穴 M04X012 FE
74 W1022A 4 WASHER,LOCK ワッシャスプリング 4M/M FE
75 H2093B 2 PIN,PARALLEL ピン平行 ゚4X8Aシュ(M6) OT
76 S2025A 4 SHEET シート CTAM1 PL
77 K5170T 4 SCREW,C/RTRUSS 小ネジ十穴トラス M03X006ユニクロメッキ(シロ) FE
78 H1140A 5 BAND,TIE バンド結束 T18R PL
79 PB33952 1 BKT,ADJUSTING BKT調整 FE
80 H5273A 2 BOLT,HEXSOCKET ボルト六角穴 M03X005 FE
81 W1021A 2 WASHER,LOCK ワッシャスプリング 3M/M FE
82 W1040A 2 WASHER,FLAT ワッシャ平 3M/MX0.5X7(1W-3) FE
83 H5274A 2 BOLT,HEXSOCKET ボルト六角穴 M03X006 FE
84 W1021A 2 WASHER,LOCK ワッシャスプリング 3M/M FE
85 AA34G13 1 CYLINDER,AIR シリンダエアー OT
86 PM87859 1 FRAME フレーム FE
87 H5300A 4 BOLT,HEXSOCKET ボルト六角穴 M05X015 FE
88 W1023A 4 WASHER,LOCK ワッシャスプリング 5M/M FE
89 PM87903 1 PIN,PIVOT ピン支点 FE
90 S1003L 2 CIR-CLIP サークリップ ST-EW-8(3カシロ) FE
91 PM87932 2 COLLAR カラー FE
92 S2101G 1 CYLINDER,AIR シリンダエアー CDQSD25-40DCM-M9BL OT
93 Y3049G 2 UNION,ELBOW ユニオンエルボ KJL04-M5(シロ) OT
94 PZ09201 1 TUBE チューブ OT
94.1 PZ07771 1 TUBE チューブ OT
95 K5340R 2 CONTROLLER,SPEED コントローラスピード AS2001F-04(シロ) OT
7.
PARTS
SUPPLY
/
部品供給
38
PTS-NXT-10JE
Vol.3