PTS-NXT-10JE - 第636页
A A B B 6 7 5 8 13 14 15 16 14 21 22 26 27 28 27 28 33 34 35 36 37 38 38 44 46 45 51 52 56 57 58 43 44 59 60 60 61 61 65 66 67 68 69 62 37.1 20 20.1 50 50.1 12 12 42 42 29 103 102 103 100 100 99 98 104 92 75 75 76 76 75 …

7.1.6.M6S-DEVICEPALLET1/2
7.1.6.M6S-デバイスパレット1/2
UD01731
No. Drg.No.&CodeNo. QTY Description Rating
Materials
Remarks
番号 図番&コード番号 個数 品名 規格 材質 備考
1 AA1XT30 1 PALLET パレット OT
2 PX04370 1 SEAL,BARCODE シールバーコード OT
11 AA29Y07 1 ARM,CLAMP アームクランプ OT
12 PB58442 1 PLATE,ARM プレートアーム FE
13 K5361T 4 SCREW,HEXSOCKETCOUNTERSUNK 小ネジ六角穴皿 M05X012 FE
14 PM77693 1 BAR,GUIDE バーガイド FE
15 K5363D 3 SCREW,HEXSOCKETCOUNTERSUNK 小ネジ六角穴皿 M06X015 FE
16 PM87704 1 BAR,GUIDE バーガイド FE
17 K5363D 5 SCREW,HEXSOCKETCOUNTERSUNK 小ネジ六角穴皿 M06X015 FE
18 PB40841 1 HANDLE 取手 FE
19 H5278A 2 BOLT,HEXSOCKET ボルト六角穴 M03X015 FE
20 W1021A 2 WASHER,LOCK ワッシャスプリング 3M/M FE
21 PB58432 1 PLATE,ARM プレートアーム FE
22 K5361T 4 SCREW,HEXSOCKETCOUNTERSUNK 小ネジ六角穴皿 M05X012 FE
23 PM77693 1 BAR,GUIDE バーガイド FE
24 K5363D 3 SCREW,HEXSOCKETCOUNTERSUNK 小ネジ六角穴皿 M06X015 FE
25 PM87714 1 BAR,GUIDE バーガイド FE
26 K5363D 5 SCREW,HEXSOCKETCOUNTERSUNK 小ネジ六角穴皿 M06X015 FE
27 PB40841 1 HANDLE 取手 FE
28 H5278A 2 BOLT,HEXSOCKET ボルト六角穴 M03X015 FE
29 W1021A 2 WASHER,LOCK ワッシャ ス
プ
リン
グ
3M/M FE
7.
PARTS
SUPPLY
/
部品供給
45
PTS-NXT-10JE
Vol.3

A
A
B
B
6
7
5
8
13
14
15
16
14
21
22
26
27
28
27
28
33
34
35
36
37
38
38
44
46
45
51
52
56
57
58
43
44
59
60
60
61
61
65
66
67
68
69
62
37.1
20
20.1
50
50.1
12
12
42
42
29
103
102
103
100
100
99
98
104
92
75
75
76
76
75
76
80
71
79
78
84
83
82
93
94
101
100
100
96
97
86
72
73
74
77
81
32
95
102
103
85
1
105
106
107
111
109
109
110
112
113
108
65.1
32.1
17
29.1
17
19
18
29.3
29.2
23
24
25
47
62.1
47
48
49
62.3
62.2
48
49
55
53
54
85.1
90
91
89
88
88
87
19
18
UD01731
7.
PARTS
SUPPLY
/
部品供給
46
PTS-NXT-10JE
Vol.3

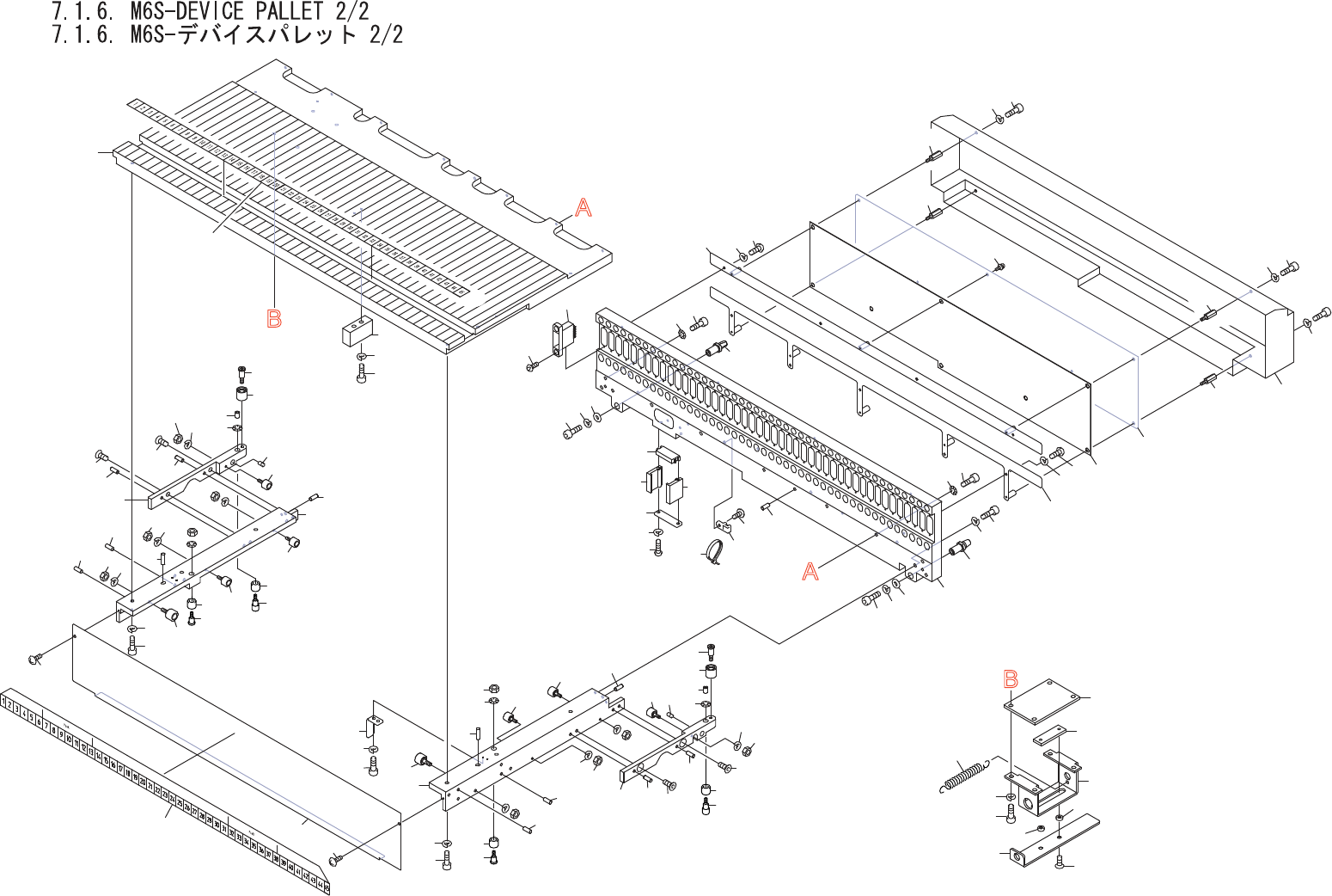
7.1.6.M6S-DEVICEPALLET2/2
7.1.6.M6S-デバイスパレット2/2
UD01731
No. Drg.No.&CodeNo. QTY Description Rating
Materials
Remarks
番号 図番&コード番号 個数 品名 規格 材質 備考
1 PM78054 1 PALLET パレット FE
5 PM11906 1 BLOCK ブロック FE
6 H5290A 2 BOLT,HEXSOCKET ボルト六角穴 M04X015 FE
7 W1022A 2 WASHER,LOCK ワッシャスプリング 4M/M FE
8 PX02082 1 NAMEPLATE 銘板 PL
12 H2093K 2 PIN,PARALLEL ピン平行 4゚X8Bシュ(H8) OT
13 PM04TB2 1 BKT,RAIL BKTレール FE
14 H2093K 2 PIN,PARALLEL ピン平行 4゚X8Bシュ(H8) FE
15 H5289A 3 BOLT,HEXSOCKET ボルト六角穴 M04X012 FE
16 W1022A 3 WASHER,LOCK ワッシャスプリング 4M/M FE
17 K11065 2 CAMFOLLOWER カムフォロア CF03-A OT
18 N1076A 2 NUT,HEX ナット六角 M3P=0.5 FE
19 W1010A 2 WASHER,CONICAL ワッシャ皿 M-3-L FE
20 PM26721 1 ROLLER ローラ FE
20.1 PM51371 1 PIN,ROLLER ピンローラ FE
21 N1076A 1 NUT,HEX ナット六角 M3P=0.5 FE
22 W1010A 1 WASHER,CONICAL ワッシャ皿 M-3-L FE
23 K1108A 1 CAMFOLLOWER カムフォロア CF4-A OT
24 N1080A 1 NUT,HEX ナット六角 M4P=0.7 FE
25 W1022A 1 WASHER,LOCK ワッシャスプリング 4M/M FE
26 PM91722 1 BAR,GUIDE バーガイド FE
27 K5361T 2 SCREW,HEXSOCKETCOUNTERSUNK 小ネジ六角穴皿 M05X012 FE
28 H2093K 2 PIN,PARALLEL ピン平行 4゚X8Bシュ(H8) OT
29 PM86771 1 PIN ピン FE
29.1 K11065 1 CAMFOLLOWER カムフォロア CF03-A OT
29.2 N1076A 1 NUT,HEX ナット六角 M3P=0.5 FE
29.3 W1010A 1 WASHER,CONICAL ワッシャ皿 M-3-L FE
32 PM26721 1 ROLLER ローラ FE
32.1 PM02DE1 1 PIN,ROLLER ピンローラ FE
33 PM02503 1 NUT ナット FE
34 W1010A 1 WASHER,CONICAL ワッシャ皿 M-3-L FE
35 PM02352 1 PIN,ROLLER ピンローラ FE
36 PM02422 1 ROLLER ローラ FE
37 PB13914 1 COVER カバー FE
37.1 PX06051 1 NAMEPLATE 銘板 PL
38 K5170T 2 SCREW,C/RTRUSS 小ネジ十穴トラス M03X006ユニクロメッキ(シロ) FE
42 H2093K 2 PIN,PARALLEL ピン平行 4゚X8Bシュ(H8) OT
43 PM04TA2 1 BKT,RAIL BKTレール FE
7.
PARTS
SUPPLY
/
部品供給
47
PTS-NXT-10JE
Vol.3