PTS-NXT-10JE - 第663页
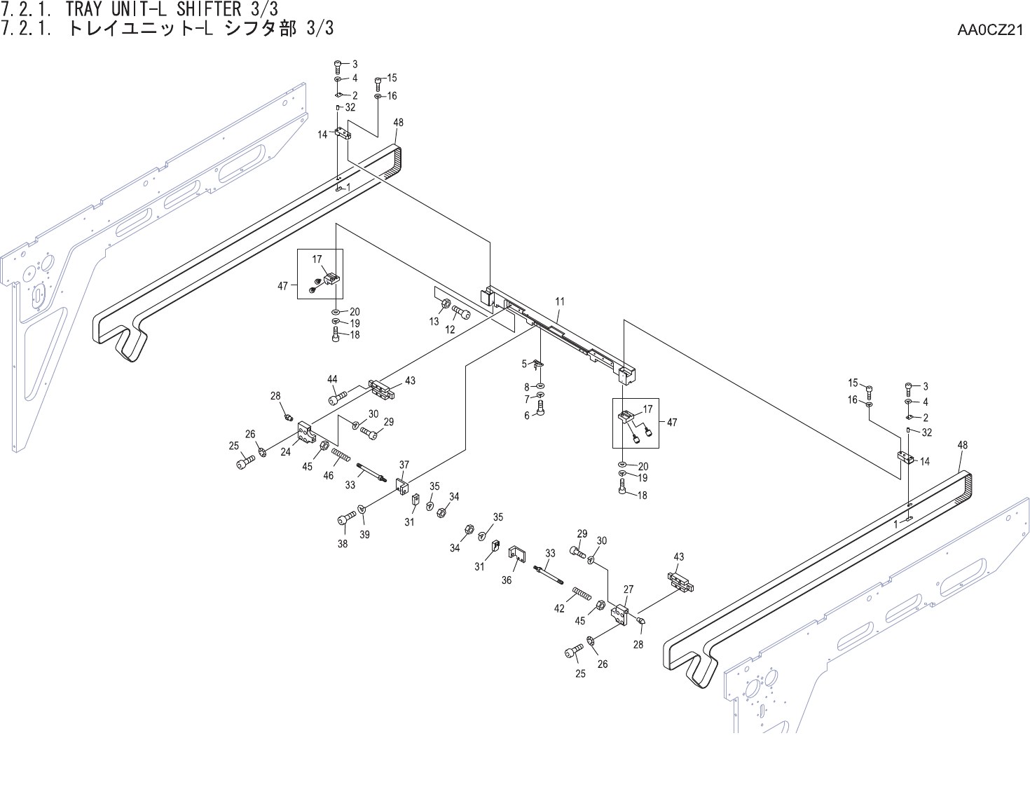
7.2.1.TRAYUNIT-LSHIFTER3/3 7.2.1 .トレ イユニッ ト-L シフタ部 3/3 AA0CZ21 No. Drg.No.&CodeNo. Q TY Description Rating Materials Remarks 番号 図番 &コード 番号 個数 品名 規格 材質 備考 1 PM74141 2 PLATE プレー ト FE 2 PB34642 2 PLATE …

7.
PARTS
SUPPLY
/
部品供給
72
PTS-NXT-10JE
Vol.3

7.2.1.TRAYUNIT-LSHIFTER3/3
7.2.1.トレイユニット-Lシフタ部3/3
AA0CZ21
No. Drg.No.&CodeNo. QTY Description Rating
Materials
Remarks
番号 図番&コード番号 個数 品名 規格 材質 備考
1 PM74141 2 PLATE プレート FE
2 PB34642 2 PLATE プレート FE
3 H5268H 4 BOLT,HEXSOCKET ボルト六角穴 M02X012 FE
4 W1020A 4 WASHER,LOCK ワッシャスプリング 2M/M FE
5 PB69781 1 DOG ドッグ FE
6 H5268T 2 BOLT,HEXSOCKET ボルト六角穴 M02.5X006 FE
7 W1020H 2 WASHER,LOCK ワッシャスプリング 2.5M/M FE
8 W1039H 2 WASHER,FLAT ワッシャ平 2.5M/M FE
11 PM26042 1 ARM アーム FE
12 H5277A 2 BOLT,HEXSOCKET ボルト六角穴 M03X012 FE
13 N1076A 2 NUT,HEX ナット六角 M3P=0.5 FE
14 PM26051 2 BKT BKT FE
15 H5277A 4 BOLT,HEXSOCKET ボルト六角穴 M03X012 FE
16 W1021A 4 WASHER,LOCK ワッシャスプリング 3M/M FE
17 PM76850 2 BKT BKT FE
18 H5277A 4 BOLT,HEXSOCKET ボルト六角穴 M03X012 FE
19 W1021A 4 WASHER,LOCK ワッシャスプリング 3M/M FE
20 W1042A 4 WASHER,FLAT ワッシャ平 4W-3 FE
24 PM47540 1 BLOCK ブロック FE
25 H5273A 8 BOLT,HEXSOCKET ボルト六角穴 M03X005 FE
26 W1010A 8 WASHER,CONICAL ワッシャ皿 M-3-L FE
27 PM47530 1 BLOCK ブロック FE
28 PM26113 2 CENTER センタ FE
29 H5280A 2 BOLT,HEXSOCKET ボルト六角穴 M03X020 FE
30 W1021A 2 WASHER,LOCK ワッシャスプリング 3M/M FE
31 PM26132 2 JAW 爪 FE
32 PM28892 4 COLLAR カラー FE
33 PM47550 2 SHAFT シャフト FE
34 N1081T 2 NUT,HEX ナット六角 M43シュ FE
35 W1022A 2 WASHER,LOCK ワッシャスプリング 4M/M FE
36 PM35101 1 BLOCK ブロック FE
37 PM35111 1 BLOCK ブロック FE
38 H5276A 4 BOLT,HEXSOCKET ボルト六角穴 M03X010 FE
39 W1021A 4 WASHER,LOCK ワッシャスプリング 3M/M FE
42 S3261M 1 SPRING スプリング WM8-50 OT
43 K11477 2 GUIDE,RAIL ガイドレール SRS9MUU+55L OT
44 H5274B 6 BOLT,HEXSOCKET ボルト六角穴 M03X006ユニクロメッキ(シロ) FE
45 N1083A 2 NUT,HEX ナット六角 M5P=0.83シュ FE
7.
PARTS
SUPPLY
/
部品供給
73
PTS-NXT-10JE
Vol.3

7.2.1.TRAYUNIT-LSHIFTER3/3
7.2.1.トレイユニット-Lシフタ部3/3
AA0CZ21
No. Drg.No.&CodeNo. QTY Description Rating
Materials
Remarks
番号 図番&コード番号 個数 品名 規格 材質 備考
46 S3261S 1 SPRING スプリング WT8-50 OT
47 AA2RY00 2 ROLLER ローラ OT
48 XB01962 2 BELT,TIMING ベルト タイミン
グ
OT
7.
PARTS
SUPPLY
/
部品供給
74
PTS-NXT-10JE
Vol.3